Рівненська обл., м. Корець, вул. Київська, 67а. Оренда – приміщення 2-го поверху

906.29 грн
14.98 грн / м2
Україна, Рівненська обл., м. Корець, вул. Київська, буд. 67а
Перейти до аукціону на сайті
  • Інформація
  • Опис
  • Документи
Дата оголошення пропозиції:
12 червня 2020
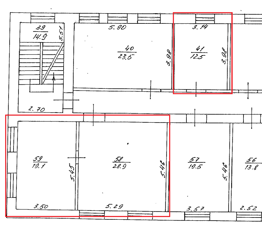
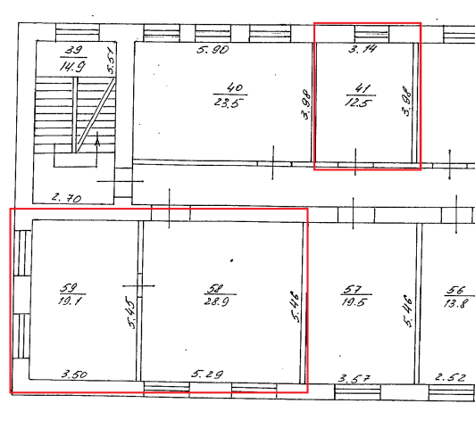
Площа:
60.50 м2
Тип об’єкта:
Приміщення
Тип аукціону:
Англійський аукціон
Статус аукціону:
Аукціон не відбувся
Тип угоди:
Оренда
Розмір мінімального кроку:
30.00 ₴
Розмір гарантійного внеску:
543.77 ₴
Початок прийому пропозицій:
12.06.2020 10:11:37
Завершення прийому пропозицій:
13.07.2020 20:00:00
Лот:
UA-PS-2020-06-12-000022-3
№ лоту (УТК):
UTK070420_09P
Лот виставляється на торги (раз):
3
Стислий опис майна:
Пропонуються до оренди приміщення 2-го поверху. Будівля знаходиться в центральній частині міста, розвинена інфраструктура, поряд відділення Укрпошти, магазини та адміністративні приміщення зручна транспортна розв'язка. Територія огороджена та частково впорядкована. Характеристики кількість поверхів – 3 земельна ділянка загальною. Площею 0,1407 га
Адреса місцезнаходження майна:
Україна, Рівненська обл., м. Корець, вул. Київська, буд. 67а
Схожі пропозиції
21.06.2024
Рівненська обл., Рівненський р-н, с. Річиця, вул. Центральна, 5. Оренда – приміщення 1-го поверху площею 19,30 м.кв. (В)
250.90 грн
13.00 грн / м2
Приміщення
Рівненська обл., Рівненський р-н, с. Річиця, вул. Центральна, 5. Оренда – приміщення 1-го поверху площею 19,30 м.кв. (В)
Україна, Рівненська обл., Рівненський р-н, с. Річиця, вул. Центральна, 5
05.05.2023
Рівненська обл., Вараський р-н, с. Воронки, вул. Чкалова, 14. Оренда – нежитлові приміщення площею 24,9 кв.м. (В)
500.24 грн
20.09 грн / м2
Приміщення
Рівненська обл., Вараський р-н, с. Воронки, вул. Чкалова, 14. Оренда – нежитлові приміщення площею 24,9 кв.м. (В)
Україна, Рівненська обл., Воронки, вул. Чкалова, 14
21.10.2025
Рівненська обл., Березнівський р-н, с. Балашівка, вул. Незалежності, 52. Оренда – приміщення 1 поверху
503.10 грн
39.00 грн / м2
Приміщення
Рівненська обл., Березнівський р-н, с. Балашівка, вул. Незалежності, 52. Оренда – приміщення 1 поверху
Україна, Рівненська обл., Балашівка, вул. Незалежності, 52
27.12.2022
Рівненська обл., Рівненський р-н, с. Глажова, вул. Шевченка, 35. Оренда – нежитлові приміщення площею 36,9 кв.м. (В)
657.56 грн
17.82 грн / м2
Приміщення
Рівненська обл., Рівненський р-н, с. Глажова, вул. Шевченка, 35. Оренда – нежитлові приміщення площею 36,9 кв.м. (В)
Україна, Рівненська обл., Глажова, вул. Шевченка 35
Переглянуті пропозиції
22.04.2025
Сумська обл., м. Суми, вул. Нижньосироватська, 64;   Оренда – приміщення складу площею 42,6 кв. м. (В)
1 278.00 грн
30.00 грн / м2
Приміщення
Сумська обл., м. Суми, вул. Нижньосироватська, 64; Оренда – приміщення складу площею 42,6 кв. м. (В)
Україна, Сумська обл., Суми, вул.Нижньосироватська буд., 64
30.12.2022
Закарпатська обл., м. Берегово, пл. Ф. Ракоці, 3 «літ.А». Оренда – приміщення 2-го поверху площею 220,5 кв.м. (В)
3 276.63 грн
14.86 грн / м2
Приміщення
Закарпатська обл., м. Берегово, пл. Ф. Ракоці, 3 «літ.А». Оренда – приміщення 2-го поверху площею 220,5 кв.м. (В)
Україна, Закарпатська обл., м. Берегово, пл. Ф. Ракоці, 3 «літ.А»
26.12.2024
Рівненська обл., Рівненський р-н., с. Балашівка, вул. Незалежності, 52;   Оренда – нежитлове приміщення площею 12,9 кв.м. (В)
258.00 грн
20.00 грн / м2
Приміщення
Рівненська обл., Рівненський р-н., с. Балашівка, вул. Незалежності, 52; Оренда – нежитлове приміщення площею 12,9 кв.м. (В)
Україна, Рівненська обл., Балашівка, вул. Незалежності, 52
09.09.2022
Сумська обл., м. Лебедин, вул. Героїв Майдану, буд. 25. Оренда – офісні приміщення 3-го поверху площею 32,50 кв. м (В)
690.30 грн
21.24 грн / м2
Офіс
Сумська обл., м. Лебедин, вул. Героїв Майдану, буд. 25. Оренда – офісні приміщення 3-го поверху площею 32,50 кв. м (В)
Україна, Сумська обл., Лебедин, вул. Героїв Майдану, 25