Закарпатська обл., м. Берегово, пл. Ф. Ракоці, 3 «літ.А». Оренда – приміщення 2-го поверху площею 220,5 кв.м. (В)

3 276.63 грн
14.86 грн / м2
Україна, Закарпатська обл., м. Берегово, пл. Ф. Ракоці, 3 «літ.А»
Перейти до аукціону на сайті
  • Інформація
  • Опис
  • Документи
Дата оголошення пропозиції:
30 листопада 2022
Площа:
220.50 м2
Тип об’єкта:
Приміщення
Тип аукціону:
Англійський аукціон
Статус аукціону:
Аукціон не відбувся
Тип угоди:
Оренда
Розмір мінімального кроку:
100.00 ₴
Розмір гарантійного внеску:
1 965.98 ₴
Початок прийому пропозицій:
30.11.2022 14:31:49
Завершення прийому пропозицій:
29.12.2022 20:00:00
Проведення аукціону:
30.12.2022 12:50:00
Лот:
CLE001-UA-20221130-94351
№ лоту (УТК):
UTK010721_29P
Лот виставляється на торги (раз):
10
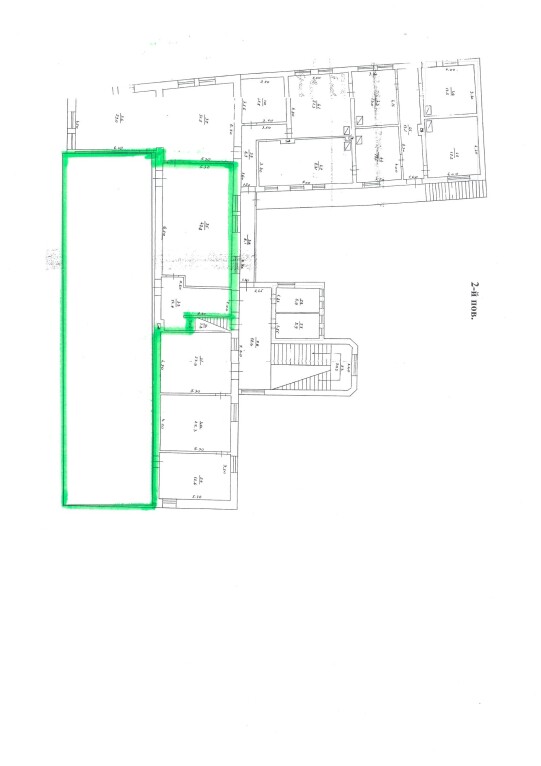
Стислий опис майна:
Пропонуються до оренди приміщення 2-го поверху площею 220,5 кв.м. Будівля знаходиться в центральній частині міста, розвинена інфраструктура, високі автомобільний та пішохідний потоки. Окремий вхід з двору. Стан приміщення потребує ремонту. Характеристики: кількість поверхів – 4; Загальна площа будівлі – 1851,9 кв. м.; електропостачання, водопостачання, каналізаційна мережа
Адреса місцезнаходження майна:
Україна, Закарпатська обл., м. Берегово, пл. Ф. Ракоці, 3 «літ.А»
Схожі пропозиції
Закарпатська обл., Тячівський р-н., с. Угля, вул. Воз’єднання, 2. Оренда – приміщення 2-го поверху площею 65,45 кв. м (В)
4 123.35 грн
63.00 грн / м2
Приміщення
Закарпатська обл., Тячівський р-н., с. Угля, вул. Воз’єднання, 2. Оренда – приміщення 2-го поверху площею 65,45 кв. м (В)
Україна, Закарпатська обл., Тячівський р-н., с. Угля, вул. Воз’єднання, 2
Закарпатська обл., м. Ужгород, пл. Поштова, 4. Оренда – приміщення на 1 поверсі площею 51,4 кв.м. (В)
4 463.58 грн
86.84 грн / м2
Приміщення
Закарпатська обл., м. Ужгород, пл. Поштова, 4. Оренда – приміщення на 1 поверсі площею 51,4 кв.м. (В)
Україна, Закарпатська обл., м. Ужгород, пл. Поштова, 4
21.06.2024
Закарпатська обл., м. Тячів, вул. Незалежності, 28. Оренда – приміщення 2-го поверху, площею 218,2 кв.м. (В)
5 644.83 грн
25.87 грн / м2
Приміщення
Закарпатська обл., м. Тячів, вул. Незалежності, 28. Оренда – приміщення 2-го поверху, площею 218,2 кв.м. (В)
Україна, Закарпатська обл., м. Тячів, вул. Незалежності, 28
24.04.2025
Закарпатська обл., Ужгородський р-н с. Жорнава, б/н. Оренда – приміщення на 1 поверсі площею 24,0 кв. м (В)
894.72 грн
37.28 грн / м2
Приміщення
Закарпатська обл., Ужгородський р-н с. Жорнава, б/н. Оренда – приміщення на 1 поверсі площею 24,0 кв. м (В)
Україна, Закарпатська обл., Ужгородський р-н с. Жорнава, б/н
Переглянуті пропозиції
26.12.2024
Рівненська обл., Рівненський р-н., с. Балашівка, вул. Незалежності, 52;   Оренда – нежитлове приміщення площею 12,9 кв.м. (В)
258.00 грн
20.00 грн / м2
Приміщення
Рівненська обл., Рівненський р-н., с. Балашівка, вул. Незалежності, 52; Оренда – нежитлове приміщення площею 12,9 кв.м. (В)
Україна, Рівненська обл., Балашівка, вул. Незалежності, 52
09.09.2022
Сумська обл., м. Лебедин, вул. Героїв Майдану, буд. 25. Оренда – офісні приміщення 3-го поверху площею 32,50 кв. м (В)
690.30 грн
21.24 грн / м2
Офіс
Сумська обл., м. Лебедин, вул. Героїв Майдану, буд. 25. Оренда – офісні приміщення 3-го поверху площею 32,50 кв. м (В)
Україна, Сумська обл., Лебедин, вул. Героїв Майдану, 25
21.01.2025
Полтавська обл., Мирогородський р-н, смт. В.Багачка, вулиця Каштанова, 13;  Оренда – будівля площею 176,50 кв.м. (В)
2 499.42 грн
14.16 грн / м2
Будівля
Полтавська обл., Мирогородський р-н, смт. В.Багачка, вулиця Каштанова, 13; Оренда – будівля площею 176,50 кв.м. (В)
Україна, Полтавська обл., Велика Багачка, вулиця Каштанова, 13
21.08.2024
м. Харків, вул. Конторська,14.Оренда – приміщення 2-го поверху площею 20,5 кв.м (В)
1 420.65 грн
69.30 грн / м2
Приміщення
м. Харків, вул. Конторська,14.Оренда – приміщення 2-го поверху площею 20,5 кв.м (В)
Україна, Харківська обл., м. Харків, вул. Конторська,14