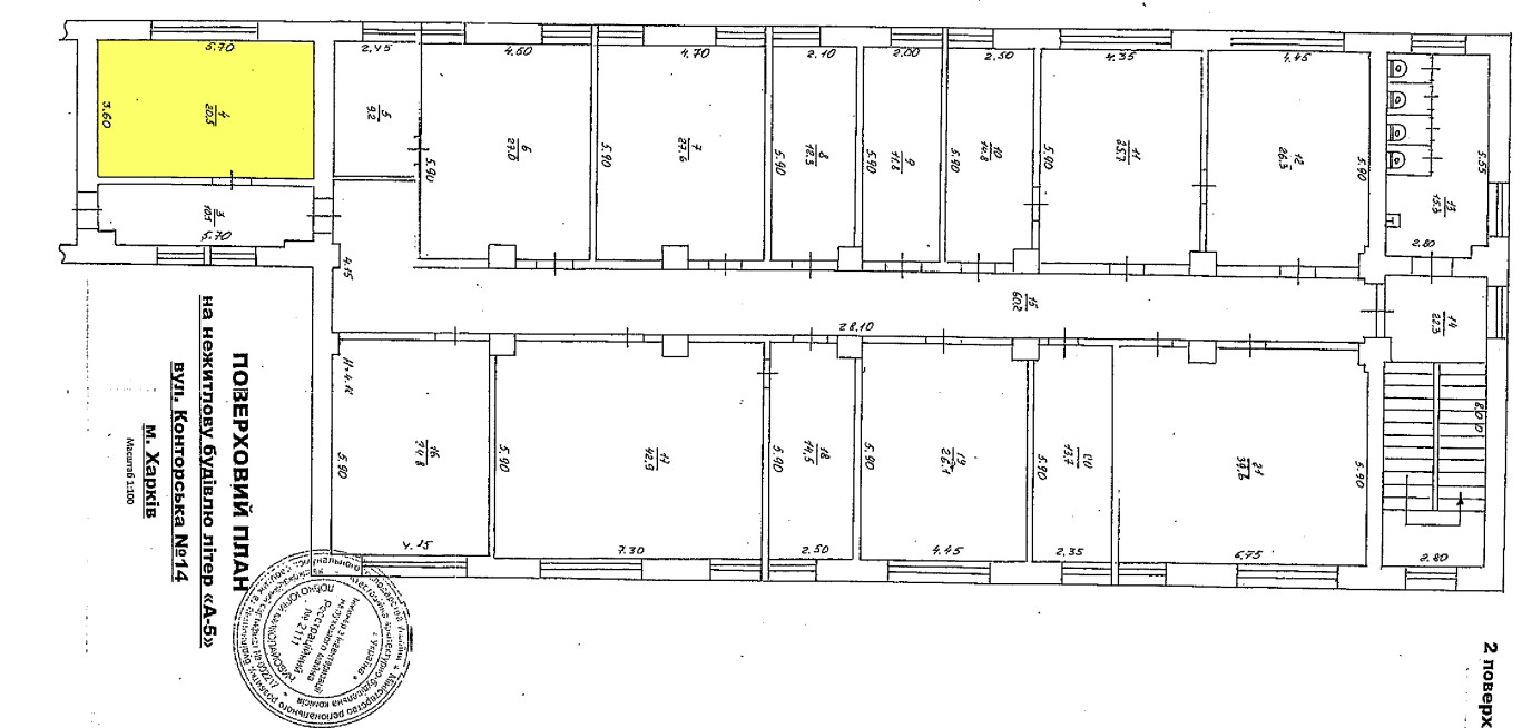
м. Харків, вул. Конторська,14.Оренда – приміщення 2-го поверху площею 20,5 кв.м (В)

1 420.65 грн
69.30 грн / м2
Україна, Харківська обл., м. Харків, вул. Конторська,14
Перейти до аукціону на сайті
  • Інформація
  • Опис
  • Документи
Дата оголошення пропозиції:
22 липня 2024
Площа:
20.50 м2
Тип об’єкта:
Приміщення
Тип аукціону:
Англійський аукціон
Статус аукціону:
Аукціон не відбувся
Тип угоди:
Оренда
Розмір мінімального кроку:
50.00 ₴
Розмір гарантійного внеску:
852.39 ₴
Початок прийому пропозицій:
22.07.2024 16:30:15
Завершення прийому пропозицій:
20.08.2024 20:00:00
Проведення аукціону:
21.08.2024 12:50:00
Лот:
CLE001-UA-20240722-52702
№ лоту (УТК):
UTK070723_09P
Лот виставляється на торги (раз):
10
Стислий опис майна:
Пропонується до оренди приміщення 4-го поверху площею 20,5 кв.м. Будівля в центрі міста Харкова. 15 хв до метро Центральний ринок. Характеристики: Кількість поверхів – 4; Загальна площа – 5611,00 кв.м_ Площа запропонована до оренди -20,5 кв.м Дозволена потужність – 3 кВт Теплопостачання-централізоване Земельна ділянка – 0,5169 га
Адреса місцезнаходження майна:
Україна, Харківська обл., м. Харків, вул. Конторська,14
Схожі пропозиції
05.11.2024
м. Харків, пр-т. Г. Сталінграду, 3. Оренда – приміщення 3-го поверху площею 344,7 кв.м. (В)
18 820.62 грн
54.60 грн / м2
Приміщення
м. Харків, пр-т. Г. Сталінграду, 3. Оренда – приміщення 3-го поверху площею 344,7 кв.м. (В)
Україна, Харківська обл., м. Харків, пр-т. Г. Сталінграду, 3
15.07.2025
м. Харків, вул. Старошишківська, 5а. Оренда – приміщення 3-го поверху площею 160,4 кв.м. (В)
6 239.56 грн
38.90 грн / м2
Приміщення
м. Харків, вул. Старошишківська, 5а. Оренда – приміщення 3-го поверху площею 160,4 кв.м. (В)
Україна, Харківська обл., м. Харків, вул. Старошишківська, 5а
05.06.2024
Харківська обл., м. Харків, вул. Коцарська, 45, літер «А-4»;   Оренда – приміщення на 4-му поверсі загальною площею 73,60 кв.м. (В)
3 956.74 грн
53.76 грн / м2
Приміщення
Харківська обл., м. Харків, вул. Коцарська, 45, літер «А-4»; Оренда – приміщення на 4-му поверсі загальною площею 73,60 кв.м. (В)
Україна, Харківська обл., Харків, вулиця Коцарська, 45
22.04.2025
Харківська обл., Ізюмський р-н, смт. Донець, вул. Центральна, 42. Оренда – приміщення 2-го поверху площею 171,5 кв.м. (В)
2 058.00 грн
12.00 грн / м2
Приміщення
Харківська обл., Ізюмський р-н, смт. Донець, вул. Центральна, 42. Оренда – приміщення 2-го поверху площею 171,5 кв.м. (В)
Україна, Харківська обл., Ізюмський р-н, смт. Донець, вул. Центральна, 42