м. Харків, пр-т. Г. Сталінграду, 3. Оренда – приміщення 3-го поверху площею 344,7 кв.м. (В)

18 820.62 грн
54.60 грн / м2
Україна, Харківська обл., м. Харків, пр-т. Г. Сталінграду, 3
Перейти до аукціону на сайті
  • Інформація
  • Опис
  • Документи
Дата оголошення пропозиції:
04 жовтня 2024
Площа:
344.70 м2
Тип об’єкта:
Приміщення
Тип аукціону:
Англійський аукціон
Статус аукціону:
Аукціон не відбувся
Тип угоди:
Оренда
Розмір мінімального кроку:
300.00 ₴
Розмір гарантійного внеску:
11 292.37 ₴
Початок прийому пропозицій:
04.10.2024 13:16:48
Завершення прийому пропозицій:
04.11.2024 20:00:00
Проведення аукціону:
05.11.2024 11:10:00
Лот:
CLE001-UA-20241004-05149
№ лоту (УТК):
UTK070823_07P
Лот виставляється на торги (раз):
10
Стислий опис майна:
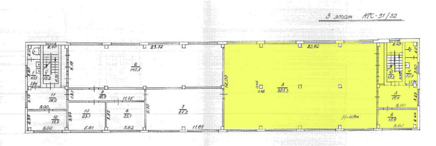
Пропонується до оренди приміщення третього поверху площею 344,7 кв.м. Будівля в спальному районі міста Харкова. 10 хв до зупинки транспорту. Характеристики: Кількість поверхів – 4. Загальна площа – 3 761,8 кв.м. Площа запропонована до оренди – 344,7 кв.м. Дозволена потужність – 20 кВт. Теплопостачання-відсутнє. Земельна ділянка – 0,6208 га.
Адреса місцезнаходження майна:
Україна, Харківська обл., м. Харків, пр-т. Г. Сталінграду, 3
Схожі пропозиції
22.02.2024
Харківська обл., Чугуївський р-н, м. Чугуїв, вул. Харківська, 118;  Оренда- приміщення 1-го поверху площею 47,80 кв.м. (В)
3 269.52 грн
68.40 грн / м2
Приміщення
Харківська обл., Чугуївський р-н, м. Чугуїв, вул. Харківська, 118; Оренда- приміщення 1-го поверху площею 47,80 кв.м. (В)
Україна, Харківська обл., Чугуїв, вулиця Харківська, 118
19.11.2025
м. Харків, вул. Конторська, 14. Оренда – приміщення цокольного поверху площею 219,7 кв. м (В)
6 591.00 грн
30.00 грн / м2
Приміщення
м. Харків, вул. Конторська, 14. Оренда – приміщення цокольного поверху площею 219,7 кв. м (В)
Україна, Харківська обл., Харків, вулиця Конторська, 14
11.10.2023
Харківська обл., м. Харків, вул. Амосова, 13в. Оренда – приміщення 4-го поверху площею 59,2 кв.м (В)
3 595.81 грн
60.74 грн / м2
Приміщення
Харківська обл., м. Харків, вул. Амосова, 13в. Оренда – приміщення 4-го поверху площею 59,2 кв.м (В)
Україна, Харківська обл., м. Харків, вул. Амосова,13 в
16.11.2023
м. Харків, пр-т. Г. Сталінграду, 3. Оренда – приміщення 3-го поверху площею 344,7 кв.м. (В)
18 820.62 грн
54.60 грн / м2
Приміщення
м. Харків, пр-т. Г. Сталінграду, 3. Оренда – приміщення 3-го поверху площею 344,7 кв.м. (В)
Україна, Харківська обл., м. Харків, пр-т. Г. Сталінграду, 3
Переглянуті пропозиції
03.09.2025
Дніпропетровська обл., м. Кам’янське, просп. Свободи, 44. Оренда – приміщення 5-го поверху загальною площею 26,10 кв.м (В)
522.00 грн
20.00 грн / м2
Приміщення
Дніпропетровська обл., м. Кам’янське, просп. Свободи, 44. Оренда – приміщення 5-го поверху загальною площею 26,10 кв.м (В)
Україна, Дніпропетровська обл., м. Кам’янське, просп. Свободи, 44