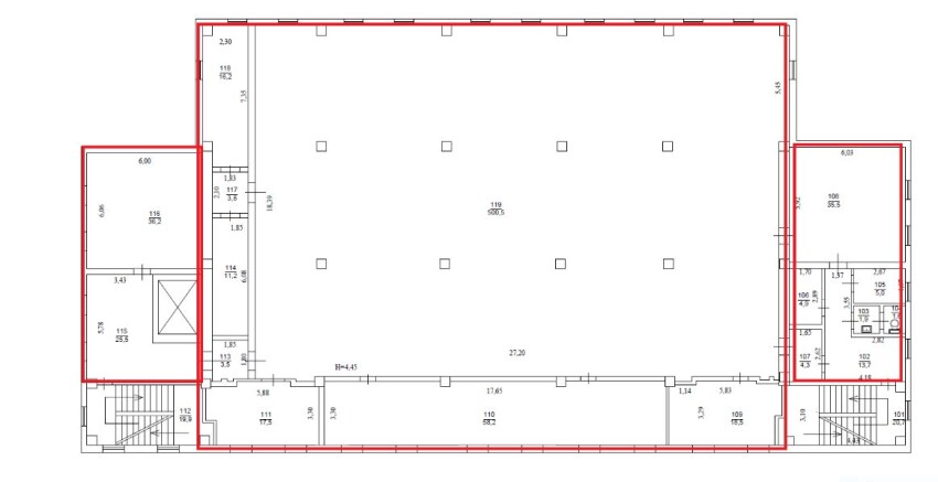
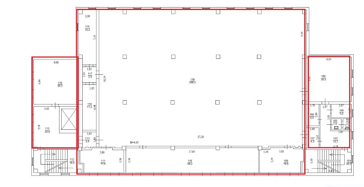
м. Рівне, вул. Орлова, 37. Оренда приміщень 3-го поверху

16 069.60 грн
21.20 грн / м2
Україна, Рівненська обл., м. Рівне, вул. Орлова, 37
Перейти до аукціону на сайті
  • Інформація
  • Опис
  • Документи
Дата оголошення пропозиції:
23 червня 2020
Площа:
758.00 м2
Тип об’єкта:
Приміщення
Тип аукціону:
Англійський аукціон
Статус аукціону:
Аукціон не відбувся
Тип угоди:
Оренда
Розмір мінімального кроку:
260.00 ₴
Розмір гарантійного внеску:
9 641.76 ₴
Початок прийому пропозицій:
23.06.2020 14:46:34
Завершення прийому пропозицій:
22.07.2020 20:00:00
Лот:
UA-PS-2020-06-23-000052-2
№ лоту (УТК):
UTK180320_01
Лот виставляється на торги (раз):
3
Стислий опис майна:
Пропонуються до оренди приміщення 3-го поверху. Будівля знаходиться в східній частині міста, район автовокзалу , на перехресті вулиць Орлова та Буковинська. Щільність транспортних та пішохідних потоків середня.
Адреса місцезнаходження майна:
Україна, Рівненська обл., м. Рівне, вул. Орлова, 37
Схожі пропозиції
Рівненська обл., м. Рівне, вул. Орлова, 37. Оренда – приміщення 5-го поверху загальною площею 703 кв.м. (В)
38 608.76 грн
54.92 грн / м2
Приміщення
Рівненська обл., м. Рівне, вул. Орлова, 37. Оренда – приміщення 5-го поверху загальною площею 703 кв.м. (В)
Україна, Рівненська обл., м. Рівне, вул. Орлова, 37
23.02.2024
Рівненська обл., Вараський р-н., с. Довговоля, вул. Грушевського, 9/2а. Оренда – нежитлові приміщення площею 33,4 кв.м. (В)
579.82 грн
17.36 грн / м2
Приміщення
Рівненська обл., Вараський р-н., с. Довговоля, вул. Грушевського, 9/2а. Оренда – нежитлові приміщення площею 33,4 кв.м. (В)
Україна, Рівненська обл., Вараський р-н., с. Довговоля, вул. Грушевського, 9/2а
07.11.2024
Рівненська обл. смт. Рокитне вул.Незалежності,9. Оренда – приміщення 1-го , 2-го та 3–го поверху загальною площею 365,6 м. кв. (В)
5 484.00 грн
15.00 грн / м2
Приміщення
Рівненська обл. смт. Рокитне вул.Незалежності,9. Оренда – приміщення 1-го , 2-го та 3–го поверху загальною площею 365,6 м. кв. (В)
Україна, Рівненська обл., Сарненський р-н., смт. Рокитне, вул. Незалежності, 9
05.09.2025
Рівненська обл., Березнівський р-н, с. Балашівка, вул. Незалежності, 52. Оренда – приміщення 1 поверху
503.10 грн
39.00 грн / м2
Приміщення
Рівненська обл., Березнівський р-н, с. Балашівка, вул. Незалежності, 52. Оренда – приміщення 1 поверху
Україна, Рівненська обл., Балашівка, Балашівка, вул. Незалежності, 52