Рівненська обл., м. Рівне, вул. Орлова, 37. Оренда – приміщення 5-го поверху загальною площею 703 кв.м. (В)

38 608.76 грн
54.92 грн / м2
Україна, Рівненська обл., м. Рівне, вул. Орлова, 37
Перейти до аукціону на сайті
  • Інформація
  • Опис
  • Документи
Дата оголошення пропозиції:
20 квітня 2022
Площа:
703.00 м2
Тип об’єкта:
Приміщення
Тип аукціону:
Англійський аукціон
Статус аукціону:
Аукціон не відбувся
Тип угоди:
Оренда
Розмір мінімального кроку:
1 000.00 ₴
Розмір гарантійного внеску:
23 165.26 ₴
Початок прийому пропозицій:
20.04.2022 11:18:19
Завершення прийому пропозицій:
19.05.2022 20:00:00
Лот:
UA-PS-2022-04-20-000014-3
№ лоту (УТК):
UTK080222_10P
Лот виставляється на торги (раз):
3
Стислий опис майна:
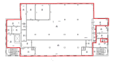
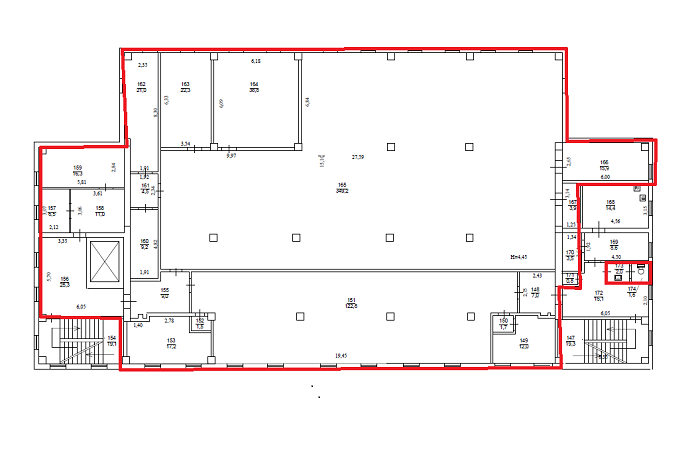
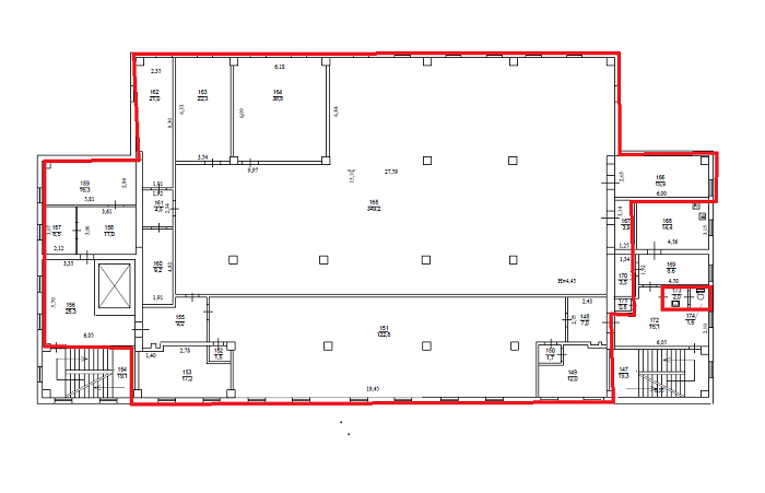
Пропонуються до оренди приміщення 5-го поверху загальною площею 703 м. кв. Будівля знаходиться в центральній частині міста. Розвинена інфраструктура, досить високі автомобільний та пішохідний потоки. Поряд стоянка для автомобілів . Приміщення потребують ремонту та реконструкції електромережі. Характеристики: Кількість поверхів – 6 ; Загальна площа – 4535,1 м. кв ; Площа, запропонована до оренди – 703 м.кв. ; Опалення – централізоване; • Земельна ділянка - площа 0,3639 га. (договір оренди)
Адреса місцезнаходження майна:
Україна, Рівненська обл., м. Рівне, вул. Орлова, 37
Схожі пропозиції
13.05.2025
Рівненська обл.,м. Костопіль, провулок Артилерійський, буд. 2А. Оренда – група приміщень 1-го та 2-го поверху загальною площею 146,70 кв.м
6 598.57 грн
44.98 грн / м2
Приміщення
Рівненська обл.,м. Костопіль, провулок Артилерійський, буд. 2А. Оренда – група приміщень 1-го та 2-го поверху загальною площею 146,70 кв.м
Україна, Рівненська обл., Костопіль, : 35000, Рівненська обл., м. Костопіль, провулок Артилерійський, буд.2А
Рівненська обл., смт. Рокитне, вул. Незалежності, 9. Оренда приміщень 4-го поверху
409.97 грн
18.72 грн / м2
Приміщення
Рівненська обл., смт. Рокитне, вул. Незалежності, 9. Оренда приміщень 4-го поверху
Україна, Рівненська обл., смт. Рокитне, вул. Незалежності, 9
Рівненська обл., м. Рівне вул. В. Чорновола, 1. Оренда – приміщення 1-го , 2-го та 3 –го поверху, загальною площею 115,2 м.кв. (В)
16 568.06 грн
143.82 грн / м2
Приміщення
Рівненська обл., м. Рівне вул. В. Чорновола, 1. Оренда – приміщення 1-го , 2-го та 3 –го поверху, загальною площею 115,2 м.кв. (В)
Україна, Рівненська обл., м. Рівне , вул. В. Чорновола, 1
м. Рівне, вул. В. Чорновола, 1. Оренда – приміщення 5-го поверху площею 107,9 кв.м. (В)
3 738.74 грн
34.65 грн / м2
Приміщення
м. Рівне, вул. В. Чорновола, 1. Оренда – приміщення 5-го поверху площею 107,9 кв.м. (В)
Україна, Рівненська обл., м. Рівне, вул. В. Чорновола, буд. 1