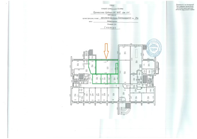
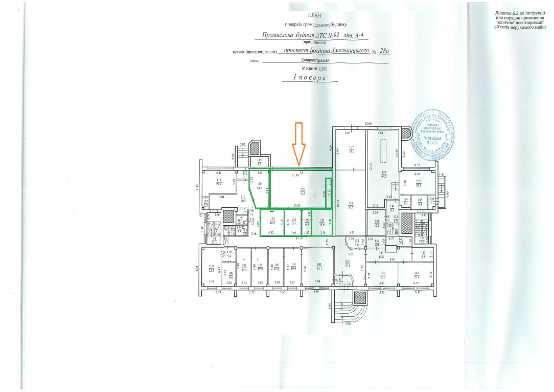
м. Дніпро, проспект Богдана Хмельницького, 28А. Оренда - приміщення 1-го поверху площею 134,4 кв.м.

3 719.12 грн
27.67 грн / м2
Україна, Дніпропетровська обл., м. Дніпро, проспект. Богдана Хмельницького, 28А
Перейти до аукціону на сайті
  • Інформація
  • Опис
  • Документи
Дата оголошення пропозиції:
04 вересня 2020
Площа:
134.40 м2
Тип об’єкта:
Приміщення
Тип аукціону:
Англійський аукціон
Статус аукціону:
Аукціон не відбувся
Тип угоди:
Оренда
Розмір мінімального кроку:
100.00 ₴
Розмір гарантійного внеску:
2 231.47 ₴
Початок прийому пропозицій:
04.09.2020 09:56:20
Завершення прийому пропозицій:
20.09.2020 20:00:00
Лот:
UA-PS-2020-09-04-000028-1
№ лоту (УТК):
UTK060720_11P
Лот виставляється на торги (раз):
2
Стислий опис майна:
Пропонуються до оренди приміщення 1-го поверху площею 134,4 кв.м. Будівля знаходиться в Чечелівському районі міста Дніпра. Зручна транспортна розв’язка та інфраструктура. . Характеристики - Загально площа будівлі -3744,7 кв.м.; - Площа орендуємих приміщень -134,4 кв.м.; Електропостачання, опалення, водопостачання - централізоване; Стан – потребує ремонту, підходить для офісу, cкладу, виробництва; земельна ділянка – 0, 3088 га (договір оренди)
Адреса місцезнаходження майна:
Україна, Дніпропетровська обл., м. Дніпро, проспект. Богдана Хмельницького, 28А
Схожі пропозиції
28.10.2025
Довгострокова оренда! Дніпропетровська обл., м. Жовті Води, бул. Свободи, 39. Оренда – група приміщень 3-го поверху загальною площею 675,50 кв.м. (В)
18 089.89 грн
26.78 грн / м2
Приміщення
Довгострокова оренда! Дніпропетровська обл., м. Жовті Води, бул. Свободи, 39. Оренда – група приміщень 3-го поверху загальною площею 675,50 кв.м. (В)
Україна, Дніпропетровська обл., Жовті Води, бульвар Свободи, 39
09.04.2024
Дніпропетровська обл., м. Кривий Ріг, вул. Водоп`янова, 1а;  Оренда – приміщення 4-го поверху, площею 789,8 кв.м. (В)
7 108.20 грн
9.00 грн / м2
Приміщення
Дніпропетровська обл., м. Кривий Ріг, вул. Водоп`янова, 1а; Оренда – приміщення 4-го поверху, площею 789,8 кв.м. (В)
Україна, Дніпропетровська обл., Кривий Ріг, вулиця Водоп'янова, 1а
07.02.2025
Дніпропетровська обл., м. Нікополь, вулиця Патріотів України, буд. 113-А;  Оренда – третій поверх, загальною площею 1107,2 кв.м.(В)
8 614.02 грн
7.78 грн / м2
Приміщення
Дніпропетровська обл., м. Нікополь, вулиця Патріотів України, буд. 113-А; Оренда – третій поверх, загальною площею 1107,2 кв.м.(В)
Україна, Дніпропетровська обл., Нікополь, вул. Патріотів України, 113-А
17.05.2024
Дніпропетровська обл., м. Жовті Води, вул. Свободи, 39;  Оренда – приміщення 3-го поверху площею 32,5 кв.м. (В)
487.50 грн
15.00 грн / м2
Приміщення
Дніпропетровська обл., м. Жовті Води, вул. Свободи, 39; Оренда – приміщення 3-го поверху площею 32,5 кв.м. (В)
Україна, Дніпропетровська обл., Жовті Води, бульвар Свободи, 39
Переглянуті пропозиції
23.01.2024
Дніпропетровська обл., м. Нікополь, вулиця Патріотів України, буд. 113А;  Оренда – третій поверх, загальною площею 1107,2 кв.м.(В)
4 041.28 грн
3.65 грн / м2
Приміщення
Дніпропетровська обл., м. Нікополь, вулиця Патріотів України, буд. 113А; Оренда – третій поверх, загальною площею 1107,2 кв.м.(В)
Україна, Дніпропетровська обл., Нікополь, вул. Патріотів України, 113А
08.05.2024
м. Київ, бульвар Бучми Амвросія, 5;   Оренда – приміщення 3-го та 4-го поверхів технічної будівлі АТС-550 (літ. «Б»), площею 1006,83 кв.м. (В)
92 628.36 грн
92.00 грн / м2
Приміщення
м. Київ, бульвар Бучми Амвросія, 5; Оренда – приміщення 3-го та 4-го поверхів технічної будівлі АТС-550 (літ. «Б»), площею 1006,83 кв.м. (В)
Україна, м.Київ, м. Київ, вулиця Амвросія Бучми, 5 літ.Б
18.07.2025
Дніпропетровська обл., м. Кам’янське, просп. Героїв АТО, 1. Оренда – приміщення 3-го поверху, площею 26,30 кв.м. (В)
789.00 грн
30.00 грн / м2
Приміщення
Дніпропетровська обл., м. Кам’янське, просп. Героїв АТО, 1. Оренда – приміщення 3-го поверху, площею 26,30 кв.м. (В)
Україна, Дніпропетровська обл., м. Кам’янське, просп. Героїв АТО, 1