Дніпропетровська обл., м. Жовті Води, вул. Свободи, 39; Оренда – приміщення 3-го поверху площею 32,5 кв.м. (В)

487.50 грн
15.00 грн / м2
Україна, Дніпропетровська обл., Жовті Води, бульвар Свободи, 39
Перейти до аукціону на сайті
  • Інформація
  • Опис
  • Документи
Дата оголошення пропозиції:
15 квітня 2024
Площа:
32.50 м2
Тип об’єкта:
Приміщення
Тип аукціону:
Англійський аукціон
Статус аукціону:
Аукціон не відбувся
Тип угоди:
Оренда
Розмір мінімального кроку:
15.00 ₴
Розмір гарантійного внеску:
292.50 ₴
Початок прийому пропозицій:
15.04.2024 20:23:09
Завершення прийому пропозицій:
16.05.2024 20:00:00
Проведення аукціону:
17.05.2024 12:20:00
Лот:
CLE001-UA-20240415-56722
№ лоту (УТК):
UTK011122_5T
Лот виставляється на торги (раз):
10
Стислий опис майна:
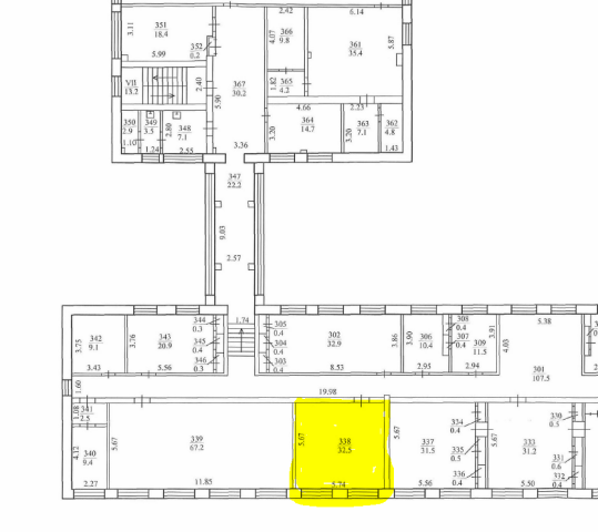
Пропонується до оренди приміщення 3-го поверху площею 32,5 кв.м. Розташування – 3-поверхова будівля (літ.А-Б-В, приміщ.№338), знаходиться в центральному районі міста. Поруч знаходяться відділення банку, високий автомобільний і пішохідний потоки. Стан приміщення задовільний, підходить для офісу, Ідеальне місце під розвиток будь-якого бізнесу. Можливість передачі приміщень в суборенду. Характеристики: • Кількість поверхів – 3 • Загальна площа – 3622,5 кв.м. • Площа запропонована до оренди – 32,5 кв.м. • Електропостачання, водопостачання, теплопостачанняцентралізоване; • Земельна ділянка – 0, 603 га (договір оренди)
Адреса місцезнаходження майна:
Україна, Дніпропетровська обл., Жовті Води, бульвар Свободи, 39
Схожі пропозиції
25.04.2025
Дніпропетровська обл., м. Кам’янське, вул. Героїв АТО, 1;  Оренда – приміщення 3-го поверху площею 17,3 кв.м. (В)
519.00 грн
30.00 грн / м2
Приміщення
Дніпропетровська обл., м. Кам’янське, вул. Героїв АТО, 1; Оренда – приміщення 3-го поверху площею 17,3 кв.м. (В)
Україна, Дніпропетровська обл., Кам’янське, вул. Героїв АТО, 1
Дніпропетровська обл., м. Дніпро, бульвар Рубіновий, буд.18. Оренда приміщень 1-5 -го поверхів
143 708.04 грн
37.80 грн / м2
Приміщення
Дніпропетровська обл., м. Дніпро, бульвар Рубіновий, буд.18. Оренда приміщень 1-5 -го поверхів
Україна, Дніпропетровська обл., м. Дніпро, бульвар Рубіновий, буд.18
25.04.2025
Дніпропетровська обл., м. Кам’янське, просп. Свободи, 44. Оренда – приміщення 5-го поверху загальною площею 237,20 кв.м (В)
4 846.40 грн
20.43 грн / м2
Приміщення
Дніпропетровська обл., м. Кам’янське, просп. Свободи, 44. Оренда – приміщення 5-го поверху загальною площею 237,20 кв.м (В)
Україна, Дніпропетровська обл., м. Кам’янське, просп. Свободи, 44
25.04.2025
Дніпропетровська обл., м. Нікополь, вулиця Патріотів України, буд.113-А;  Оренда – перший поверх, загальною площею 1104,3 кв.м.(В)
13 251.60 грн
12.00 грн / м2
Приміщення
Дніпропетровська обл., м. Нікополь, вулиця Патріотів України, буд.113-А; Оренда – перший поверх, загальною площею 1104,3 кв.м.(В)
Україна, Дніпропетровська обл., Нікополь, вул. Патріотів України, буд. 113-А
Переглянуті пропозиції
Рівненська обл., м. Дубровиця, вул. Шевченка, 53. Оренда – приміщення 3 поверху, площею 71,9 м. кв. (В)
1 951.37 грн
27.14 грн / м2
Приміщення
Рівненська обл., м. Дубровиця, вул. Шевченка, 53. Оренда – приміщення 3 поверху, площею 71,9 м. кв. (В)
Україна, Рівненська обл., м. Дубровиця, вул. Шевченка, 53
21.01.2025
Чернігівська обл., смт. Сосниця, вул. Б. Хмельницького, 16. Оренда – підвальне приміщення площею 31,35 кв.м. (В)
501.60 грн
16.00 грн / м2
Приміщення
Чернігівська обл., смт. Сосниця, вул. Б. Хмельницького, 16. Оренда – підвальне приміщення площею 31,35 кв.м. (В)
Україна, Чернігівська обл., смт. Сосниця, вул. Б. Хмельницького, 16