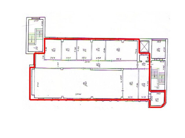
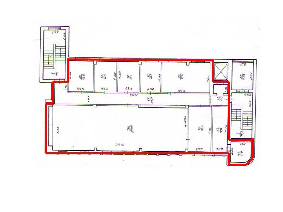
Івано-Франківська обл., м. Надвірна, вул. Мазепи, 1. Оренда приміщення 5-го поверху площею 249,80 кв.м. (В)

1 139.09 грн
4.56 грн / м2
Україна, Івано-Франківська обл., м. Надвірна, вул. Мазепи, 1
Перейти до аукціону на сайті
  • Інформація
  • Опис
  • Документи
Дата оголошення пропозиції:
05 жовтня 2020
Площа:
249.80 м2
Тип об’єкта:
Приміщення
Тип аукціону:
Англійський аукціон
Статус аукціону:
Аукціон не відбувся
Тип угоди:
Оренда
Розмір мінімального кроку:
100.00 ₴
Розмір гарантійного внеску:
683.45 ₴
Початок прийому пропозицій:
05.10.2020 10:55:13
Завершення прийому пропозицій:
04.11.2020 20:00:00
Лот:
UA-PS-2020-10-05-000069-1
№ лоту (УТК):
UTK270320_10
Лот виставляється на торги (раз):
7
Стислий опис майна:
Пропонуються до оренди приміщення 5-го поверху площею 249,8 кв.м. Будівля знаходиться в центральній частині міста, розвинена інфраструктура, високий пішохідний потік.
Адреса місцезнаходження майна:
Україна, Івано-Франківська обл., м. Надвірна, вул. Мазепи, 1
Схожі пропозиції
Івано-Франківська обл., Івано-Франківський р-н, с.Росільна, вул. Шевченка, 145а. Оренда – Нежитлове приміщення І-го поверху, площею 33,4 м.кв. (В)
500.33 грн
14.98 грн / м2
Приміщення
Івано-Франківська обл., Івано-Франківський р-н, с.Росільна, вул. Шевченка, 145а. Оренда – Нежитлове приміщення І-го поверху, площею 33,4 м.кв. (В)
Україна, Івано-Франківська обл., Івано-Франківський р-н, с.Росільна, вул. Шевченка, 145а
м. Івано-Франківськ вул. Ребета, 2. Оренда Нежитлові приміщення площею 1247,5 кв.м.(В)
9 805.35 грн
7.86 грн / м2
Приміщення
м. Івано-Франківськ вул. Ребета, 2. Оренда Нежитлові приміщення площею 1247,5 кв.м.(В)
Україна, Івано-Франківська обл., м. Івано-Франківськ, вул. Ребета, 2
27.12.2024
Івано-Франківська обл. м.Івано-Франківськ, вул. В.Симоненка, 1;  Оренда – приміщення 1-го поверху, площею 37,5 м.кв. (В)
3 121.88 грн
83.25 грн / м2
Приміщення
Івано-Франківська обл. м.Івано-Франківськ, вул. В.Симоненка, 1; Оренда – приміщення 1-го поверху, площею 37,5 м.кв. (В)
Україна, Івано-Франківська обл., Івано-Франківськ, вулиця Василя Симоненка, 1
м. Івано-Франківськ, вул. В.Симоненка, 1.Оренда – приміщення 3-го поверху площею 800,2 м.кв.(В)
15 339.83 грн
19.17 грн / м2
Приміщення
м. Івано-Франківськ, вул. В.Симоненка, 1.Оренда – приміщення 3-го поверху площею 800,2 м.кв.(В)
Україна, Івано-Франківська обл., Івано-Франківськ, вул. В.Симоненка, 1
Переглянуті пропозиції
28.12.2023
Івано-Франківська обл., м. Івано-Франківськ, вул. В.Симоненка,1;   Оренда – приміщення 3-го поверху, площею 800,2 м.кв (В)
50 444.61 грн
63.04 грн / м2
Приміщення
Івано-Франківська обл., м. Івано-Франківськ, вул. В.Симоненка,1; Оренда – приміщення 3-го поверху, площею 800,2 м.кв (В)
Україна, Івано-Франківська обл., Івано-Франківськ, вул. Василя Симоненка,1
03.06.2025
Харківська обл., Ізюмський р-н, смт. Донець, вул. Центральна, 42. Оренда – приміщення 2-го поверху площею 171,5 кв.м. (В)
2 058.00 грн
12.00 грн / м2
Приміщення
Харківська обл., Ізюмський р-н, смт. Донець, вул. Центральна, 42. Оренда – приміщення 2-го поверху площею 171,5 кв.м. (В)
Україна, Харківська обл., Ізюмський р-н, смт. Донець, вул. Центральна, 42
27.09.2024
Чернігівська обл., м. Чернігів, проспект Миру, 28. Оренда – приміщення 3- го поверху площею 56,6 кв.м (В)
4 945.71 грн
87.38 грн / м2
Приміщення
Чернігівська обл., м. Чернігів, проспект Миру, 28. Оренда – приміщення 3- го поверху площею 56,6 кв.м (В)
Україна, Чернігівська обл., м. Чернігів, проспект Миру, 28
Львівська обл., м. Винники, вул. Сухомлинського,2. Оренда – приміщення 1-го та 2-го поверху площею 435,7 кв.м. (В)
16 521.74 грн
37.92 грн / м2
Приміщення
Львівська обл., м. Винники, вул. Сухомлинського,2. Оренда – приміщення 1-го та 2-го поверху площею 435,7 кв.м. (В)
Україна, Львівська обл., м. Винники, вул. Сухомлинського, 2