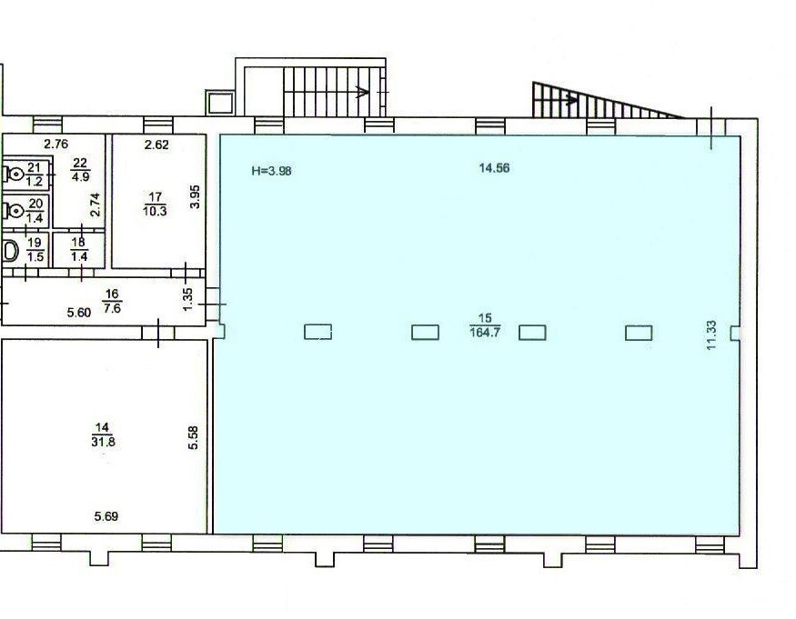
ГОЛЛАНДСЬКИЙ АУКЦІОН! Вінницька обл., м. Іллінці, вул. Соборна, 29.Оренда – приміщення 1-го поверху площею 164,7 кв.м.(В)

1 067.26 грн
6.48 грн / м2
Україна, Вінницька обл., Іллінці,, вул. Соборна, 29
Перейти до аукціону на сайті
  • Інформація
  • Опис
  • Документи
Дата оголошення пропозиції:
22 жовтня 2020
Площа:
164.70 м2
Тип об’єкта:
Приміщення
Тип аукціону:
Англійський аукціон
Статус аукціону:
Аукціон не відбувся
Тип угоди:
Оренда
Розмір мінімального кроку:
0.00 ₴
Розмір гарантійного внеску:
640.36 ₴
Початок прийому пропозицій:
22.10.2020 12:42:48
Завершення прийому пропозицій:
06.11.2020 16:23:30
Проведення аукціону:
06.11.2020 09:38:30
Лот:
UA-PS-2020-10-22-000020-3
№ лоту (УТК):
UTK080420_02
Лот виставляється на торги (раз):
7
Стислий опис майна:
Пропонуються до оренди приміщення 1-го поверху площею 164,7 кв.м. Будівля знаходиться в центральній частині м. Іллінці, поруч ринок та торговельні заклади; високі автомобільний та пішохідний потоки. Характеристики - Кількість поверхів –2; - Загальна площа будівлі – 1387 кв.м; - Електропостачання,
Адреса місцезнаходження майна:
Україна, Вінницька обл., Іллінці,, вул. Соборна, 29
Схожі пропозиції
04.10.2024
Вінницька обл., Тульчинський р-н, смт. Крижопіль, вул. Чабанюка, 1;   Оренда – приміщення 1-го поверху площею 12,85 кв.м. (В)
257.00 грн
20.00 грн / м2
Приміщення
Вінницька обл., Тульчинський р-н, смт. Крижопіль, вул. Чабанюка, 1; Оренда – приміщення 1-го поверху площею 12,85 кв.м. (В)
Україна, Вінницька обл., Крижопіль, вул. Чабанюка, 1
15.06.2023
Вінницька обл., Вінницький р-н, м. Немирів, вул. Горького, 20. Оренда – приміщення складу площею 219,7 кв. м (В)
6 283.42 грн
28.60 грн / м2
Приміщення
Вінницька обл., Вінницький р-н, м. Немирів, вул. Горького, 20. Оренда – приміщення складу площею 219,7 кв. м (В)
Україна, Вінницька обл., Немирів, пров. Горького 20
07.03.2025
Вінницька обл., Вінницький р-н, м. Немирів, вул. Шевченка, 25;   Оренда – приміщення 4-го поверху, площею 349,8 кв.м. (В)
4 466.95 грн
12.77 грн / м2
Приміщення
Вінницька обл., Вінницький р-н, м. Немирів, вул. Шевченка, 25; Оренда – приміщення 4-го поверху, площею 349,8 кв.м. (В)
Україна, Вінницька обл., Немирів, вул. Шевченка, 25
12.03.2024
Вінницька обл., м. Погребище, вул. Вінницька, 2;  Оренда – приміщення 1 поверху площею 35,0 кв.м (В)
1 302.00 грн
37.20 грн / м2
Приміщення
Вінницька обл., м. Погребище, вул. Вінницька, 2; Оренда – приміщення 1 поверху площею 35,0 кв.м (В)
Україна, Вінницька обл., Погребище, Вінницька вулиця, 2
Переглянуті пропозиції
06.02.2024
м. Харків,  пр-т  Ювілейний, 66;   Оренда – приміщення 2-го поверху площею 10,9 кв.м (В)
849.55 грн
77.94 грн / м2
Приміщення
м. Харків, пр-т Ювілейний, 66; Оренда – приміщення 2-го поверху площею 10,9 кв.м (В)
Україна, Харківська обл., Харків, проспект Ювілейний, 66
02.09.2022
Чернігівська обл., м. Борзна, вул. П. Куліша, 100. Оренда – приміщення 1-го поверху площею 16,45 кв.м. (В)
421.28 грн
25.61 грн / м2
Приміщення
Чернігівська обл., м. Борзна, вул. П. Куліша, 100. Оренда – приміщення 1-го поверху площею 16,45 кв.м. (В)
Україна, Чернігівська обл., Борзна, пров. Пантелеймона Куліша 100
13.05.2025
м. Київ, вул. Князів Острозьких (Московська), 23 (В). Оренда – приміщення підвалу будівлі, площею 254,50 м2
58 781.87 грн
230.97 грн / м2
Приміщення
м. Київ, вул. Князів Острозьких (Московська), 23 (В). Оренда – приміщення підвалу будівлі, площею 254,50 м2
Україна, м.Київ, Київ, вулиця Князів Острозьких, 23