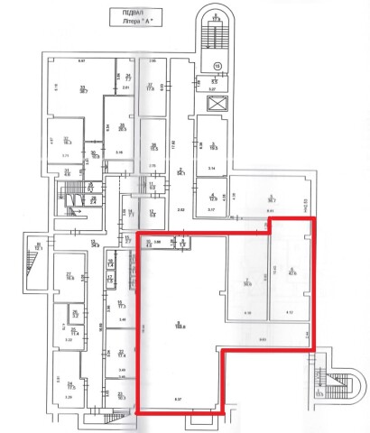
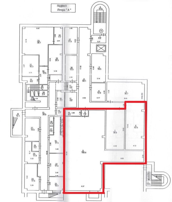
м. Київ, вул. Князів Острозьких (Московська), 23 (В). Оренда – приміщення підвалу будівлі, площею 254,50 м2

58 781.87 грн
230.97 грн / м2
Україна, м.Київ, Київ, вулиця Князів Острозьких, 23
Перейти до аукціону на сайті
  • Інформація
  • Опис
  • Документи
Дата оголошення пропозиції:
12 квітня 2025
Площа:
254.50 м2
Тип об’єкта:
Приміщення
Тип аукціону:
Англійський аукціон
Статус аукціону:
Аукціон не відбувся
Тип угоди:
Оренда
Розмір мінімального кроку:
1 000.00 ₴
Розмір гарантійного внеску:
35 269.12 ₴
Початок прийому пропозицій:
12.04.2025 22:06:46
Завершення прийому пропозицій:
12.05.2025 20:00:00
Проведення аукціону:
13.05.2025 12:45:00
Лот:
CLE001-UA-20250412-37843
№ лоту (УТК):
UTK050325_78U
Лот виставляється на торги (раз):
2
Стислий опис майна:
Пропонуються до оренди приміщення підвалу будівлі, літ. «А», площею 254,50 м2. Розташування будівлі у Печерському районі міста Києва, місцевість Печерськ. Поруч розвинена інфраструктура, зупинки громадського транспорту, супермаркети, центральна вулиця міста, у пішому доступі 5 хв до ст. м. «Арсенальна». Характеристики • кількість поверхів – 5; • сан. вузол, каналізація, теплозабезпечення – присутнє; • площа будівлі – літ. «А» - 6172,50 м2; • опалення централізоване (міське); • земельна ділянка – 0,26 га; • енерго потужність – 10 кВт.
Адреса місцезнаходження майна:
Україна, м.Київ, Київ, вулиця Князів Острозьких, 23
Схожі пропозиції
23.07.2024
м. Київ, вул. Василя Макуха (Івана Шевцова), 5;   Оренда – приміщення 1-го поверху будівлі, площею 401,5 кв.м. (В)
83 720.78 грн
208.52 грн / м2
Приміщення
м. Київ, вул. Василя Макуха (Івана Шевцова), 5; Оренда – приміщення 1-го поверху будівлі, площею 401,5 кв.м. (В)
Україна, м.Київ, м. Київ, вулиця Василя Макуха (Івана Шевцова), 5
04.06.2025
02091, м. Київ, вул. Архітектора Вербицького, 3 (Дарницький р-н). Оренда – Приміщення 3-го поверху, площею 198,10 кв.м. (В)
18 970.06 грн
95.76 грн / м2
Приміщення
02091, м. Київ, вул. Архітектора Вербицького, 3 (Дарницький р-н). Оренда – Приміщення 3-го поверху, площею 198,10 кв.м. (В)
Україна, м.Київ, Київ, 02091, м. Київ, вул. Архітектора Вербицького , 3
м. Київ, вул. Макіївська, 3.Оренда – приміщення 2-го поверху, площею 724,10 м2 (В)
33 453.42 грн
46.20 грн / м2
Приміщення
м. Київ, вул. Макіївська, 3.Оренда – приміщення 2-го поверху, площею 724,10 м2 (В)
Україна, м.Київ, Київ, вул. Макіївська, 3
05.12.2023
м. Київ, вул. Василя Макуха (Івана Шевцова), 5;   Оренда – приміщення 1-го поверху будівлі, площею 401,5 кв.м. (В)
83 720.78 грн
208.52 грн / м2
Приміщення
м. Київ, вул. Василя Макуха (Івана Шевцова), 5; Оренда – приміщення 1-го поверху будівлі, площею 401,5 кв.м. (В)
Україна, м.Київ, м. Київ, вулиця Василя Макуха (Івана Шевцова), 5