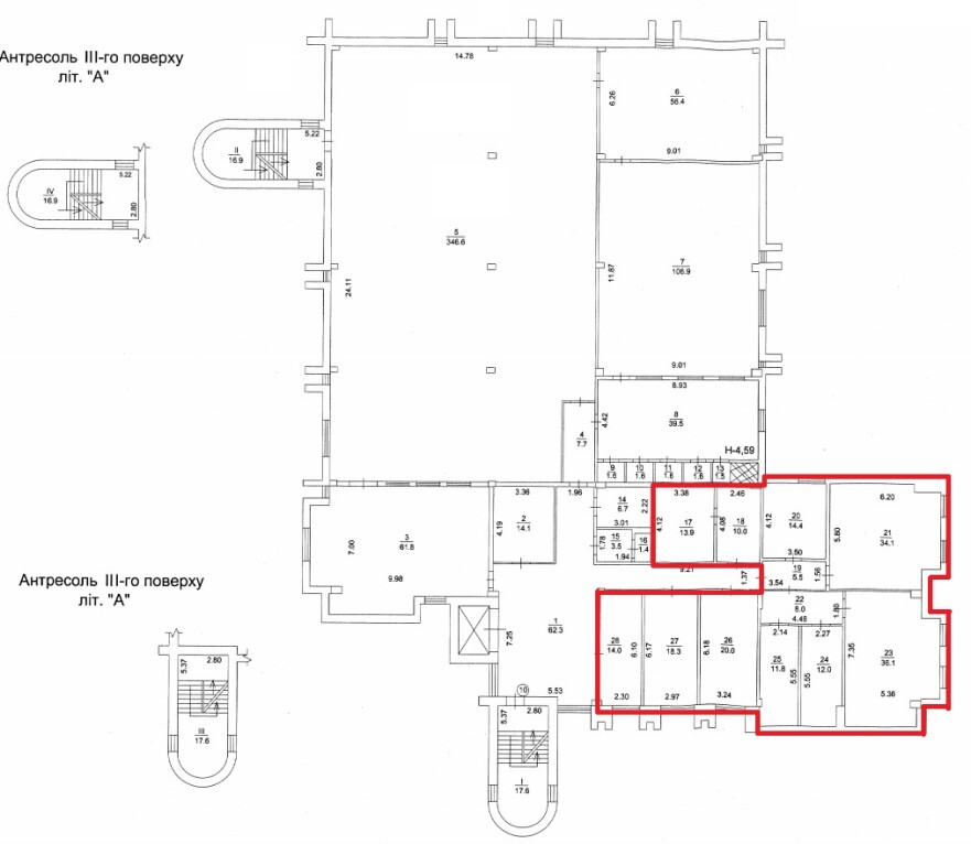
02091, м. Київ, вул. Архітектора Вербицького, 3 (Дарницький р-н). Оренда – Приміщення 3-го поверху, площею 198,10 кв.м. (В)

18 970.06 грн
95.76 грн / м2
Україна, м.Київ, Київ, 02091, м. Київ, вул. Архітектора Вербицького , 3
Перейти до аукціону на сайті
  • Інформація
  • Опис
  • Документи
Дата оголошення пропозиції:
03 травня 2025
Площа:
198.10 м2
Тип об’єкта:
Приміщення
Тип аукціону:
Англійський аукціон
Статус аукціону:
Аукціон не відбувся
Тип угоди:
Оренда
Розмір мінімального кроку:
250.00 ₴
Розмір гарантійного внеску:
11 382.04 ₴
Початок прийому пропозицій:
03.05.2025 18:29:24
Завершення прийому пропозицій:
03.06.2025 20:00:00
Проведення аукціону:
04.06.2025 12:05:00
Лот:
CLE001-UA-20250503-86215
№ лоту (УТК):
UTK200225_39U
Лот виставляється на торги (раз):
2
Стислий опис майна:
Пропонується до оренди приміщення 3-го поверху, площею 198,10 кв.м.. Будівля знаходиться в Дарницькому районі міста Києва, житловий масив Харківський. Зупинки маршрутного транспорту, супермаркети, торгово-розважальні центри. Найближчі станції метро «Харківська», «Вирлиця». Вхід з двору. Характеристики: • загальна площа будівлі – 4804,70 м2; • кількість поверхів – 5; • опалення централізоване (міське); • земельна ділянка – 0,55 га; • каналізація, водозабезпечення, сан. вузол – присутні на поверсі;
Адреса місцезнаходження майна:
Україна, м.Київ, Київ, 02091, м. Київ, вул. Архітектора Вербицького , 3
Схожі пропозиції
м. Київ, вул. Райдужна, 27-А, оренда – приміщення підвалу, площею 274,70 кв.м. (В)
12 691.14 грн
46.20 грн / м2
Приміщення
м. Київ, вул. Райдужна, 27-А, оренда – приміщення підвалу, площею 274,70 кв.м. (В)
Україна, м.Київ, Київ, вул. Райдужна, 27-А
26.10.2023
м. Київ, вул. Джона Маккейна, №40;  Оренда – приміщення підвалу, площею 44,26 кв.м. (В)
10 498.03 грн
237.51 грн / м2
Приміщення
м. Київ, вул. Джона Маккейна, №40; Оренда – приміщення підвалу, площею 44,26 кв.м. (В)
Україна, м.Київ, Київ, вулиця Джона Маккейна, 40
19.05.2023
м. Київ, вул. Миколи Голего, 8. Оренда – приміщення 3-го поверху площею 79,7 м2 (В)
6 886.08 грн
86.40 грн / м2
Приміщення
м. Київ, вул. Миколи Голего, 8. Оренда – приміщення 3-го поверху площею 79,7 м2 (В)
Україна, м.Київ, Київ, вулиця Миколи Голего, 8
04.06.2025
м. Київ, вул. Джона Маккейна, 40, літ. «А» (Печерський р-н). Оренда – група приміщень на 1-му поверсі, площею 34,70 кв.м (В)
8 212.80 грн
236.68 грн / м2
Приміщення
м. Київ, вул. Джона Маккейна, 40, літ. «А» (Печерський р-н). Оренда – група приміщень на 1-му поверсі, площею 34,70 кв.м (В)
Україна, м.Київ, Київ, 01042, м. Київ, вул. Джона Маккейна, 40, літ. «А» (Печерський р-н)
Переглянуті пропозиції
05.06.2024
м. Харків, вул.Старошишківська,5а. Оренда – приміщення 1-го поверху, площею 51,7 кв.м (В)
2 678.58 грн
51.81 грн / м2
Приміщення
м. Харків, вул.Старошишківська,5а. Оренда – приміщення 1-го поверху, площею 51,7 кв.м (В)
Україна, Харківська обл., м. Харків, вул.Старошишківська,5а
Чернігівська обл., Ніжинський р-н, с. Нова Басань, вул. Шевченка, 43. Оренда – приміщення 1-го поверху площею 27,10 кв.м. (В)
962.59 грн
35.52 грн / м2
Приміщення
Чернігівська обл., Ніжинський р-н, с. Нова Басань, вул. Шевченка, 43. Оренда – приміщення 1-го поверху площею 27,10 кв.м. (В)
Україна, Чернігівська обл., Нова Басань, вул. Шевченка, 43
07.11.2024
Рівненська обл., Сарненський р-н, смт. Степань, вул. Київська, 18. Оренда – приміщення 2-го поверху та гараж, загальною площею 186,80 кв.м. (В)
1 806.36 грн
9.67 грн / м2
Приміщення
Рівненська обл., Сарненський р-н, смт. Степань, вул. Київська, 18. Оренда – приміщення 2-го поверху та гараж, загальною площею 186,80 кв.м. (В)
Україна, Рівненська обл., Сарненський р-н, смт. Степань, вул. Київська, 18