м. Київ, вул. Райдужна, 27-А, оренда – приміщення підвалу, площею 274,70 кв.м. (В)

12 691.14 грн
46.20 грн / м2
Україна, м.Київ, Київ, вул. Райдужна, 27-А
Перейти до аукціону на сайті
  • Інформація
  • Опис
  • Документи
Дата оголошення пропозиції:
04 січня 2022
Площа:
274.70 м2
Тип об’єкта:
Приміщення
Тип аукціону:
Англійський аукціон
Статус аукціону:
Аукціон не відбувся
Тип угоди:
Оренда
Розмір мінімального кроку:
300.00 ₴
Розмір гарантійного внеску:
7 614.68 ₴
Початок прийому пропозицій:
04.01.2022 13:50:11
Завершення прийому пропозицій:
31.01.2022 20:00:00
Лот:
UA-PS-2022-01-04-000029-3
№ лоту (УТК):
UTK160621_02T
Лот виставляється на торги (раз):
7
Стислий опис майна:
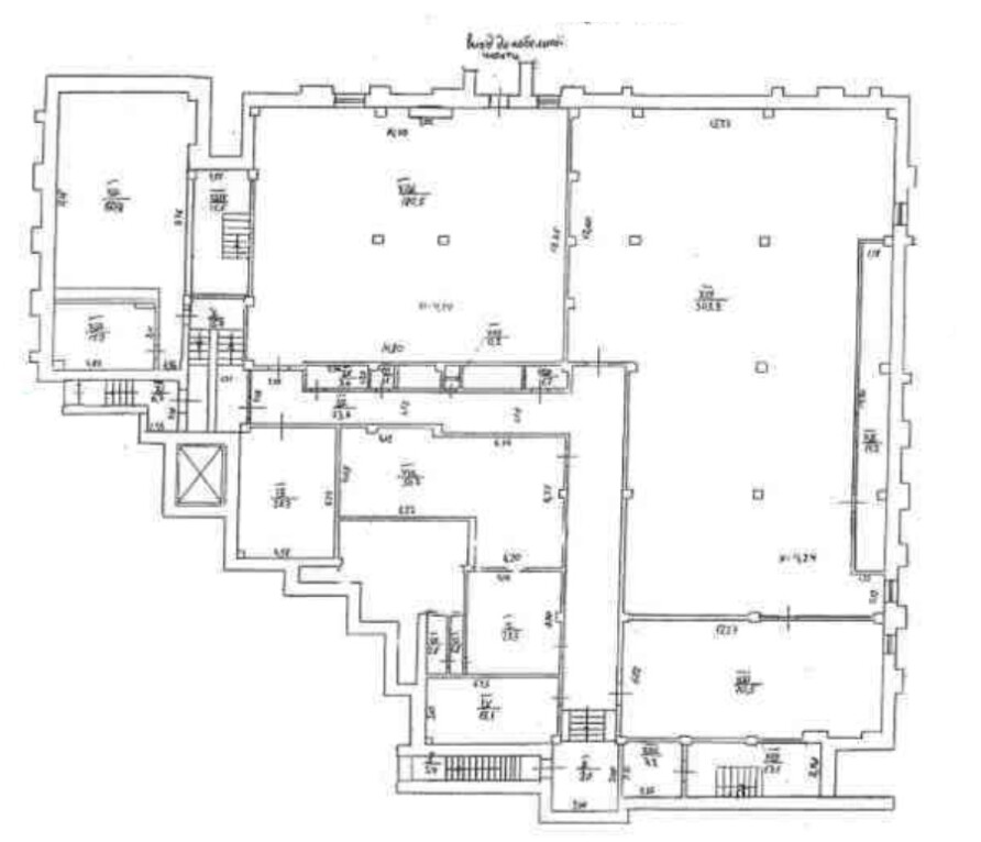
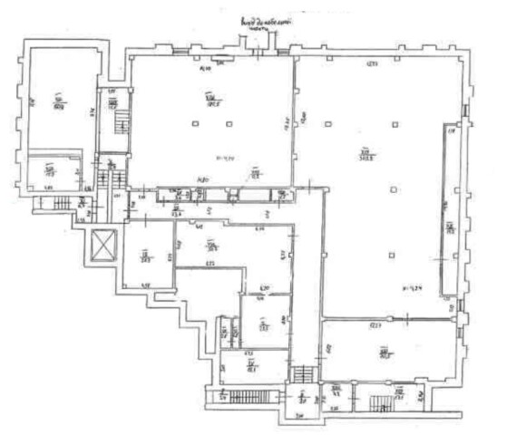
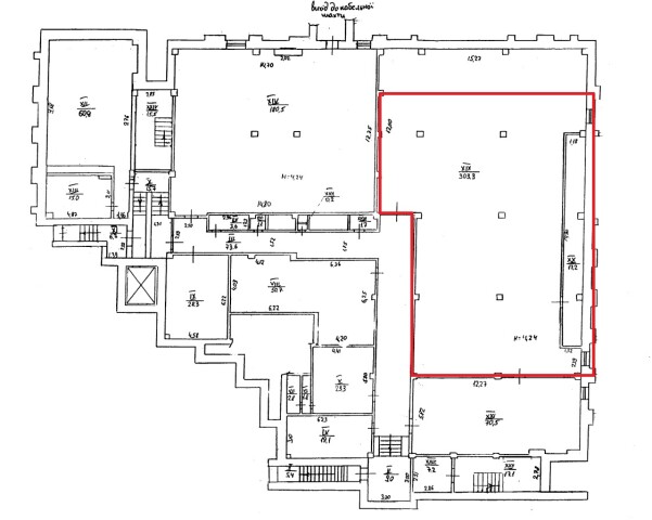
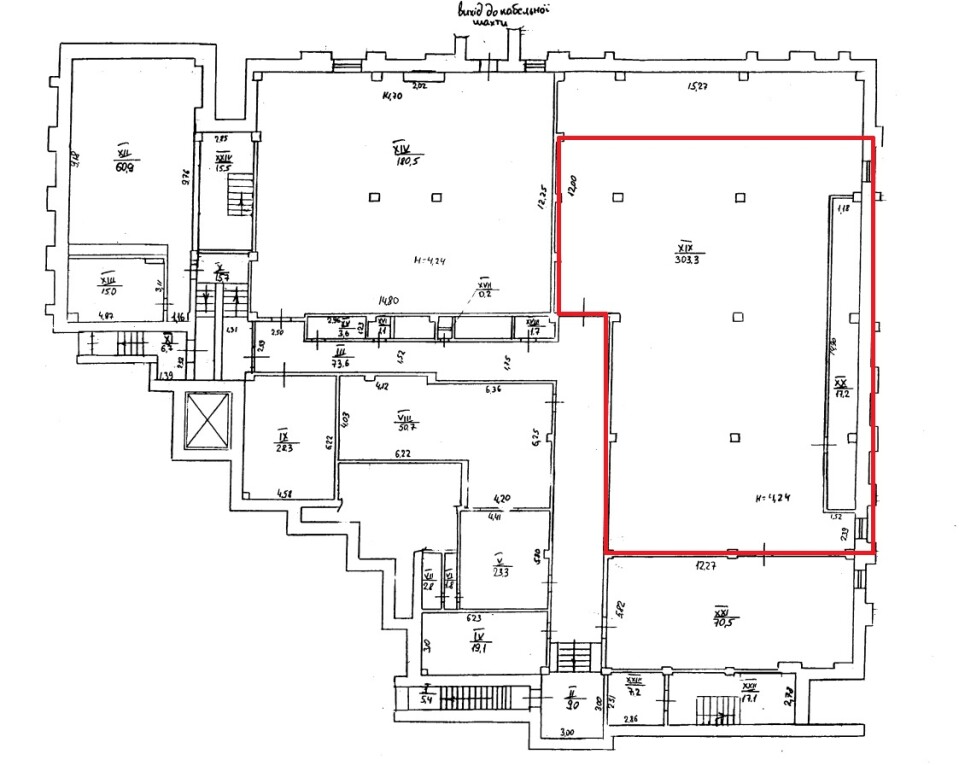
Пропонуються до оренди приміщення підвалу, площею 274,70 м2. Будівля знаходиться у Дніпровському районі міста Києва, житловий масив Райдужний. Поруч розвинена інфраструктура, зупинки маршрутного транспорту, авторинок, супермаркети, торгівельно-розважальні центри. Вхід у будівлю з двору. Характеристики: • кількість поверхів – 2; • опалення централізоване (міське); • земельна ділянка – 0,2524 га; • загальна площа будівлі -- 3040,30 м2; • каналізація, сан. вузол, водопостачання – відсутнє;
Адреса місцезнаходження майна:
Україна, м.Київ, Київ, вул. Райдужна, 27-А
Схожі пропозиції
09.07.2025
м. Київ, вул. Наталії Ужвій 1 (Подільський р-н). Оренда – приміщення 1-го поверху, загальною площею – 65,60 м. кв. (В)
6 006.34 грн
91.56 грн / м2
Приміщення
м. Київ, вул. Наталії Ужвій 1 (Подільський р-н). Оренда – приміщення 1-го поверху, загальною площею – 65,60 м. кв. (В)
Україна, м.Київ, Київ, 04108, м. Київ, вул. Наталії Ужвій 1
26.04.2023
ДОВГОСТРОКОВА ОРЕНДА! м. Київ, вул. Ісаакяна, 3. Оренда – Приміщення цокольного поверху площею 400,8 кв.м. (В)
60 705.17 грн
151.46 грн / м2
Приміщення
ДОВГОСТРОКОВА ОРЕНДА! м. Київ, вул. Ісаакяна, 3. Оренда – Приміщення цокольного поверху площею 400,8 кв.м. (В)
Україна, м.Київ, Київ, вулиця Ісаакяна, 3
м. Київ, вул. Макіївська, 3.Оренда – приміщення 2-го поверху площею 724,1 кв.м. (В)
23 417.39 грн
32.34 грн / м2
Приміщення
м. Київ, вул. Макіївська, 3.Оренда – приміщення 2-го поверху площею 724,1 кв.м. (В)
Україна, м.Київ, Київ, вул. Макіївська, 3
16.09.2022
м. Київ, вул. Ісаакяна, 3. Оренда – Приміщення 1-го поверху площею 57,90 кв.м. (В)
10 961.63 грн
189.32 грн / м2
Приміщення
м. Київ, вул. Ісаакяна, 3. Оренда – Приміщення 1-го поверху площею 57,90 кв.м. (В)
Україна, м.Київ, Київ, вулиця Ісаакяна, 3
Переглянуті пропозиції
27.09.2024
м. Харків, вул.Старошишківська,5а. Оренда – приміщення 1-го поверху, площею 51,7 кв.м (В)
2 678.58 грн
51.81 грн / м2
Приміщення
м. Харків, вул.Старошишківська,5а. Оренда – приміщення 1-го поверху, площею 51,7 кв.м (В)
Україна, Харківська обл., м. Харків, вул.Старошишківська,5а
29.03.2024
ДОВГОСТРОКОВА ОРЕНДА! м. Київ, вул. Героїв Севастополя, 39/8 літ. «Е»;  Оренда – приміщення 2-го та 4-го поверхів, площею 1751,8 кв.м. (В)
239 944.05 грн
136.97 грн / м2
Приміщення
ДОВГОСТРОКОВА ОРЕНДА! м. Київ, вул. Героїв Севастополя, 39/8 літ. «Е»; Оренда – приміщення 2-го та 4-го поверхів, площею 1751,8 кв.м. (В)
Україна, м.Київ, Київ, вул. Героїв Севастополя, 39/8(Е)