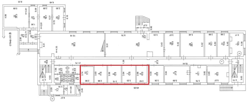
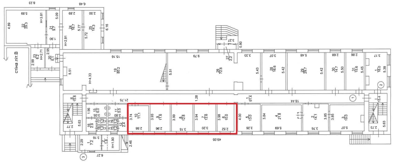
м. Київ, вул. Ісаакяна, 3. Оренда – Приміщення 1-го поверху площею 57,90 кв.м. (В)

10 961.63 грн
189.32 грн / м2
Україна, м.Київ, Київ, вулиця Ісаакяна, 3
Перейти до аукціону на сайті
  • Інформація
  • Опис
  • Документи
Дата оголошення пропозиції:
17 серпня 2022
Площа:
57.90 м2
Тип об’єкта:
Приміщення
Тип аукціону:
Англійський аукціон
Статус аукціону:
Аукціон не відбувся
Тип угоди:
Оренда
Розмір мінімального кроку:
120.00 ₴
Розмір гарантійного внеску:
6 576.98 ₴
Початок прийому пропозицій:
17.08.2022 07:10:51
Завершення прийому пропозицій:
15.09.2022 20:00:00
Проведення аукціону:
16.09.2022 11:35:00
Лот:
CLE001-UA-20220817-11748
№ лоту (УТК):
UTK040422_03T
Лот виставляється на торги (раз):
5
Стислий опис майна:
Пропонується до оренди офісні приміщення першого поверху, площею 57,90 кв.м. Розташування будівлі у Шевченківському районі міста Києва, місцевість Шулявка. Поруч розвинена інфраструктура, зупинки швидкісного трамваю, маршрутного та громадського транспорту, магазини, кафе, аптеки. Вхід з двору, через прохідну. Доступ вільний 24/7. Характеристики Загальна площа будівлі – 2069,60 м2; Площа запропонована до оренди – 57,90 м2; Опалення – міське (централізоване) Кількість поверхів – 3; Загальна площа земельної ділянки – 0,2892 га; Сан. вузол, водопостачання, каналізація – присутні (на поверсі)
Адреса місцезнаходження майна:
Україна, м.Київ, Київ, вулиця Ісаакяна, 3
Схожі пропозиції
м. Київ, Стратегічне шосе, 21-А. Оренда - приміщення 1-го, 2-го та 4-го поверхів площею 2290 кв.м. (В)
35 953.00 грн
15.70 грн / м2
Приміщення
м. Київ, Стратегічне шосе, 21-А. Оренда - приміщення 1-го, 2-го та 4-го поверхів площею 2290 кв.м. (В)
Україна, м.Київ, м. Київ, Стратегічне шосе, 21-А
05.04.2023
м. Київ, вул. Миколи Голего, 8. Оренда – приміщення 1-го поверху площею 30,9 м2 (В)
3 337.20 грн
108.00 грн / м2
Приміщення
м. Київ, вул. Миколи Голего, 8. Оренда – приміщення 1-го поверху площею 30,9 м2 (В)
Україна, м.Київ, Київ, вулиця Миколи Голего, 8
19.05.2023
м. Київ, вул. Ореста Васкула (Феодори Пушиної), 27. Оренда – приміщення 3-го поверху, площею 7,5 кв.м (В)
1 556.55 грн
207.54 грн / м2
Приміщення
м. Київ, вул. Ореста Васкула (Феодори Пушиної), 27. Оренда – приміщення 3-го поверху, площею 7,5 кв.м (В)
Україна, м.Київ, м. Київ, вул. Ореста Васкула (Феодори Пушиної), 27
м. Київ, вул. Маршала Малиновського №19-А. Оренда – приміщення 1-го поверху площею 120,30 кв.м. (В)
29 545.68 грн
245.60 грн / м2
Приміщення
м. Київ, вул. Маршала Малиновського №19-А. Оренда – приміщення 1-го поверху площею 120,30 кв.м. (В)
Україна, м.Київ, Київ, вул. Маршала Малиновського №19-А
Переглянуті пропозиції
13.03.2025
Львівська обл., м. Львів, вул. Берестяна, 2. Оренда – приміщення 4-го поверху площею 323,90 кв.м. (В)
19 434.00 грн
60.00 грн / м2
Приміщення
Львівська обл., м. Львів, вул. Берестяна, 2. Оренда – приміщення 4-го поверху площею 323,90 кв.м. (В)
Україна, Львівська обл., м. Львів, вул. Берестяна, 2
07.02.2025
Дніпропетровська обл., м. Жовті Води, вул. Свободи, 39. Оренда – приміщення 3-го поверху площею 104,40 кв.м. (В)
552.28 грн
5.29 грн / м2
Приміщення
Дніпропетровська обл., м. Жовті Води, вул. Свободи, 39. Оренда – приміщення 3-го поверху площею 104,40 кв.м. (В)
Україна, Дніпропетровська обл., м. Жовті Води, вул. Свободи, 39
23.11.2022
Рівненська обл., Дубнівський р-н., м. Дубно, вул. Данила Галицького, 15. Оренда – приміщення 4-го поверху площею 501,1 кв.м. (В)
9 390.61 грн
18.74 грн / м2
Приміщення
Рівненська обл., Дубнівський р-н., м. Дубно, вул. Данила Галицького, 15. Оренда – приміщення 4-го поверху площею 501,1 кв.м. (В)
Україна, Рівненська обл., Дубнівський р-н., м. Дубно, вул. Данила Галицького, 15