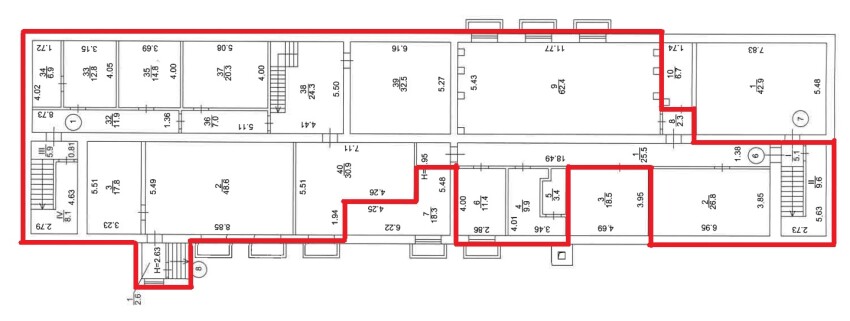
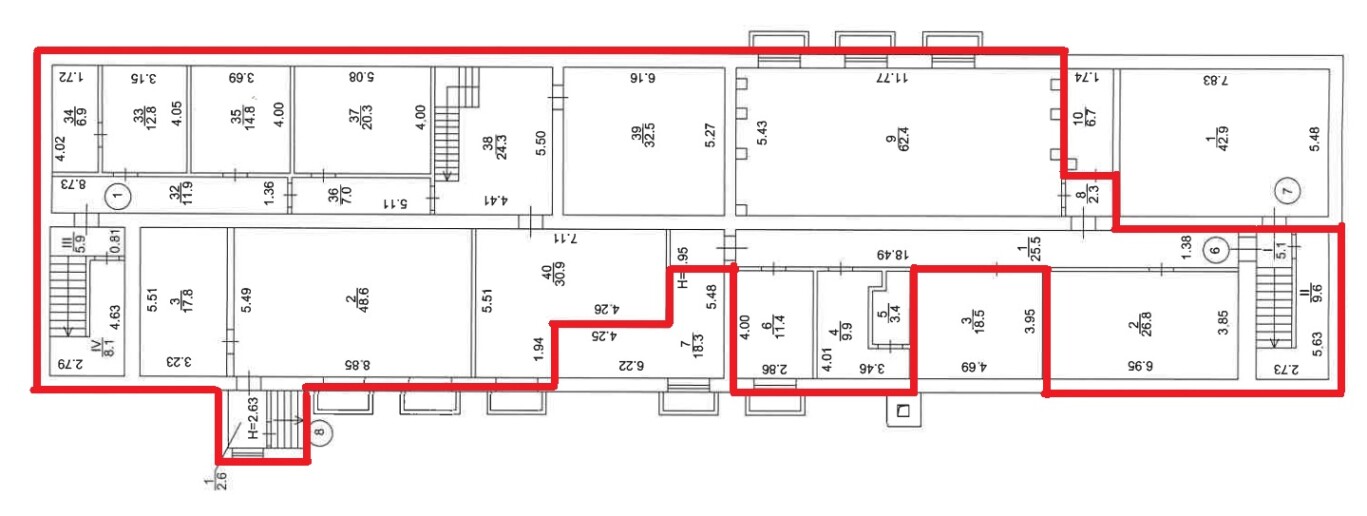
ДОВГОСТРОКОВА ОРЕНДА! м. Київ, вул. Ісаакяна, 3. Оренда – Приміщення цокольного поверху площею 400,8 кв.м. (В)

60 705.17 грн
151.46 грн / м2
Україна, м.Київ, Київ, вулиця Ісаакяна, 3
Перейти до аукціону на сайті
  • Інформація
  • Опис
  • Документи
Дата оголошення пропозиції:
24 березня 2023
Площа:
400.80 м2
Тип об’єкта:
Приміщення
Тип аукціону:
Англійський аукціон
Статус аукціону:
Аукціон не відбувся
Тип угоди:
Оренда
Розмір мінімального кроку:
650.00 ₴
Розмір гарантійного внеску:
36 423.10 ₴
Початок прийому пропозицій:
24.03.2023 14:25:25
Завершення прийому пропозицій:
25.04.2023 20:00:00
Проведення аукціону:
26.04.2023 12:00:00
Лот:
CLE001-UA-20230324-72199
№ лоту (УТК):
UTK040422_02T
Лот виставляється на торги (раз):
10
Стислий опис майна:
Пропонується до оренди частина приміщень цокольного поверху, площею 400,8 кв.м. Розташування будівлі у Шевченківському районі міста Києва, місцевість Шулявка. Поруч розвинена інфраструктура, зупинки швидкісного трамваю, маршрутного та громадського транспорту, магазини, кафе, аптеки. Вхід з двору, через прохідну. Доступ вільний 24/7. Характеристики Загальна площа будівлі – 2069,6 м2; Площа запропонована до оренди – 400,8 м2; Опалення – міське (централізоване) Кількість поверхів – 3; Загальна площа земельної ділянки – 0,2892 га; Сан. вузол, водопостачання, каналізація – відсутнє (на поверсі)
Адреса місцезнаходження майна:
Україна, м.Київ, Київ, вулиця Ісаакяна, 3
Схожі пропозиції
21.03.2025
м. Київ, вул. Архітектора Вербицького, 3 (Дарницький р-н). Оренда – Приміщення 1-го поверху, площею 215,20 м.кв. (В)
29 439.36 грн
136.80 грн / м2
Приміщення
м. Київ, вул. Архітектора Вербицького, 3 (Дарницький р-н). Оренда – Приміщення 1-го поверху, площею 215,20 м.кв. (В)
Україна, м.Київ, Київ, 02091, м. Київ, вул. Архітектора Вербицького , 3
м. Київ, вул. Ісаакяна, 3 Оренда – Приміщення 2-го поверху площею 149,81 кв.м. (В)
48 214.85 грн
321.84 грн / м2
Приміщення
м. Київ, вул. Ісаакяна, 3 Оренда – Приміщення 2-го поверху площею 149,81 кв.м. (В)
Україна, м.Київ, Київ, вул. Ісаакяна, 3
25.01.2023
ДОВГОСТРОКОВА ОРЕНДА! м. Київ, вул. Героїв Севастополя, 39/8 літ. «Е». Оренда – приміщення 2-го та 4-го поверхів, площею 1751,8 м2 (В)
80 933.16 грн
46.20 грн / м2
Приміщення
ДОВГОСТРОКОВА ОРЕНДА! м. Київ, вул. Героїв Севастополя, 39/8 літ. «Е». Оренда – приміщення 2-го та 4-го поверхів, площею 1751,8 м2 (В)
Україна, м.Київ, Київ, вулиця Героїв Севастополя, 39
12.01.2024
ДОВГОСТРОКОВА ОРЕНДА!  м. Київ, вул. Василя Макуха (Шевцова Івана),5; Оренда – приміщення 3-го поверху площею 905,3 кв.м. (В)
132 137.59 грн
145.96 грн / м2
Приміщення
ДОВГОСТРОКОВА ОРЕНДА! м. Київ, вул. Василя Макуха (Шевцова Івана),5; Оренда – приміщення 3-го поверху площею 905,3 кв.м. (В)
Україна, м.Київ, Київ, вул. Василя Макуха (Шевцова Івана), 5
Переглянуті пропозиції
26.04.2023
ДОВГОСТРОКОВА ОРЕНДА! м. Київ, вул. Ісаакяна, 3. Оренда – Приміщення 3-го поверху площею 501,5 кв.м. (В)
75 957.19 грн
151.46 грн / м2
Приміщення
ДОВГОСТРОКОВА ОРЕНДА! м. Київ, вул. Ісаакяна, 3. Оренда – Приміщення 3-го поверху площею 501,5 кв.м. (В)
Україна, м.Київ, Київ, вулиця Ісаакяна, 3
27.09.2022
Кіровоградська обл., м. Гайворон, вул. Героїв Майдану, 4. Оренда – приміщення 2-го поверху площею 58,22 кв.м. (В)
500.11 грн
8.59 грн / м2
Приміщення
Кіровоградська обл., м. Гайворон, вул. Героїв Майдану, 4. Оренда – приміщення 2-го поверху площею 58,22 кв.м. (В)
Україна, Харківська обл., м. Гайворон, вул. Героїв Майдану, 4
17.10.2023
м. Харків, вул. Конторська,14.Оренда – приміщення 4-го поверху площею 25,8 кв.м (В)
1 787.94 грн
69.30 грн / м2
Приміщення
м. Харків, вул. Конторська,14.Оренда – приміщення 4-го поверху площею 25,8 кв.м (В)
Україна, Харківська обл., м. Харків, вул. Конторська,14
30.12.2022
м. Київ, вул. Ісаакяна, 3 Оренда – Приміщення 2-го поверху площею 149,81 кв.м. (В)
22 690.22 грн
151.46 грн / м2
Приміщення
м. Київ, вул. Ісаакяна, 3 Оренда – Приміщення 2-го поверху площею 149,81 кв.м. (В)
Україна, м.Київ, Київ, вулиця Ісаакяна, 3