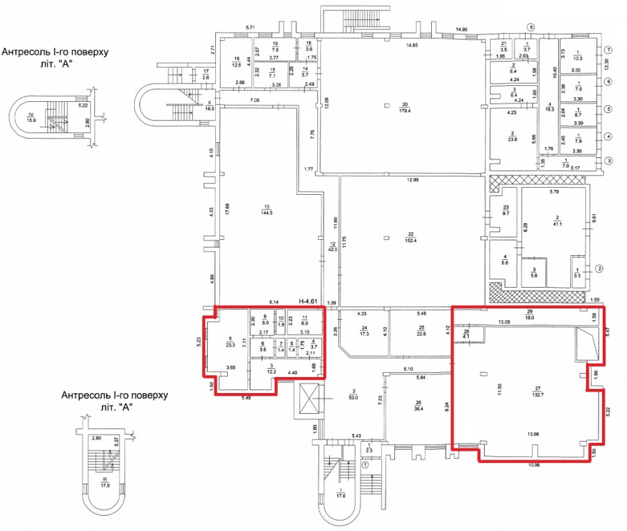
м. Київ, вул. Архітектора Вербицького, 3 (Дарницький р-н). Оренда – Приміщення 1-го поверху, площею 215,20 м.кв. (В)

29 439.36 грн
136.80 грн / м2
Україна, м.Київ, Київ, 02091, м. Київ, вул. Архітектора Вербицького , 3
Перейти до аукціону на сайті
  • Інформація
  • Опис
  • Документи
Дата оголошення пропозиції:
21 лютого 2025
Площа:
215.20 м2
Тип об’єкта:
Приміщення
Тип аукціону:
Англійський аукціон
Статус аукціону:
Аукціон не відбувся
Тип угоди:
Оренда
Розмір мінімального кроку:
300.00 ₴
Розмір гарантійного внеску:
17 663.61 ₴
Початок прийому пропозицій:
21.02.2025 03:25:34
Завершення прийому пропозицій:
20.03.2025 20:00:00
Проведення аукціону:
21.03.2025 12:30:00
Лот:
CLE001-UA-20250221-81906
№ лоту (УТК):
UTK200225_41U
Лот виставляється на торги (раз):
1
Стислий опис майна:
Пропонується до оренди приміщення 1-го поверху, площею 215,20 м2. Будівля знаходиться в Дарницькому районі міста Києва, житловий масив Харківський. Зупинки маршрутного транспорту, супермаркети, торгово-розважальні центри. Найближчі станції метро «Харківська», «Вирлиця». Вхід з двору. Характеристики: • загальна площа будівлі – 4804,70 м2; • кількість поверхів – 5; • опалення централізоване (міське); • земельна ділянка – 0,55 га; • каналізація, водозабезпечення, сан. вузол – присутні на поверсі.
Адреса місцезнаходження майна:
Україна, м.Київ, Київ, 02091, м. Київ, вул. Архітектора Вербицького , 3
Схожі пропозиції
м. Київ, вул. Володимирська, 10 Оренда – Приміщення 1-го поверху, площею 201,1 м2 (В)
141 660.87 грн
704.43 грн / м2
Приміщення
м. Київ, вул. Володимирська, 10 Оренда – Приміщення 1-го поверху, площею 201,1 м2 (В)
Україна, м.Київ, Київ, вул. Володимирська, 10
м. Київ, вул. Феодори Пушиної, 27-А, оренда - приміщення 3-го поверху, площею 12,60 м. кв. (В)
1 474.20 грн
117.00 грн / м2
Приміщення
м. Київ, вул. Феодори Пушиної, 27-А, оренда - приміщення 3-го поверху, площею 12,60 м. кв. (В)
Україна, м.Київ, Київ, вул. Феодори Пушиної, 27
07.11.2024
ДОВГОСТРОКОВА ОРЕНДА! м. Київ, вул. Салютна, 5а, літ. «Б»;  Оренда – приміщення 3-го та 4-го поверхів площею 992,8 кв.м. (В)
122 720.01 грн
123.61 грн / м2
Приміщення
ДОВГОСТРОКОВА ОРЕНДА! м. Київ, вул. Салютна, 5а, літ. «Б»; Оренда – приміщення 3-го та 4-го поверхів площею 992,8 кв.м. (В)
Україна, м.Київ, Київ, вулиця Салютна, 5а, літ.Б
м. Київ, вул. Володимирська, 10 Оренда – Приміщення 1-го поверху, площею 201,1 м2 (В)
141 660.87 грн
704.43 грн / м2
Приміщення
м. Київ, вул. Володимирська, 10 Оренда – Приміщення 1-го поверху, площею 201,1 м2 (В)
Україна, м.Київ, Київ, вул. Володимирська, 10
Переглянуті пропозиції
Рівненська обл., м. Сарни, Широка 33 Оренда приміщення 1 пов.
758.16 грн
23.40 грн / м2
Приміщення
Рівненська обл., м. Сарни, Широка 33 Оренда приміщення 1 пов.
Україна, Рівненська обл., м. Сарни, вул. Широка, буд. 33
Харківська обл., м. Лозова, вул. Михайла Грушевського, 7. Оренда – приміщення 1-го та 2-го поверхів
12 961.80 грн
22.80 грн / м2
Приміщення
Харківська обл., м. Лозова, вул. Михайла Грушевського, 7. Оренда – приміщення 1-го та 2-го поверхів
Україна, Харківська обл., м. Лозова, вул. Михайла Грушевського, буд. 7
17.11.2020
ГОЛЛАНДСЬКИЙ АУКЦІОН. Полтавська обл., м. Миргород, вулиця Гоголя, буд. 96/9 . Оренда – приміщення 3-го поверху площею 20,1 кв.м. (В)
818.07 грн
40.70 грн / м2
Приміщення
ГОЛЛАНДСЬКИЙ АУКЦІОН. Полтавська обл., м. Миргород, вулиця Гоголя, буд. 96/9 . Оренда – приміщення 3-го поверху площею 20,1 кв.м. (В)
Україна, Полтавська обл., м. Миргород, вул. Гоголя, буд. 96/9
Полтавська обл., м. Кременчук, вул. Вадима Пугачова, 12 Оренда приміщень 3й пов.
30 251.52 грн
46.80 грн / м2
Приміщення
Полтавська обл., м. Кременчук, вул. Вадима Пугачова, 12 Оренда приміщень 3й пов.
Україна, Полтавська обл., м. Кременчук, вул. Вадима Пугачова, 12