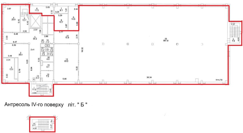
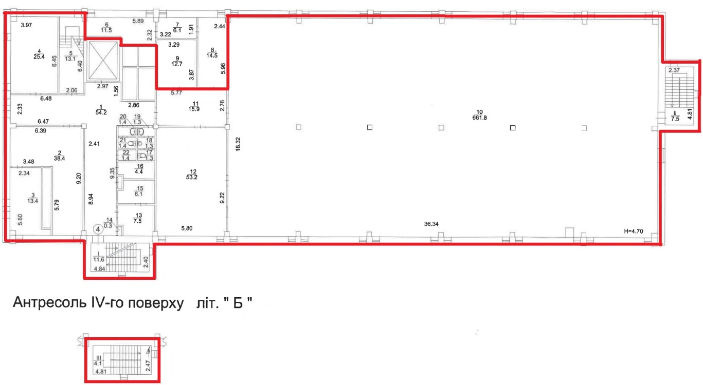
ДОВГОСТРОКОВА ОРЕНДА! м. Київ, вул. Салютна, 5а, літ. «Б»; Оренда – приміщення 3-го та 4-го поверхів площею 992,8 кв.м. (В)

122 720.01 грн
123.61 грн / м2
Україна, м.Київ, Київ, вулиця Салютна, 5а, літ.Б
Перейти до аукціону на сайті
  • Інформація
  • Опис
  • Документи
Дата оголошення пропозиції:
05 жовтня 2024
Площа:
992.80 м2
Тип об’єкта:
Приміщення
Тип аукціону:
Англійський аукціон
Статус аукціону:
Аукціон не відбувся
Тип угоди:
Оренда
Розмір мінімального кроку:
1 500.00 ₴
Розмір гарантійного внеску:
73 632.00 ₴
Початок прийому пропозицій:
05.10.2024 09:07:05
Завершення прийому пропозицій:
06.11.2024 20:00:00
Проведення аукціону:
07.11.2024 11:15:00
Лот:
CLE001-UA-20241005-36414
№ лоту (УТК):
UTK040422_06T
Лот виставляється на торги (раз):
10
Стислий опис майна:
Пропонуються до оренди приміщення 3-го та 4-го поверху, літ. «Б», площею 992,8 кв.м . Будівля розташована в Шевченківському районі міста Києва, місцевість Нивки. Поруч розвинена інфраструктура, зупинки маршрутного транспорту, супермаркети, бізнес-центри, фінансові заклади, 5 хв. від ст. м. «Нивки». Вхід з двору. Доступ 24/7. Характеристики • кількість поверхів – 4; • сан. вузол, каналізація – присутні; • площа будівлі – літ. «Б» - 4892,1 м2; • опалення централізоване (міське); • земельна ділянка – 0,6317 га;
Адреса місцезнаходження майна:
Україна, м.Київ, Київ, вулиця Салютна, 5а, літ.Б
Схожі пропозиції
12.01.2024
м. Київ, вул. Джона Маккейна, №40;   Оренда – приміщення підвалу, площею 24,80 м2 (В)
5 882.31 грн
237.19 грн / м2
Приміщення
м. Київ, вул. Джона Маккейна, №40; Оренда – приміщення підвалу, площею 24,80 м2 (В)
Україна, м.Київ, Київ, вулиця Джона Маккейна, 40
15.08.2023
м. Київ, вул. Миколи Голего, 8. Оренда – приміщення 1-го поверху площею 30,9 м2 (В)
6 259.41 грн
202.57 грн / м2
Приміщення
м. Київ, вул. Миколи Голего, 8. Оренда – приміщення 1-го поверху площею 30,9 м2 (В)
Україна, м.Київ, Київ, вулиця Миколи Голего, 8
04.09.2025
м. Київ, вул. Наталії Ужвій 1 (Подільський р-н). Оренда – приміщення 1-го поверху, загальною площею – 71,20 м. кв. (В)
6 519.07 грн
91.56 грн / м2
Приміщення
м. Київ, вул. Наталії Ужвій 1 (Подільський р-н). Оренда – приміщення 1-го поверху, загальною площею – 71,20 м. кв. (В)
Україна, м.Київ, Київ, 04108, м. Київ, вул. Наталії Ужвій 1
Київ, вул. Джона Маккейна, №40, оренда – приміщення 1-го поверху, площею 65,60 м2 (В)
17 927.82 грн
273.29 грн / м2
Приміщення
Київ, вул. Джона Маккейна, №40, оренда – приміщення 1-го поверху, площею 65,60 м2 (В)
Україна, м.Київ, Київ, вул. Джона Маккейна, 40