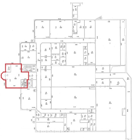
м. Київ, вул. Наталії Ужвій 1 (Подільський р-н). Оренда – приміщення 1-го поверху, загальною площею – 71,20 м. кв. (В)

6 519.07 грн
91.56 грн / м2
Україна, м.Київ, Київ, 04108, м. Київ, вул. Наталії Ужвій 1
Перейти до аукціону на сайті
  • Інформація
  • Опис
  • Документи
Дата оголошення пропозиції:
03 серпня 2025
Площа:
71.20 м2
Тип об’єкта:
Приміщення
Тип аукціону:
Англійський аукціон
Статус аукціону:
Аукціон не відбувся
Тип угоди:
Оренда
Розмір мінімального кроку:
330.00 ₴
Розмір гарантійного внеску:
3 911.44 ₴
Початок прийому пропозицій:
03.08.2025 08:38:08
Завершення прийому пропозицій:
03.09.2025 20:00:00
Проведення аукціону:
04.09.2025 12:10:00
Лот:
CLE001-UA-20250803-85142
№ лоту (УТК):
UTK21032501U
Лот виставляється на торги (раз):
4
Стислий опис майна:
Пропонуються до оренди приміщення 1-го поверху, загальною площею71,20 м. кв. Будівля розташована у Подільському районі міста Києва, житловий масив Мостицький. Поруч розвинена інфраструктура, зупинки маршрутного транспорту, кафе. Характеристики: • кількість поверхів – 3; • загальна площа об'єкта – 5230,70 кв. м.; • земельна ділянка – 0,3222 га*; • дозволена потужність – 3,00 кВт; • водозабезпечення, сан. вузол, каналізація – присутні (загальний на поверсі); • опалення - централізоване (присутнє). *земельна ділянка не є предметом оренди.
Адреса місцезнаходження майна:
Україна, м.Київ, Київ, 04108, м. Київ, вул. Наталії Ужвій 1
Схожі пропозиції
12.01.2024
ДОВГОСТРОКОВА ОРЕНДА! м. Київ, вул. Салютна, 5а, літ. «Б»;  Оренда – приміщення 3-го та 4-го поверхів площею 992,8 кв.м. (В)
122 720.01 грн
123.61 грн / м2
Приміщення
ДОВГОСТРОКОВА ОРЕНДА! м. Київ, вул. Салютна, 5а, літ. «Б»; Оренда – приміщення 3-го та 4-го поверхів площею 992,8 кв.м. (В)
Україна, м.Київ, Київ, вулиця Салютна, 5а, літ.Б
15.12.2020
м. Київ, вул. Антоновича, 40. Оренда - приміщення 5-го поверху площею 768,7 кв.м. (В)
113 352.50 грн
147.46 грн / м2
Приміщення
м. Київ, вул. Антоновича, 40. Оренда - приміщення 5-го поверху площею 768,7 кв.м. (В)
Україна, м.Київ, місто Київ, вул. Антоновича, 40
24.11.2022
м. Київ, вул. Ісаакяна, 3 Оренда – Приміщення 2-го поверху площею 149,81 кв.м. (В)
22 690.22 грн
151.46 грн / м2
Приміщення
м. Київ, вул. Ісаакяна, 3 Оренда – Приміщення 2-го поверху площею 149,81 кв.м. (В)
Україна, м.Київ, Київ, вулиця Ісаакяна, 3
Переглянуті пропозиції
Львівська обл., смт. Верхнє Синьовидне, вул. Січових Стрільців, 71а. Оренда – будівля площею 28,60 кв.м. (В)
802.80 грн
28.07 грн / м2
Будівля
Львівська обл., смт. Верхнє Синьовидне, вул. Січових Стрільців, 71а. Оренда – будівля площею 28,60 кв.м. (В)
Україна, Львівська обл., смт. Верхнє Синьовидне, вул. Січових Стрільців, 71а