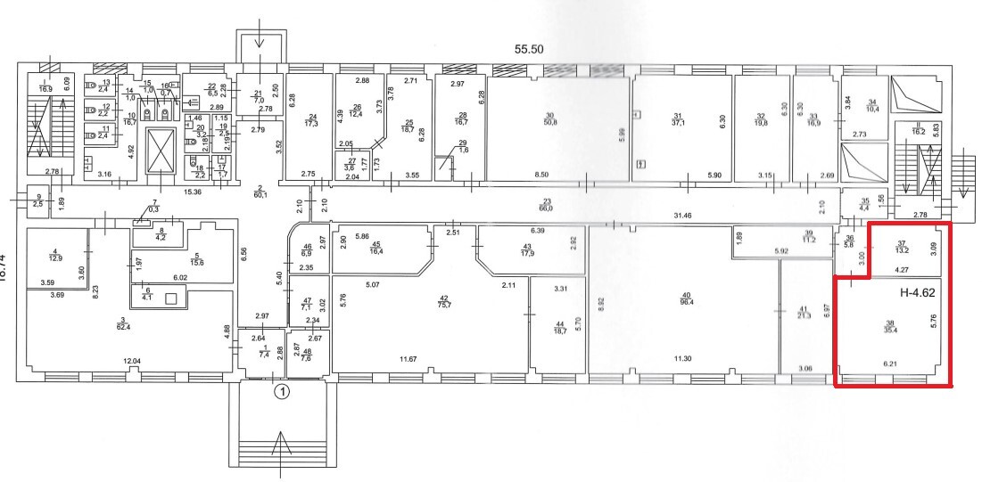
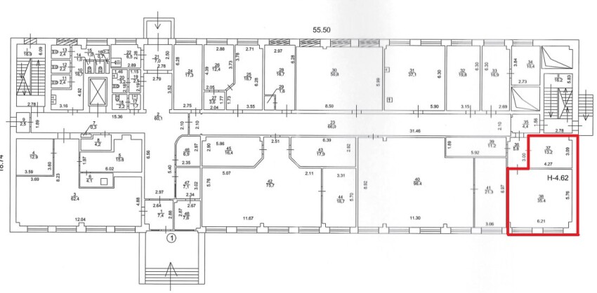
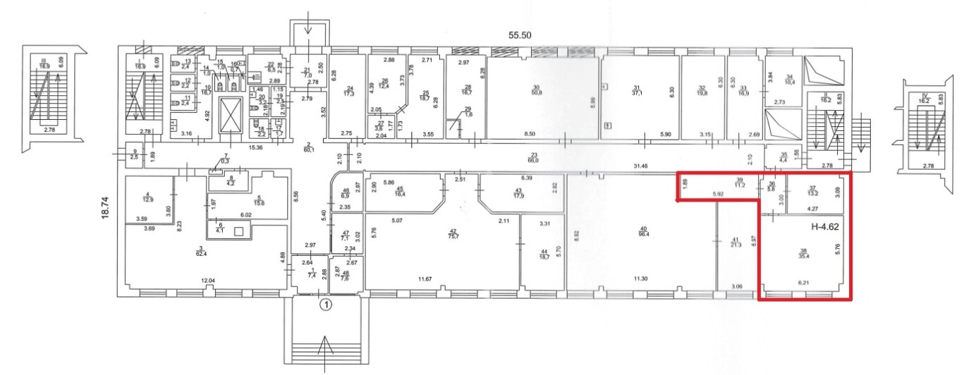
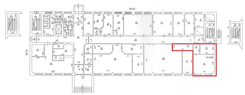
Київ, вул. Джона Маккейна, №40, оренда – приміщення 1-го поверху, площею 65,60 м2 (В)

17 927.82 грн
273.29 грн / м2
Україна, м.Київ, Київ, вул. Джона Маккейна, 40
Перейти до аукціону на сайті
  • Інформація
  • Опис
  • Документи
Дата оголошення пропозиції:
06 вересня 2021
Площа:
65.60 м2
Тип об’єкта:
Приміщення
Тип аукціону:
Англійський аукціон
Статус аукціону:
Аукціон не відбувся
Тип угоди:
Оренда
Розмір мінімального кроку:
400.00 ₴
Розмір гарантійного внеску:
10 756.69 ₴
Початок прийому пропозицій:
06.09.2021 11:10:25
Завершення прийому пропозицій:
05.10.2021 20:00:00
Лот:
UA-PS-2021-09-06-000019-1
№ лоту (УТК):
UTK020721_03Т
Лот виставляється на торги (раз):
3
Стислий опис майна:
До оренди пропонуються приміщення 1-го поверху площею 65,60 м². Будівля знаходиться в Печерському районі міста Києва, місцевість Саперне поле, в пішому доступі до ст. м. Дружби Народів (до 5 хв.) та ст. м. Либідська, ст. м. Печерська (до 10 хв.), у районі розвинена інфраструктура й відмінна транспортна розв’язка, поруч торгові центри, супермаркети, парки. Високий автомобільний і пішохідний потоки. Вхід з вул. Джона Маккейна. Характеристики: • загальна площа об'єкта- 4778,7 кв. м.; • кількість поверхів – 4; • опалення централізоване (міське); • земельна ділянка – 0,461059 га. • водопостачання, каналізація, сан. вузол – присутні (на поверсі)
Адреса місцезнаходження майна:
Україна, м.Київ, Київ, вул. Джона Маккейна, 40
Схожі пропозиції
28.05.2025
м. Київ, вул. Наталії Ужвій 1 (Подільський р-н). Оренда – приміщення 1-го поверху, загальною площею – 41,00 м. кв.(В)
4 558.38 грн
111.18 грн / м2
Приміщення
м. Київ, вул. Наталії Ужвій 1 (Подільський р-н). Оренда – приміщення 1-го поверху, загальною площею – 41,00 м. кв.(В)
Україна, м.Київ, Київ, 04108, м. Київ, вул. Наталії Ужвій 1
14.04.2023
м. Київ, бульвар Бучми Амвросія, 5. Оренда – приміщення 3-го та 4-го поверхів технічної будівлі АТС-550 (літ. «Б»), площею 1006,83 кв. м. (В)
01.03.2023
ДОВГОСТРОКОВА ОРЕНДА! м. Київ, вул. Героїв Севастополя, 39/8 літ. «Е». Оренда – приміщення 2-го та 4-го поверхів, площею 1751,8 м2 (В)
80 933.16 грн
46.20 грн / м2
Приміщення
ДОВГОСТРОКОВА ОРЕНДА! м. Київ, вул. Героїв Севастополя, 39/8 літ. «Е». Оренда – приміщення 2-го та 4-го поверхів, площею 1751,8 м2 (В)
Україна, м.Київ, Київ, вулиця Героїв Севастополя, 39
14.09.2022
м. Київ, вул. Н. Ужвій, 1. Оренда – приміщення 3-го поверху, площею 21,90 кв.м. (В)
1 718.71 грн
78.48 грн / м2
Приміщення
м. Київ, вул. Н. Ужвій, 1. Оренда – приміщення 3-го поверху, площею 21,90 кв.м. (В)
Україна, м.Київ, Київ, вулиця Наталії Ужвій, 1