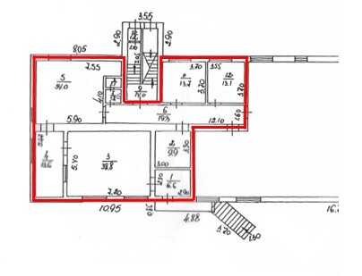
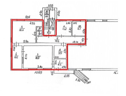
Київська обл., м. Сквира, вул. Героїв Небесної Сотні (вул. Ювілейна), 17, літ. «А-3-5», Оренда – приміщення 1-го поверху, площею 151,90 м. кв. (В)

5 787.39 грн
38.10 грн / м2
Україна, Київська обл., Сквира, вул. Героїв Небесної Сотні, 17
Перейти до аукціону на сайті
  • Інформація
  • Опис
  • Документи
Дата оголошення пропозиції:
01 березня 2021
Площа:
151.90 м2
Тип об’єкта:
Приміщення
Тип аукціону:
Англійський аукціон
Статус аукціону:
Аукціон не відбувся
Тип угоди:
Оренда
Розмір мінімального кроку:
200.00 ₴
Розмір гарантійного внеску:
3 472.43 ₴
Початок прийому пропозицій:
01.03.2021 10:30:03
Завершення прийому пропозицій:
15.03.2021 20:00:00
Лот:
UA-PS-2021-03-01-000011-1
№ лоту (УТК):
UTK010321_05Т
Лот виставляється на торги (раз):
1
Стислий опис майна:
Пропонується до оренди приміщення 1-го поверху, площею 151,90 м. кв. в центральній частині м. Сквира. Стан приміщень задовільний. Поруч розташована Сквирська РДА, продовольчі магазини, аптеки, банківські та поштові відділення, зручний під’їзд. Характеристики: кількість поверхів – 3; загальна площа будівлі – 1975,0 м2; опалення централізоване (міське); земельна ділянка – 0,3159 га; сан. вузол, водопостачання, каналізація - присутні на поверсі;
Адреса місцезнаходження майна:
Україна, Київська обл., Сквира, вул. Героїв Небесної Сотні, 17
Схожі пропозиції
13.05.2025
Київська обл., Білоцерківський р-н, м. Біла Церква, вул. Дачна, 1, літ. «А-4» Оренда – група приміщень на 1-му поверсі, загальною площею – 74,20 кв.м (В)
8 792.70 грн
118.50 грн / м2
Приміщення
Київська обл., Білоцерківський р-н, м. Біла Церква, вул. Дачна, 1, літ. «А-4» Оренда – група приміщень на 1-му поверсі, загальною площею – 74,20 кв.м (В)
Україна, Київська обл., Біла Церква, Біла Церква, вул. Дачна, 1, літ. «А-4»
29.03.2024
Київська обл., Білоцерківський р-н, м. Тараща, вул. Шевченка, 37, літ. «А-4»;  Оренда – приміщення 2-го поверху, площею 190,1 кв.м. (В)
513.27 грн
2.70 грн / м2
Приміщення
Київська обл., Білоцерківський р-н, м. Тараща, вул. Шевченка, 37, літ. «А-4»; Оренда – приміщення 2-го поверху, площею 190,1 кв.м. (В)
Україна, Київська обл., Тараща, вул. Шевченка, 37, літ. «А-4»
28.05.2025
Київська обл., Броварський р-н, м. Березань, вул. Героїв Небесної Сотні, 12. Оренда – приміщення на 2-му поверсі, площею 11,00 кв.м (В)
519.53 грн
47.23 грн / м2
Приміщення
Київська обл., Броварський р-н, м. Березань, вул. Героїв Небесної Сотні, 12. Оренда – приміщення на 2-му поверсі, площею 11,00 кв.м (В)
Україна, Київська обл., Березань, 07541, Київська обл., Броварський р-н, м. Березань, вул. Героїв Небесної Сотні, 12
14.09.2022
Київська обл., м. Бориспіль, вул. Київський шлях, 86-А. Оренда – приміщення 3-го поверху, площею 38,30 кв.м. (В)
2 343.96 грн
61.20 грн / м2
Приміщення
Київська обл., м. Бориспіль, вул. Київський шлях, 86-А. Оренда – приміщення 3-го поверху, площею 38,30 кв.м. (В)
Україна, Київська обл., Бориспіль, вулиця Київський шлях, 86а
Переглянуті пропозиції
24.06.2025
м. Київ, вул. Макіївська, 3, літ. «А» (Оболонський р-н). Оренда – група приміщень на 1-му поверсі, загальною площею 247,40 кв.м (В)
33 265.78 грн
134.46 грн / м2
Приміщення
м. Київ, вул. Макіївська, 3, літ. «А» (Оболонський р-н). Оренда – група приміщень на 1-му поверсі, загальною площею 247,40 кв.м (В)
Україна, м.Київ, Київ, 04082, м. Київ, вул. Макіївська, 3, літ. «А» (Оболонський р-н)
03.06.2025
Сумська обл., м. Кролевець, пл. Свободи, буд. 10/2. Оренда – частина будівлі та гараж, площею 233,30 кв. м. (В)
2 799.60 грн
12.00 грн / м2
Будівля
Сумська обл., м. Кролевець, пл. Свободи, буд. 10/2. Оренда – частина будівлі та гараж, площею 233,30 кв. м. (В)
Україна, Сумська обл., Кролевець, Кролевець, пл. Свободи, буд. 10/2
м. Трускавець, вул. Героїв УПА 11. Оренда будівлі
14 185.50 грн
14.70 грн / м2
Будівля
м. Трускавець, вул. Героїв УПА 11. Оренда будівлі
Україна, Львівська обл., м. Трускавець, вул. Героїв УПА, буд. 11