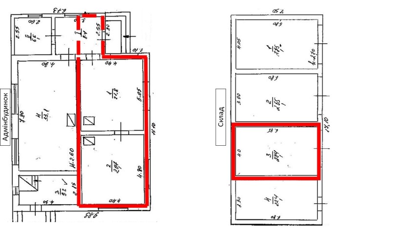
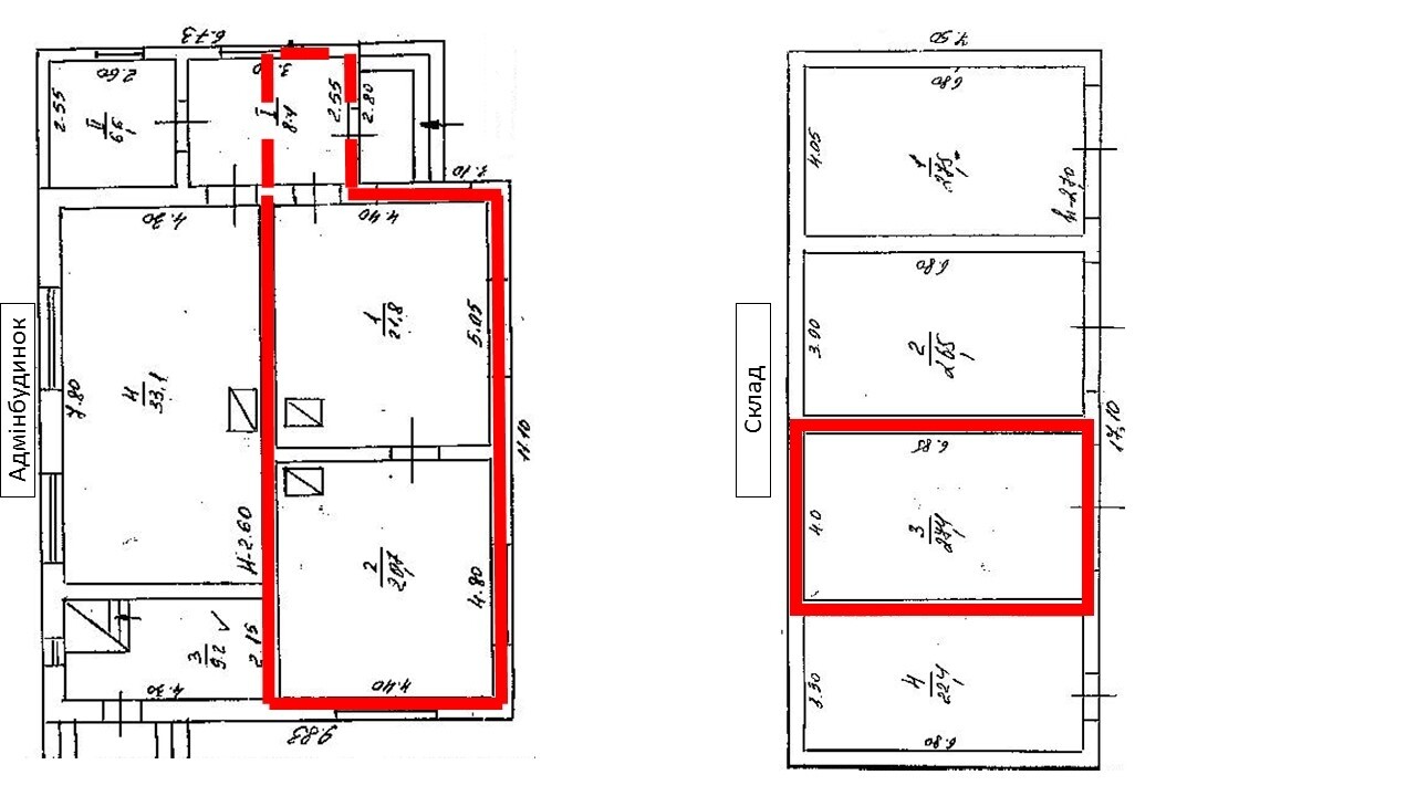
Івано-Франківська обл., Косівський р-н., смт. Яблунів, вул. Шевченка, 58. Оренда – приміщення 1-го поверху та складу, площею 74,10 кв.м. (В)

1 867.32 грн
25.20 грн / м2
Україна, Івано-Франківська обл., Косівський р-н., смт. Яблунів, вул. Шевченка, 58
Перейти до аукціону на сайті
  • Інформація
  • Опис
  • Документи
Дата оголошення пропозиції:
05 квітня 2021
Площа:
74.10 м2
Тип об’єкта:
Приміщення
Тип аукціону:
Англійський аукціон
Статус аукціону:
Аукціон не відбувся
Тип угоди:
Оренда
Розмір мінімального кроку:
100.00 ₴
Розмір гарантійного внеску:
1 120.39 ₴
Початок прийому пропозицій:
05.04.2021 13:01:23
Завершення прийому пропозицій:
19.04.2021 20:00:00
Лот:
UA-PS-2021-04-05-000035-1
№ лоту (УТК):
UTK150321_10P
Лот виставляється на торги (раз):
2
Стислий опис майна:
Пропонуються до оренди приміщення 1-го поверху та складу площею 74,10 кв.м. Будівлі знаходяться на околиці населеного пункту. Придатні для використання під склад, виробництво, тощо. Характеристики: кількість поверхів – 1; опалення відсутнє; земельна ділянка – 0,1796 га
Адреса місцезнаходження майна:
Україна, Івано-Франківська обл., Косівський р-н., смт. Яблунів, вул. Шевченка, 58
Схожі пропозиції
19.10.2022
Івано-Франківська обл., Калуський район, смт.Рожнятів, площа Єдності, 9, оренда – Приміщення 3-го поверху площею 109,6 м.кв. (В)
500.87 грн
4.57 грн / м2
Приміщення
Івано-Франківська обл., Калуський район, смт.Рожнятів, площа Єдності, 9, оренда – Приміщення 3-го поверху площею 109,6 м.кв. (В)
Україна, Івано-Франківська обл., Рожнятів, площа Єдності, 9
19.10.2022
Івано-Франківська обл., Івано-Франківський р-н, с.Росільна, вул. Шевченка, 145а. Оренда – Нежитлове приміщення І-го поверху, площею 33,4 м.кв. (В)
500.33 грн
14.98 грн / м2
Приміщення
Івано-Франківська обл., Івано-Франківський р-н, с.Росільна, вул. Шевченка, 145а. Оренда – Нежитлове приміщення І-го поверху, площею 33,4 м.кв. (В)
Україна, Івано-Франківська обл., Івано-Франківський р-н, с.Росільна, вул. Шевченка, 145а
15.10.2024
Івано-Франківська обл. м.Івано-Франківськ, вул. В.Симоненка, 1;  Оренда – приміщення 1-го поверху, площею 37,5 м.кв. (В)
3 121.88 грн
83.25 грн / м2
Приміщення
Івано-Франківська обл. м.Івано-Франківськ, вул. В.Симоненка, 1; Оренда – приміщення 1-го поверху, площею 37,5 м.кв. (В)
Україна, Івано-Франківська обл., Івано-Франківськ, вулиця Василя Симоненка, 1
05.10.2023
Івано-Франківська обл., м. Івано-Франківськ, вул. Ребета, 2                 Оренда – приміщення складу площею 70,2 кв.м. (В)
5 088.80 грн
72.49 грн / м2
Приміщення
Івано-Франківська обл., м. Івано-Франківськ, вул. Ребета, 2 Оренда – приміщення складу площею 70,2 кв.м. (В)
Україна, Івано-Франківська обл., Івано-Франківськ, вулиця Ребета, 2
Переглянуті пропозиції
м. Київ, вул. Макіївська, 3.Оренда – приміщення 2-го поверху, площею 724,10 м2 (В)
33 453.42 грн
46.20 грн / м2
Приміщення
м. Київ, вул. Макіївська, 3.Оренда – приміщення 2-го поверху, площею 724,10 м2 (В)
Україна, м.Київ, Київ, вул. Макіївська, 3
Рівненська обл., м. Рівне вул. Орлова, 37. Оренда – приміщення 4го поверху площею 326,3 м. кв. (В)
25 089.21 грн
76.89 грн / м2
Приміщення
Рівненська обл., м. Рівне вул. Орлова, 37. Оренда – приміщення 4го поверху площею 326,3 м. кв. (В)
Україна, Рівненська обл., м. Рівне , Рівне вул. Орлова, 37
04.07.2023
Одеська обл., Білгород-Дністровський район, м. Татарбунари, вул. Центральна, буд.№25. Оренда – приміщення 2-го поверху площею 89,30 кв.м (В)
7 157.40 грн
80.15 грн / м2
Приміщення
Одеська обл., Білгород-Дністровський район, м. Татарбунари, вул. Центральна, буд.№25. Оренда – приміщення 2-го поверху площею 89,30 кв.м (В)
Україна, Одеська обл., Білгород-Дністровський район, м. Татарбунари, вул. Центральна, буд.№25
30.09.2025
Чернігівська обл., м. Сновськ, вул. Миру, 51А. Оренда – приміщення 3-го поверху площею 256,30 кв.м. (В)
6 735.56 грн
26.28 грн / м2
Приміщення
Чернігівська обл., м. Сновськ, вул. Миру, 51А. Оренда – приміщення 3-го поверху площею 256,30 кв.м. (В)
Україна, Чернігівська обл., Сновськ, вулиця Миру, 51а