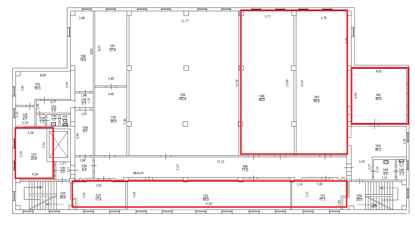
Рівненська обл., м. Рівне вул. Орлова, 37. Оренда – приміщення 4го поверху площею 326,3 м. кв. (В)

25 089.21 грн
76.89 грн / м2
Україна, Рівненська обл., м. Рівне , Рівне вул. Орлова, 37
Перейти до аукціону на сайті
  • Інформація
  • Опис
  • Документи
Дата оголошення пропозиції:
25 січня 2022
Площа:
326.30 м2
Тип об’єкта:
Приміщення
Тип аукціону:
Англійський аукціон
Статус аукціону:
Аукціон не відбувся
Тип угоди:
Оренда
Розмір мінімального кроку:
400.00 ₴
Розмір гарантійного внеску:
15 053.52 ₴
Початок прийому пропозицій:
25.01.2022 11:26:37
Завершення прийому пропозицій:
24.02.2022 20:00:00
Лот:
UA-PS-2022-01-25-000030-2
№ лоту (УТК):
UTK190821_20P
Лот виставляється на торги (раз):
4
Стислий опис майна:
Пропонується до оренди приміщення 4го поверху площею 326,3 м. кв. Будівля знаходиться в серединній частині міста, досить розвинена інфраструктура. Поряд відділення Ощадбанку, магазини, середні автомобільні та пішохідні потоки. Територія огороджена та частково впорядкована. Окремий вхід відсутній. Приміщення потребують реконструкції системи електропостачання. Опалення відсутнє. Характеристики: Кількість поверхів – 6 ; Загальна площа – 4535,1 м. кв.; Площа, запропонована до оренди – 326,3 м.кв.; Земельна ділянка - площа 0,3639 га.
Адреса місцезнаходження майна:
Україна, Рівненська обл., м. Рівне , Рівне вул. Орлова, 37
Схожі пропозиції
28.12.2023
Рівненська обл., Сарненський р-н, смт. Степань, вул. Київська, 18. Оренда – приміщення 2-го поверху та гараж, загальною площею 186,80 кв.м. (В)
1 806.36 грн
9.67 грн / м2
Приміщення
Рівненська обл., Сарненський р-н, смт. Степань, вул. Київська, 18. Оренда – приміщення 2-го поверху та гараж, загальною площею 186,80 кв.м. (В)
Україна, Рівненська обл., Сарненський р-н, смт. Степань, вул. Київська, 18
05.03.2024
Рівненська обл., м. Рівне вул. Вишиванки,37.Оренда – приміщення 3-го поверху загальною площею 758 м.кв. (В)
85 805.60 грн
113.20 грн / м2
Приміщення
Рівненська обл., м. Рівне вул. Вишиванки,37.Оренда – приміщення 3-го поверху загальною площею 758 м.кв. (В)
Україна, Рівненська обл., м. Рівне, вул. Вишиванки, 37
03.04.2024
Рівненська обл., Рівненський р-н., с. Вельбівно, вул. Гагаріна, 15. Оренда – частина приміщення одноповерхової будівлі, площею 16,9 кв.м. (В)
253.50 грн
15.00 грн / м2
Приміщення
Рівненська обл., Рівненський р-н., с. Вельбівно, вул. Гагаріна, 15. Оренда – частина приміщення одноповерхової будівлі, площею 16,9 кв.м. (В)
Україна, Рівненська обл., Рівненський р-н., с. Вельбівно, вул. Гагаріна, 15
28.09.2023
Рівненська обл., Варашський р-н, с. Дібрівськ, вул.Центральна, 1. Оренда – приміщення 1 поверху площею 25,5 кв. м. (В)
250.50 грн
9.82 грн / м2
Приміщення
Рівненська обл., Варашський р-н, с. Дібрівськ, вул.Центральна, 1. Оренда – приміщення 1 поверху площею 25,5 кв. м. (В)
Україна, Рівненська обл., Варашський р-н, с. Дібрівськ, вул.Центральна, 1
Переглянуті пропозиції
04.07.2023
Одеська обл., Білгород-Дністровський район, м. Татарбунари, вул. Центральна, буд.№25. Оренда – приміщення 2-го поверху площею 89,30 кв.м (В)
7 157.40 грн
80.15 грн / м2
Приміщення
Одеська обл., Білгород-Дністровський район, м. Татарбунари, вул. Центральна, буд.№25. Оренда – приміщення 2-го поверху площею 89,30 кв.м (В)
Україна, Одеська обл., Білгород-Дністровський район, м. Татарбунари, вул. Центральна, буд.№25
30.09.2025
Чернігівська обл., м. Сновськ, вул. Миру, 51А. Оренда – приміщення 3-го поверху площею 256,30 кв.м. (В)
6 735.56 грн
26.28 грн / м2
Приміщення
Чернігівська обл., м. Сновськ, вул. Миру, 51А. Оренда – приміщення 3-го поверху площею 256,30 кв.м. (В)
Україна, Чернігівська обл., Сновськ, вулиця Миру, 51а
Полтавська обл., м. Решетилівка, вул. Полтавська, 50. Оренда - підсобне приміщення та гараж площею 50,3 кв.м.
618.19 грн
12.29 грн / м2
Приміщення
Полтавська обл., м. Решетилівка, вул. Полтавська, 50. Оренда - підсобне приміщення та гараж площею 50,3 кв.м.
Україна, Полтавська обл., м. Решетилівка, вул. Полтавська, буд. 50
02.09.2025
м. Харків, пр-т. Г. Сталінграду, 169. Оренда – приміщення 2-го поверху площею 5,5 кв.м. (В)
522.50 грн
95.00 грн / м2
Приміщення
м. Харків, пр-т. Г. Сталінграду, 169. Оренда – приміщення 2-го поверху площею 5,5 кв.м. (В)
Україна, Харківська обл., м. Харків, пр-т. Г. Сталінграду, 169