Полтавська обл., м. Решетилівка, вул. Полтавська, 50. Оренда - підсобне приміщення та гараж площею 50,3 кв.м.

618.19 грн
12.29 грн / м2
Україна, Полтавська обл., м. Решетилівка, вул. Полтавська, буд. 50
Перейти до аукціону на сайті
  • Інформація
  • Опис
  • Документи
Дата оголошення пропозиції:
26 серпня 2020
Площа:
50.30 м2
Тип об’єкта:
Приміщення
Тип аукціону:
Англійський аукціон
Статус аукціону:
Аукціон не відбувся
Тип угоди:
Оренда
Розмір мінімального кроку:
20.00 ₴
Розмір гарантійного внеску:
370.91 ₴
Початок прийому пропозицій:
26.08.2020 10:00:14
Завершення прийому пропозицій:
27.09.2020 20:00:00
Лот:
UA-PS-2020-08-26-000015-3
№ лоту (УТК):
UTK160420_10P
Лот виставляється на торги (раз):
5
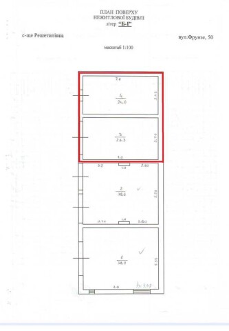
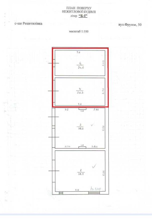
Стислий опис майна:
Пропонується до оренди підсобне приміщення та гараж площею 50,3кв.м. Характеристики: кількість поверхів – 1; електропостачання - відсутнє; земельна ділянка – 0, 2039 га (договір оренди ЗД); стан приміщення - задовільний
Адреса місцезнаходження майна:
Україна, Полтавська обл., м. Решетилівка, вул. Полтавська, буд. 50
Схожі пропозиції
19.05.2023
Полтавська обл., м. Полтава, вул. Юрія Побєдоносцева, буд.17. Оренда – приміщення на 1-му поверсі площею 97,20 кв.м. (В)
4 490.64 грн
46.20 грн / м2
Приміщення
Полтавська обл., м. Полтава, вул. Юрія Побєдоносцева, буд.17. Оренда – приміщення на 1-му поверсі площею 97,20 кв.м. (В)
Україна, Полтавська обл., м. Полтава, вул. Юрія Побєдоносцева, буд.17
12.07.2024
Полтавська обл., Миргородський р-н, м.Миргород, вул. Гоголя, 96/9;  Оренда–приміщення 2-го поверху площею 22,20 кв.м. (В)
523.92 грн
23.60 грн / м2
Приміщення
Полтавська обл., Миргородський р-н, м.Миргород, вул. Гоголя, 96/9; Оренда–приміщення 2-го поверху площею 22,20 кв.м. (В)
Україна, Полтавська обл., Миргород, вулиця Гоголя, 96/9
20.08.2024
Полтавська обл., Кременчуцький район, м. Горішні Плавні, вулиця Миру, 18. Оренда – приміщення 2-го поверху загальною площею 34,90 кв.м. (В)
1 839.93 грн
52.72 грн / м2
Приміщення
Полтавська обл., Кременчуцький район, м. Горішні Плавні, вулиця Миру, 18. Оренда – приміщення 2-го поверху загальною площею 34,90 кв.м. (В)
Україна, Полтавська обл., Кременчуцький район, м. Горішні Плавні, вул. Миру, 18
Полтавська обл., м. Полтава, вул. Загородня, буд.30. Оренда – приміщення на 1-му поверсі площею 22,90 кв.м.(В)
1 621.32 грн
70.80 грн / м2
Приміщення
Полтавська обл., м. Полтава, вул. Загородня, буд.30. Оренда – приміщення на 1-му поверсі площею 22,90 кв.м.(В)
Україна, Полтавська обл., м. Полтава, вул. Загородня, буд.30
Переглянуті пропозиції
02.09.2025
м. Харків, пр-т. Г. Сталінграду, 169. Оренда – приміщення 2-го поверху площею 5,5 кв.м. (В)
522.50 грн
95.00 грн / м2
Приміщення
м. Харків, пр-т. Г. Сталінграду, 169. Оренда – приміщення 2-го поверху площею 5,5 кв.м. (В)
Україна, Харківська обл., м. Харків, пр-т. Г. Сталінграду, 169
03.03.2023
Сумська обл., Глухівський р-н., с. Сопич, вул. Мічуріна, буд. 5. Оренда – приміщення площею 13,9 кв.м. (В)
501.79 грн
36.10 грн / м2
Приміщення
Сумська обл., Глухівський р-н., с. Сопич, вул. Мічуріна, буд. 5. Оренда – приміщення площею 13,9 кв.м. (В)
Україна, Сумська обл., Глухівський р-н., с. Сопич, вул. Мічуріна, буд. 5
30.04.2024
м. Харків, вул. Конторська,14.Оренда – приміщення 2-го поверху площею 26,3 кв.м (В)
1 822.59 грн
69.30 грн / м2
Приміщення
м. Харків, вул. Конторська,14.Оренда – приміщення 2-го поверху площею 26,3 кв.м (В)
Україна, Харківська обл., м. Харків, вул. Конторська,14
27.01.2023
Чернігівська обл., Чернігівський р-н, смт. Козелець, вул. Соборності, 30 А. Оренда – приміщення 2-го поверху площею 14,5 кв.м. (В)
250.56 грн
17.28 грн / м2
Приміщення
Чернігівська обл., Чернігівський р-н, смт. Козелець, вул. Соборності, 30 А. Оренда – приміщення 2-го поверху площею 14,5 кв.м. (В)
Україна, Чернігівська обл., Козелець, вул. Соборності, буд. 30А