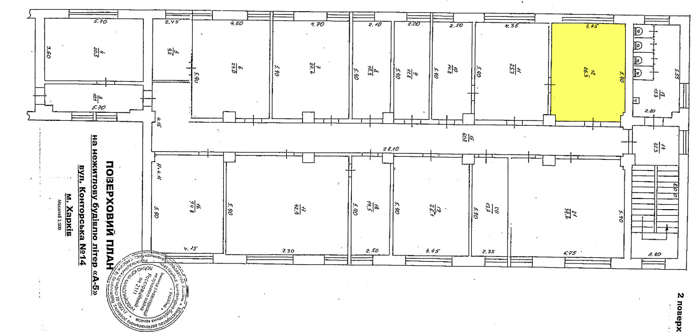
м. Харків, вул. Конторська,14.Оренда – приміщення 2-го поверху площею 26,3 кв.м (В)

1 822.59 грн
69.30 грн / м2
Україна, Харківська обл., м. Харків, вул. Конторська,14
Перейти до аукціону на сайті
  • Інформація
  • Опис
  • Документи
Дата оголошення пропозиції:
28 березня 2024
Площа:
26.30 м2
Тип об’єкта:
Приміщення
Тип аукціону:
Англійський аукціон
Статус аукціону:
Аукціон не відбувся
Тип угоди:
Оренда
Розмір мінімального кроку:
50.00 ₴
Розмір гарантійного внеску:
1 093.55 ₴
Початок прийому пропозицій:
28.03.2024 12:08:19
Завершення прийому пропозицій:
29.04.2024 20:00:00
Проведення аукціону:
30.04.2024 12:55:00
Лот:
CLE001-UA-20240328-43167
№ лоту (УТК):
UTK070723_11P
Лот виставляється на торги (раз):
8
Стислий опис майна:
Пропонується до оренди приміщення 2-го поверху площею 26,3 кв.м. Будівля в центрі міста Харкова. 15 хв до метро Центральний ринок. Характеристики: Кількість поверхів – 4; Загальна площа – 5611,00 кв.м_ Площа запропонована до оренди – 26,3 кв.м Дозволена потужність – 4 кВт Теплопостачання - відсутнє Земельна ділянка – 0,5169 га
Адреса місцезнаходження майна:
Україна, Харківська обл., м. Харків, вул. Конторська,14
Схожі пропозиції
05.11.2024
Харківська обл., м. Харків, пр-т Байрона, 169 (пр-т Героїв Сталінграду, 169). Оренда – приміщення на 1-му поверсі загальною площею 31,10 кв.м. (В)
1 696.80 грн
54.56 грн / м2
Приміщення
Харківська обл., м. Харків, пр-т Байрона, 169 (пр-т Героїв Сталінграду, 169). Оренда – приміщення на 1-му поверсі загальною площею 31,10 кв.м. (В)
Україна, Харківська обл., м. Харків, пр-т Байрона, 169 (пр-т Героїв Сталінграду, 169)
05.11.2024
м.Харків, вул.Конторська,14;    Оренда- приміщення 2-го поверху площею 12,1 кв.м (В)
838.53 грн
69.30 грн / м2
Приміщення
м.Харків, вул.Конторська,14; Оренда- приміщення 2-го поверху площею 12,1 кв.м (В)
Україна, Харківська обл., Харків, вулиця Конторська, 14
10.04.2024
м. Харків, вул.Старошишківська,5а. Оренда – приміщення 1-го поверху, площею 51,7 кв.м (В)
2 815.58 грн
54.46 грн / м2
Приміщення
м. Харків, вул.Старошишківська,5а. Оренда – приміщення 1-го поверху, площею 51,7 кв.м (В)
Україна, Харківська обл., м. Харків, вул.Старошишківська,5а
01.12.2023
Харківська обл., Красноградський р-н, смт. Зачепилівка, вул. Паркова, 3. Оренда - приміщення на 1-му поверсі площею 82,8 кв.м. (В)
597.00 грн
7.21 грн / м2
Приміщення
Харківська обл., Красноградський р-н, смт. Зачепилівка, вул. Паркова, 3. Оренда - приміщення на 1-му поверсі площею 82,8 кв.м. (В)
Україна, Харківська обл., Красноградський р-н, смт. Зачепилівка, вул. Паркова, 3
Переглянуті пропозиції
27.01.2023
Чернігівська обл., Чернігівський р-н, смт. Козелець, вул. Соборності, 30 А. Оренда – приміщення 2-го поверху площею 14,5 кв.м. (В)
250.56 грн
17.28 грн / м2
Приміщення
Чернігівська обл., Чернігівський р-н, смт. Козелець, вул. Соборності, 30 А. Оренда – приміщення 2-го поверху площею 14,5 кв.м. (В)
Україна, Чернігівська обл., Козелець, вул. Соборності, буд. 30А
Івано-Франківська обл., смт. Рожнятів, площа Єдності, 9. Оренда – Приміщення 3-го поверху 100,8 кв.м.
804.38 грн
7.98 грн / м2
Приміщення
Івано-Франківська обл., смт. Рожнятів, площа Єдності, 9. Оренда – Приміщення 3-го поверху 100,8 кв.м.
Україна, Івано-Франківська обл., смт. Рожнятів, площа Єдності, 9