Рівненська обл., м. Рівне, вул. Соборна, 271. Оренда – приміщення 1-го поверху площею 94,00 кв.м. (В)

15 843.70 грн
168.55 грн / м2
Україна, Рівненська обл., м. Рівне, вул. Соборна, 271
Перейти до аукціону на сайті
  • Інформація
  • Опис
  • Документи
Дата оголошення пропозиції:
22 березня 2021
Площа:
94.00 м2
Тип об’єкта:
Приміщення
Тип аукціону:
Англійський аукціон
Статус аукціону:
Аукціон не відбувся
Тип угоди:
Оренда
Розмір мінімального кроку:
1 000.00 ₴
Розмір гарантійного внеску:
9 506.22 ₴
Початок прийому пропозицій:
22.03.2021 16:10:05
Завершення прийому пропозицій:
20.04.2021 20:00:00
Лот:
UA-PS-2021-03-22-000044-3
№ лоту (УТК):
UTK220321_04P
Лот виставляється на торги (раз):
1
Стислий опис майна:
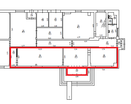
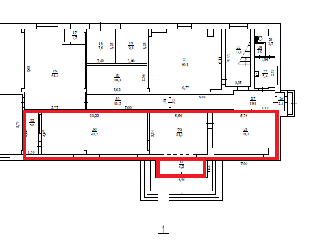
Пропонується до оренди приміщення 1-го поверху площею 94,00 кв.м. Будівля знаходиться в північно-західній частині міста, розвинена інфраструктура, поряд відділення Нової пошти, магазини, парк та стадіон, великі автомобільні та пішохідні потоки. Характеристики: Кількість поверхів – 4; Загальна площа – 2647,0 кв.м.; Площа, запропонована до оренди – 94 кв.м.; Опалення - централізоване; Земельна ділянка - площа 0,482 га.
Адреса місцезнаходження майна:
Україна, Рівненська обл., м. Рівне, вул. Соборна, 271
Схожі пропозиції
23.09.2025
Рівненська обл., Дубенський р-н,селище Млинів, вул. Рівненська, 2. Оренда –приміщення 3-го поверху площею157,20 кв.м (В)
4 904.64 грн
31.20 грн / м2
Приміщення
Рівненська обл., Дубенський р-н,селище Млинів, вул. Рівненська, 2. Оренда –приміщення 3-го поверху площею157,20 кв.м (В)
Україна, Рівненська обл., Млинів, Млинів, вул. Рівненська, 2
19.11.2025
Довгострокова оренда! Рівненська обл., м. Рівне вул. В. Чорновола, 1. Оренда – приміщення підвалу загальною площею 191,80 м.кв. (В)
18 756.12 грн
97.79 грн / м2
Приміщення
Довгострокова оренда! Рівненська обл., м. Рівне вул. В. Чорновола, 1. Оренда – приміщення підвалу загальною площею 191,80 м.кв. (В)
Україна, Рівненська обл., Рівне, вул. В'ячеслава Чорновола, 12
м. Рівне вул. В. Чорновола, 1. Оренда – приміщення 5 поверху
4 314.60 грн
84.60 грн / м2
Приміщення
м. Рівне вул. В. Чорновола, 1. Оренда – приміщення 5 поверху
Україна, Рівненська обл., м. Рівне, вул. В. Чорновола, 1
Рівненська обл., Рівненський р-н., м. Здолбунів, вул. Б.Хмельницького, 7. Оренда – приміщення підвалу, 2 поверху та надвірної будівлі загальною площею 661,4 кв.м. (В)
2 784.49 грн
4.21 грн / м2
Приміщення
Рівненська обл., Рівненський р-н., м. Здолбунів, вул. Б.Хмельницького, 7. Оренда – приміщення підвалу, 2 поверху та надвірної будівлі загальною площею 661,4 кв.м. (В)
Україна, Рівненська обл., Рівненський р-н., м. Здолбунів, вул. Б.Хмельницького, 7
Переглянуті пропозиції
ДОВГОСТРОКОВА ОРЕНДА! м. Київ, вул. Антоновича, 40, оренда – приміщення 2-го поверху, площею 757,90 кв.м. (В)
294 504.78 грн
388.58 грн / м2
Приміщення
ДОВГОСТРОКОВА ОРЕНДА! м. Київ, вул. Антоновича, 40, оренда – приміщення 2-го поверху, площею 757,90 кв.м. (В)
Україна, м.Київ, Київ, вул. Антоновича, 40
19.09.2023
м. Київ, вул. Антоновича, 40. Оренда – приміщення підвалу площею 77,0 кв.м. (В)
23 720.62 грн
308.06 грн / м2
Приміщення
м. Київ, вул. Антоновича, 40. Оренда – приміщення підвалу площею 77,0 кв.м. (В)
Україна, м.Київ, Київ, вул. Антоновича, 40
14.02.2023
Сумська обл., м. Охтирка, вул. Чкалова, буд. 2. Оренда – офісна будівля площею 183,90 кв.м. (В)
1 701.08 грн
9.25 грн / м2
Офіс
Сумська обл., м. Охтирка, вул. Чкалова, буд. 2. Оренда – офісна будівля площею 183,90 кв.м. (В)
Україна, Сумська обл., м. Охтирка, вул. Чкалова, буд. 2
16.12.2022
Рівненська обл., м. Рівне вул.Соборна,56. Оренда – цокольні приміщення загальною площею 334,1 м.кв. (В)
15 435.42 грн
46.20 грн / м2
Приміщення
Рівненська обл., м. Рівне вул.Соборна,56. Оренда – цокольні приміщення загальною площею 334,1 м.кв. (В)
Україна, Рівненська обл., м. Рівне, вул.Соборна,56