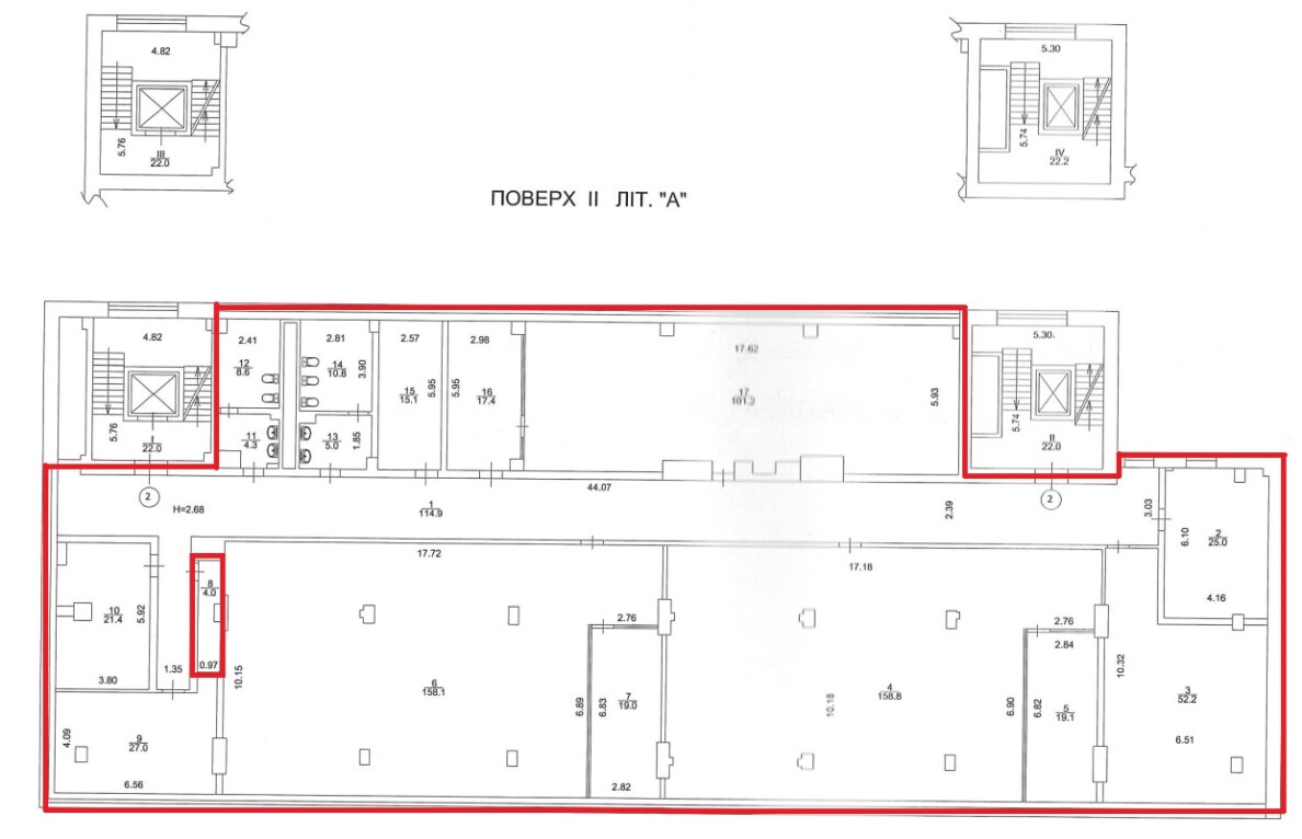
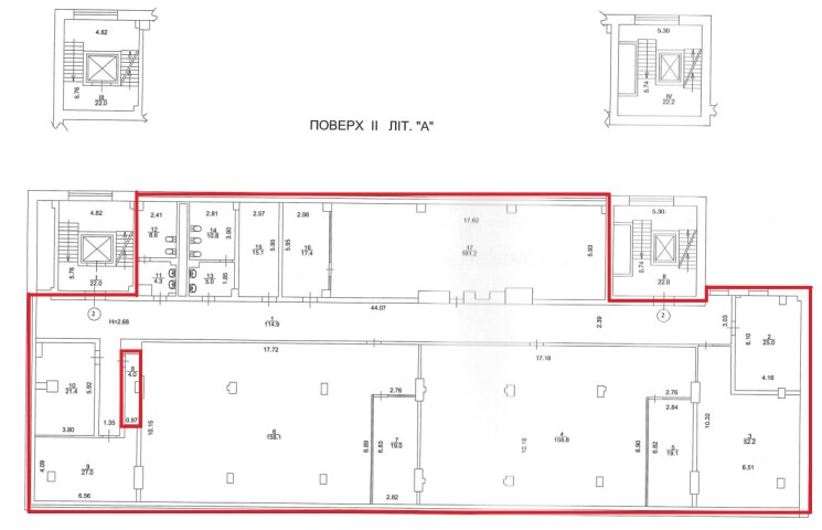
ДОВГОСТРОКОВА ОРЕНДА! м. Київ, вул. Антоновича, 40, оренда – приміщення 2-го поверху, площею 757,90 кв.м. (В)

294 504.78 грн
388.58 грн / м2
Україна, м.Київ, Київ, вул. Антоновича, 40
Перейти до аукціону на сайті
  • Інформація
  • Опис
  • Документи
Дата оголошення пропозиції:
13 серпня 2021
Площа:
757.90 м2
Тип об’єкта:
Приміщення
Тип аукціону:
Англійський аукціон
Статус аукціону:
Аукціон не відбувся
Тип угоди:
Оренда
Розмір мінімального кроку:
3 500.00 ₴
Розмір гарантійного внеску:
176 702.87 ₴
Початок прийому пропозицій:
13.08.2021 13:16:15
Завершення прийому пропозицій:
13.09.2021 20:00:00
Лот:
UA-PS-2021-08-13-000037-1
№ лоту (УТК):
UTK120721_01T
Лот виставляється на торги (раз):
2
Стислий опис майна:
Пропонуються до оренди приміщення 2-го, площею 757,90 кв.м. Стан приміщень задовільний. Кондиціонування присутнє в приміщенні. Будівля знаходиться у центрі міста на перехресті вулиць Жилянська та Антоновича. Поруч з БЦ розташована зупинка міського автотранспорту, в 5-ти хвилинах ходьби знаходиться станція метро «Олімпійська», парк Тараса Шевченка. Зарядна станція Utrecharge. Вхід з вул. Антоновича. Характеристики: • кількість поверхів – 9; • загальна площа будівлі – 7649,30 м2; • опалення централізоване (міське); • земельна ділянка – 0,2099 га; • сан. вузол, водопостачання, каналізація - присутні;
Адреса місцезнаходження майна:
Україна, м.Київ, Київ, вул. Антоновича, 40
Схожі пропозиції
25.10.2022
м. Київ, вул. Макіївська, 3.Оренда – приміщення 2-го поверху, площею 724,10 м2 (В)
33 453.42 грн
46.20 грн / м2
Приміщення
м. Київ, вул. Макіївська, 3.Оренда – приміщення 2-го поверху, площею 724,10 м2 (В)
Україна, м.Київ, м. Київ, вулиця Макіївська, 3
05.12.2023
м.Київ, вул. Миколи Голего,8;   Оренда–приміщення 3-го поверху площею 79,7кв.м.(В)
11 301.46 грн
141.80 грн / м2
Приміщення
м.Київ, вул. Миколи Голего,8; Оренда–приміщення 3-го поверху площею 79,7кв.м.(В)
Україна, м.Київ, Київ, вулиця Миколи Голего, 8
14.06.2024
м. Київ, вул. Архітектора Вербицького, 3;   Оренда – приміщення 1-го та 3-го поверху площею 263,7 кв.м. (В)
25 251.91 грн
95.76 грн / м2
Приміщення
м. Київ, вул. Архітектора Вербицького, 3; Оренда – приміщення 1-го та 3-го поверху площею 263,7 кв.м. (В)
Україна, м.Київ, Київ, вул. Архітектора Вербицького, 3
Переглянуті пропозиції
19.09.2023
м. Київ, вул. Антоновича, 40. Оренда – приміщення підвалу площею 77,0 кв.м. (В)
23 720.62 грн
308.06 грн / м2
Приміщення
м. Київ, вул. Антоновича, 40. Оренда – приміщення підвалу площею 77,0 кв.м. (В)
Україна, м.Київ, Київ, вул. Антоновича, 40
14.02.2023
Сумська обл., м. Охтирка, вул. Чкалова, буд. 2. Оренда – офісна будівля площею 183,90 кв.м. (В)
1 701.08 грн
9.25 грн / м2
Офіс
Сумська обл., м. Охтирка, вул. Чкалова, буд. 2. Оренда – офісна будівля площею 183,90 кв.м. (В)
Україна, Сумська обл., м. Охтирка, вул. Чкалова, буд. 2
16.12.2022
Рівненська обл., м. Рівне вул.Соборна,56. Оренда – цокольні приміщення загальною площею 334,1 м.кв. (В)
15 435.42 грн
46.20 грн / м2
Приміщення
Рівненська обл., м. Рівне вул.Соборна,56. Оренда – цокольні приміщення загальною площею 334,1 м.кв. (В)
Україна, Рівненська обл., м. Рівне, вул.Соборна,56
26.11.2025
Чернігівська обл., м. Чернігів, проспект Миру, 35Б. Оренда – приміщення 2 -го поверху площею 77,00 кв.м. (В)
2 310.00 грн
30.00 грн / м2
Приміщення
Чернігівська обл., м. Чернігів, проспект Миру, 35Б. Оренда – приміщення 2 -го поверху площею 77,00 кв.м. (В)
Україна, Чернігівська обл., Чернігів, проспект Миру, 35Б