м.Київ, вул. Миколи Голего,8; Оренда–приміщення 3-го поверху площею 79,7кв.м.(В)

11 301.46 грн
141.80 грн / м2
Україна, м.Київ, Київ, вулиця Миколи Голего, 8
Перейти до аукціону на сайті
  • Інформація
  • Опис
  • Документи
Дата оголошення пропозиції:
02 листопада 2023
Площа:
79.70 м2
Тип об’єкта:
Приміщення
Тип аукціону:
Англійський аукціон
Статус аукціону:
Аукціон не відбувся
Тип угоди:
Оренда
Розмір мінімального кроку:
150.00 ₴
Розмір гарантійного внеску:
6 780.88 ₴
Початок прийому пропозицій:
02.11.2023 14:59:15
Завершення прийому пропозицій:
04.12.2023 20:00:00
Проведення аукціону:
05.12.2023 11:50:00
Лот:
CLE001-UA-20231102-28331
№ лоту (УТК):
UTK271222_00Т
Лот виставляється на торги (раз):
9
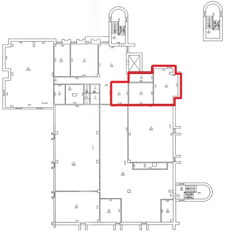
Стислий опис майна:
Пропонуються до оренди приміщення 3-го поверху площею 79,7кв.м. Розташування будівлі у Солом'янському районі міста Києва, місцевість Караваєві дачі. Поруч розвинена інфраструктура, зупинки маршрутного транспорту, магазини, кафе, аптеки, середній автомобільний і пішохідний потоки. Характеристики: • загальна площа будівлі – 5639,8 м2 ; • сан. вузол, каналізація, водопостачання – присутне; • кількість поверхів – 4; • енергетична потужність – 5 кВт; • опалення централізоване (міське); • площа земельної ділянки – 0,3625 га*; *земельна ділянка не є предметом оренди.
Адреса місцезнаходження майна:
Україна, м.Київ, Київ, вулиця Миколи Голего, 8
Схожі пропозиції
28.10.2025
 м. Київ, вулиця Академіка Шалімова, 39/8. Оренда – приміщення 1-го поверху, площею 54,30 м. кв.(В)
7 012.85 грн
129.15 грн / м2
Приміщення
м. Київ, вулиця Академіка Шалімова, 39/8. Оренда – приміщення 1-го поверху, площею 54,30 м. кв.(В)
Україна, м.Київ, Київ, вулиця Академіка Шалімова, 39/8
м. Київ, вул. Оболонська, 29-А, оренда – приміщення 1-го поверху площею 113,30 м2 (В)
36 013.54 грн
317.86 грн / м2
Приміщення
м. Київ, вул. Оболонська, 29-А, оренда – приміщення 1-го поверху площею 113,30 м2 (В)
Україна, м.Київ, Київ, вул. Оболонська, 29-А
06.05.2021
м. Київ, вул. Героїв Севастополя, №39/8, Оренда – приміщення гаражу, будівлі літ. «Б» площею 16,70 м2, (П)
396.79 грн
23.76 грн / м2
Приміщення
м. Київ, вул. Героїв Севастополя, №39/8, Оренда – приміщення гаражу, будівлі літ. «Б» площею 16,70 м2, (П)
Україна, м.Київ, Київ, вул. Героїв Севастополя, 39/8
03.03.2023
м. Київ, вул. Архітектора Вербицького, 3. Оренда – приміщення 1-го та 3-го поверху площею 263,7 м2 (В)
25 251.91 грн
95.76 грн / м2
Приміщення
м. Київ, вул. Архітектора Вербицького, 3. Оренда – приміщення 1-го та 3-го поверху площею 263,7 м2 (В)
Україна, м.Київ, Київ, вулиця Архітектора Вербицького, 3
Переглянуті пропозиції
26.11.2025
м. Харків, вул. Конторська,14. Оренда – приміщення 2-го поверху площею 12,1 кв. м (В)
508.20 грн
42.00 грн / м2
Приміщення
м. Харків, вул. Конторська,14. Оренда – приміщення 2-го поверху площею 12,1 кв. м (В)
Україна, Харківська обл., Харків, вулиця Конторська, 14