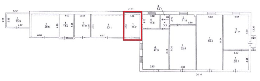
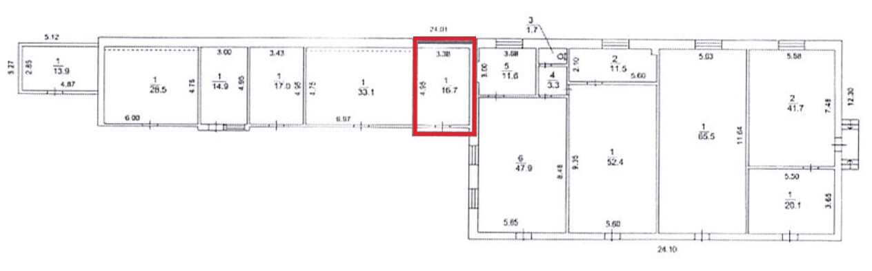
м. Київ, вул. Героїв Севастополя, №39/8, Оренда – приміщення гаражу, будівлі літ. «Б» площею 16,70 м2, (П)

396.79 грн
23.76 грн / м2
Україна, м.Київ, Київ, вул. Героїв Севастополя, 39/8
Перейти до аукціону на сайті
  • Інформація
  • Опис
  • Документи
Дата оголошення пропозиції:
02 квітня 2021
Площа:
16.70 м2
Тип об’єкта:
Приміщення
Тип аукціону:
Англійський аукціон
Статус аукціону:
Аукціон відмінено
Тип угоди:
Оренда
Розмір мінімального кроку:
100.00 ₴
Розмір гарантійного внеску:
238.07 ₴
Початок прийому пропозицій:
02.04.2021 11:33:58
Завершення прийому пропозицій:
05.05.2021 20:00:00
Проведення аукціону:
06.05.2021 11:00:37
Лот:
UA-PS-2021-04-02-000020-2
№ лоту (УТК):
UTK010421_08Т
Лот виставляється на торги (раз):
1
Стислий опис майна:
Пропонується до оренди приміщення гаражу, будівлі літ. «Б» площею 16,70 м². Розташування будівлі у Солом'янському районі міста Києва, місцевості Відрадний та Новокараваєві дачі. Поруч розвинена інфраструктура, зупинки маршрутного транспорту, трамваю, магазини, кафе, аптеки, середній автомобільний і пішохідний потоки. Вхід з вулиці Героїв Севастополя та з двору. Доступ 24/7. Характеристики: - загальна площа будівлі літ. «Б» – 379,80 м²; - кількість поверхів – 1; - загальна площа земельної ділянки – 0,9713 га; - опалення, сан. вузол, каналізація – відсутне.
Адреса місцезнаходження майна:
Україна, м.Київ, Київ, вул. Героїв Севастополя, 39/8
Схожі пропозиції
м. Київ, вул. Райдужна, 27-А, оренда – приміщення підвалу, площею 274,70 кв.м. (В)
12 691.14 грн
46.20 грн / м2
Приміщення
м. Київ, вул. Райдужна, 27-А, оренда – приміщення підвалу, площею 274,70 кв.м. (В)
Україна, м.Київ, Київ, вул. Райдужна, 27-А
12.01.2024
м. Київ, вул. Будівельників, 8-Б;   Оренда – приміщення підвалу, площею 452,6 кв.м. (В)
42 300.00 грн
93.46 грн / м2
Приміщення
м. Київ, вул. Будівельників, 8-Б; Оренда – приміщення підвалу, площею 452,6 кв.м. (В)
Україна, м.Київ, Київ, вулиця Будівельників, 8-Б
м. Київ, вул. Н. Ужвій, 1, Оренда – приміщення 2-го поверху площею 215,40 кв.м. (В)
28 174.32 грн
130.80 грн / м2
Приміщення
м. Київ, вул. Н. Ужвій, 1, Оренда – приміщення 2-го поверху площею 215,40 кв.м. (В)
Україна, м.Київ, Київ, вул. Н. Ужвій 1
м. Київ, вул. Джона Маккейна, №40. Оренда – приміщення підвалу, площею 24,80 м2 (В)
1 145.76 грн
46.20 грн / м2
Приміщення
м. Київ, вул. Джона Маккейна, №40. Оренда – приміщення підвалу, площею 24,80 м2 (В)
Україна, м.Київ, Київ, вул. Джона Маккейна, №40
Переглянуті пропозиції
26.11.2025
Полтавська обл., Кременчуцький р-н, с. Великі Кринки, вулиця Полтавська, 29. Оренда – приміщення 1-го поверху загальною площею 49,50 кв.м (В)
594.00 грн
12.00 грн / м2
Приміщення
Полтавська обл., Кременчуцький р-н, с. Великі Кринки, вулиця Полтавська, 29. Оренда – приміщення 1-го поверху загальною площею 49,50 кв.м (В)
Україна, Полтавська обл., Кременчуцький р-н, с. Великі Кринки, вул. Полтавська, 29
20.02.2024
м. Київ, вул. Антоновича, 40;  Оренда–Будівля, площею 253,0 кв.м. (В)
55 670.12 грн
220.04 грн / м2
Приміщення
м. Київ, вул. Антоновича, 40; Оренда–Будівля, площею 253,0 кв.м. (В)
Україна, м.Київ, Київ, вул. Антоновича, 40