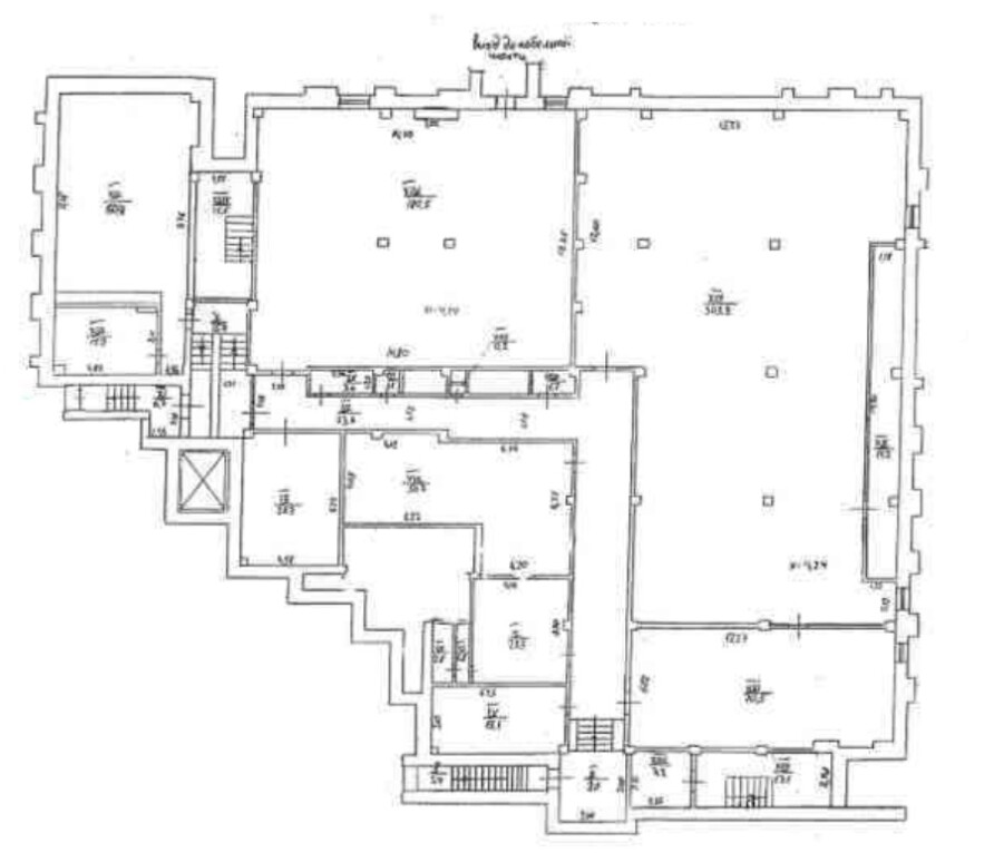
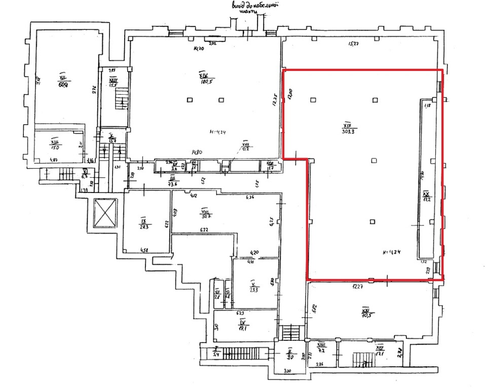
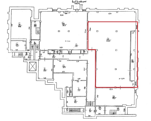
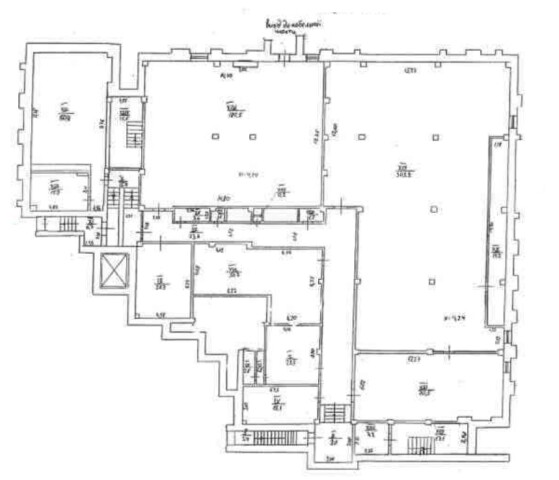
м. Київ, вул. Райдужна, 27-А, оренда – приміщення підвалу, площею 274,70 кв.м. (В)

12 691.14 грн
46.20 грн / м2
Україна, м.Київ, Київ, вул. Райдужна, 27-А
Перейти до аукціону на сайті
  • Інформація
  • Опис
  • Документи
Дата оголошення пропозиції:
16 березня 2022
Площа:
274.70 м2
Тип об’єкта:
Приміщення
Тип аукціону:
Англійський аукціон
Статус аукціону:
Аукціон не відбувся
Тип угоди:
Оренда
Розмір мінімального кроку:
300.00 ₴
Розмір гарантійного внеску:
7 614.68 ₴
Початок прийому пропозицій:
16.03.2022 15:24:52
Завершення прийому пропозицій:
14.04.2022 20:00:00
Лот:
UA-PS-2022-03-16-000036-3
№ лоту (УТК):
UTK160621_02T
Лот виставляється на торги (раз):
9
Стислий опис майна:
Пропонуються до оренди приміщення підвалу, площею 274,70 м2. Будівля знаходиться у Дніпровському районі міста Києва, житловий масив Райдужний. Поруч розвинена інфраструктура, зупинки маршрутного транспорту, авторинок, супермаркети, торгівельно-розважальні центри. Вхід у будівлю з двору. Характеристики: • кількість поверхів – 2; • опалення централізоване (міське); • земельна ділянка – 0,2524 га; • загальна площа будівлі -- 3040,30 м2; • каналізація, сан. вузол, водопостачання – відсутнє;
Адреса місцезнаходження майна:
Україна, м.Київ, Київ, вул. Райдужна, 27-А
Схожі пропозиції
м. Київ, вул. Маршала Малиновського №19-А. Оренда – приміщення 1-го поверху площею 120,30 кв.м. (В)
29 545.68 грн
245.60 грн / м2
Приміщення
м. Київ, вул. Маршала Малиновського №19-А. Оренда – приміщення 1-го поверху площею 120,30 кв.м. (В)
Україна, м.Київ, Київ, вул. Маршала Малиновського №19-А
14.06.2024
м. Київ, вул. Джона Маккейна, №40;   Оренда – приміщення підвалу, площею 24,80 м2 (В)
5 882.31 грн
237.19 грн / м2
Приміщення
м. Київ, вул. Джона Маккейна, №40; Оренда – приміщення підвалу, площею 24,80 м2 (В)
Україна, м.Київ, Київ, вулиця Джона Маккейна, 40
м. Київ, вул. Антоновича, 40, оренда – приміщення підвалу площею 77,00 кв.м. (В)
6 578.11 грн
85.43 грн / м2
Приміщення
м. Київ, вул. Антоновича, 40, оренда – приміщення підвалу площею 77,00 кв.м. (В)
Україна, м.Київ, Київ, вул. Антоновича, 40
м. Київ, вул. Ісаакяна, 3, оренда – приміщення будівлі літ. «А», площею 1570,90 кв.м. (В)
258 114.58 грн
164.31 грн / м2
Приміщення
м. Київ, вул. Ісаакяна, 3, оренда – приміщення будівлі літ. «А», площею 1570,90 кв.м. (В)
Україна, м.Київ, Київ, вул. Ісаакяна, 3
Переглянуті пропозиції
27.11.2024
м.Харків, пр-т Ново-Баварський,70. Оренда – приміщення підвалу та 1-го поверху, площею 325,2 кв.м (П)
15 414.48 грн
47.40 грн / м2
Приміщення
м.Харків, пр-т Ново-Баварський,70. Оренда – приміщення підвалу та 1-го поверху, площею 325,2 кв.м (П)
Україна, Харківська обл., м.Харків, пр-т Ново-Баварський,70
25.04.2025
Дніпропетровська обл, смт. Петриківка, пр. Петра Калнишевського, 52. Оренда – нежитлова будівля загальною площею 131,3 кв.м (В)
1 575.60 грн
12.00 грн / м2
Будівля
Дніпропетровська обл, смт. Петриківка, пр. Петра Калнишевського, 52. Оренда – нежитлова будівля загальною площею 131,3 кв.м (В)
Україна, Дніпропетровська обл., смт. Петриківка, пр. Петра Калнишевського, 52
19.08.2022
Рівненська обл., Сарненський р-н, смт. Степань, вул. Київська, 18. Оренда – приміщення 2-го поверху та гараж, загальною площею 186,80 кв.м. (В)
3 084.07 грн
16.51 грн / м2
Приміщення
Рівненська обл., Сарненський р-н, смт. Степань, вул. Київська, 18. Оренда – приміщення 2-го поверху та гараж, загальною площею 186,80 кв.м. (В)
Україна, Рівненська обл., Сарненський р-н, смт. Степань, вул. Київська, 18
30.04.2025
ДОВГОСТРОКОВА ОРЕНДА!   м. Київ, вул. Стрілецька, 4-6;  Оренда – приміщення другого поверху площею – 570,00 кв.м (В)
178 489.80 грн
313.14 грн / м2
Приміщення
ДОВГОСТРОКОВА ОРЕНДА! м. Київ, вул. Стрілецька, 4-6; Оренда – приміщення другого поверху площею – 570,00 кв.м (В)
Україна, м.Київ, Київ, Стрілецька вулиця, 4-6