м. Київ, вул. Ісаакяна, 3, оренда – приміщення будівлі літ. «А», площею 1570,90 кв.м. (В)

258 114.58 грн
164.31 грн / м2
Україна, м.Київ, Київ, вул. Ісаакяна, 3
Перейти до аукціону на сайті
  • Інформація
  • Опис
  • Документи
Дата оголошення пропозиції:
02 квітня 2021
Площа:
1570.90 м2
Тип об’єкта:
Приміщення
Тип аукціону:
Англійський аукціон
Статус аукціону:
Аукціон не відбувся
Тип угоди:
Оренда
Розмір мінімального кроку:
5 000.00 ₴
Розмір гарантійного внеску:
154 868.75 ₴
Початок прийому пропозицій:
02.04.2021 12:21:21
Завершення прийому пропозицій:
05.05.2021 20:00:00
Лот:
UA-PS-2021-04-02-000051-1
№ лоту (УТК):
UTK010421_12Т
Лот виставляється на торги (раз):
1
Стислий опис майна:
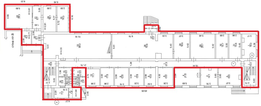
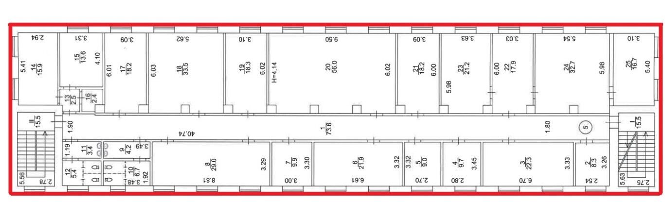
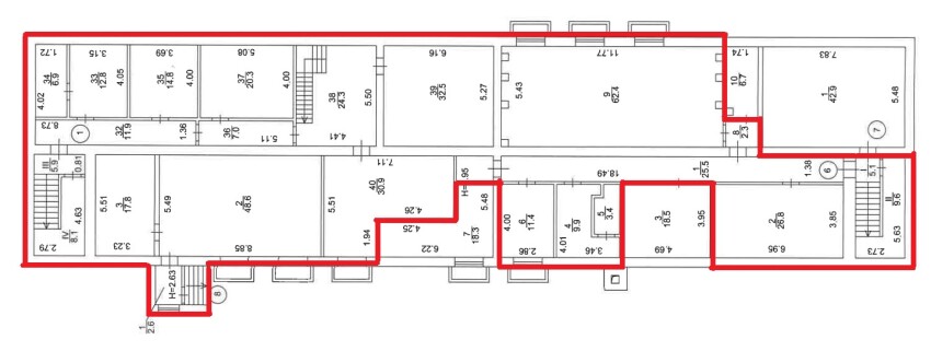
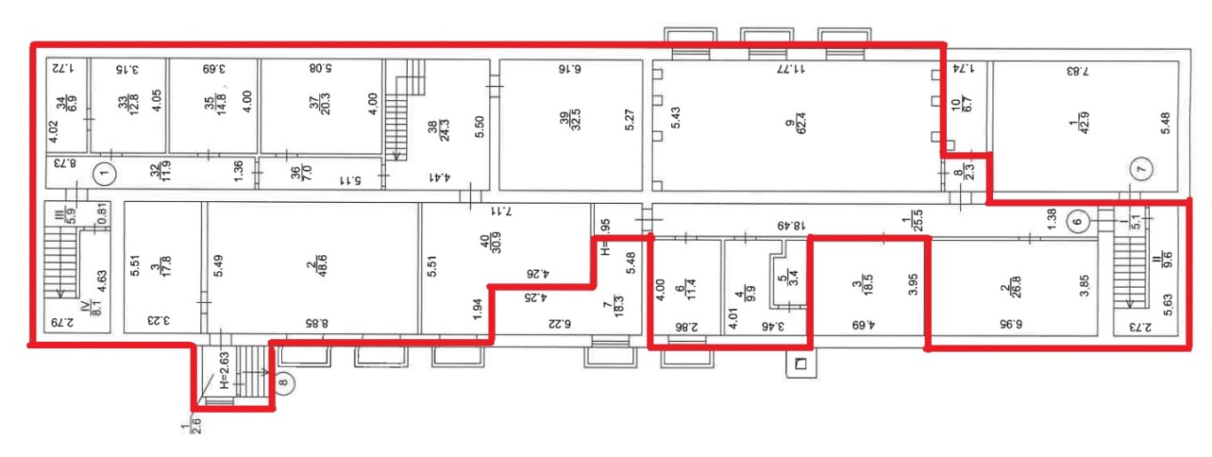
Пропонується до оренди приміщення будівлі літ «А», площею 1570,90 кв.м. Розташування будівлі у Шевченківському районі міста Києва, місцевість Шулявка. Поруч розвинена інфраструктура, зупинки швидкісного трамваю, маршрутного та громадського транспорту, магазини, кафе, аптеки. Вхід з двору, через прохідну. Доступ вільний 24/7. Характеристики Загальна площа будівлі – 2069,60 м2; Площа запропонована до оренди – 1570,90 м2; Опалення – міське (централізоване) Кількість поверхів – 3; Загальна площа земельної ділянки – 0,2892 га.
Адреса місцезнаходження майна:
Україна, м.Київ, Київ, вул. Ісаакяна, 3
Схожі пропозиції
27.05.2025
м. Київ, вул. Салютна, 5-А, літ. «Б» (В). Оренда – приміщення 3-го та 4-го поверху, площею 992,80 м2
59 568.00 грн
60.00 грн / м2
Приміщення
м. Київ, вул. Салютна, 5-А, літ. «Б» (В). Оренда – приміщення 3-го та 4-го поверху, площею 992,80 м2
Україна, м.Київ, Київ, м. Київ, вул. Салютна, 5-А, літ. «Б» (В)
м. Київ, Стратегічне шосе, 21-А. Оренда - приміщення 1-го, 2-го та 4-го поверхів площею 2290 кв.м. (В)
35 953.00 грн
15.70 грн / м2
Приміщення
м. Київ, Стратегічне шосе, 21-А. Оренда - приміщення 1-го, 2-го та 4-го поверхів площею 2290 кв.м. (В)
Україна, м.Київ, м. Київ, Стратегічне шосе, 21-А
07.05.2025
м. Київ, вул. Миколи Голего, 8. Оренда – приміщення 1-го поверху площею 30,90 кв.м (В)
5 096.96 грн
164.95 грн / м2
Приміщення
м. Київ, вул. Миколи Голего, 8. Оренда – приміщення 1-го поверху площею 30,90 кв.м (В)
Україна, м.Київ, Київ, вулиця Миколи Голего, 8
09.12.2022
м. Київ, вул. Антоновича, 40. Оренда – приміщення підвалу площею 77,00 кв.м. (В)
17 038.56 грн
221.28 грн / м2
Приміщення
м. Київ, вул. Антоновича, 40. Оренда – приміщення підвалу площею 77,00 кв.м. (В)
Україна, м.Київ, Київ, вул. Антоновича, 40
Переглянуті пропозиції
05.12.2023
ДОВГОСТРОКОВА ОРЕНДА!  м. Київ, вул. Василя Макуха (Шевцова Івана),5; Оренда – приміщення 3-го поверху площею 905,3 кв.м. (В)
132 137.59 грн
145.96 грн / м2
Приміщення
ДОВГОСТРОКОВА ОРЕНДА! м. Київ, вул. Василя Макуха (Шевцова Івана),5; Оренда – приміщення 3-го поверху площею 905,3 кв.м. (В)
Україна, м.Київ, Київ, вул. Василя Макуха (Шевцова Івана), 5