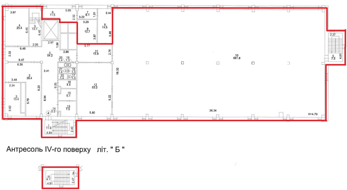
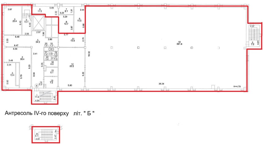
м. Київ, вул. Салютна, 5-А, літ. «Б» (В). Оренда – приміщення 3-го та 4-го поверху, площею 992,80 м2

59 568.00 грн
60.00 грн / м2
Україна, м.Київ, Київ, м. Київ, вул. Салютна, 5-А, літ. «Б» (В)
Перейти до аукціону на сайті
  • Інформація
  • Опис
  • Документи
Дата оголошення пропозиції:
26 квітня 2025
Площа:
992.80 м2
Тип об’єкта:
Приміщення
Тип аукціону:
Англійський аукціон
Статус аукціону:
Аукціон не відбувся
Тип угоди:
Оренда
Розмір мінімального кроку:
600.00 ₴
Розмір гарантійного внеску:
35 740.80 ₴
Початок прийому пропозицій:
26.04.2025 23:11:45
Завершення прийому пропозицій:
26.05.2025 20:00:00
Проведення аукціону:
27.05.2025 11:10:00
Лот:
CLE001-UA-20250426-93407
№ лоту (УТК):
UTK040422_06U
Лот виставляється на торги (раз):
1
Стислий опис майна:
Пропонуються до оренди приміщення 4-го поверху, літ. «Б», площею 992,80 м2 . Будівля розташована в Шевченківському районі міста Києва, місцевість Нивки. Поруч розвинена інфраструктура, зупинки маршрутного транспорту, супермаркети, бізнес-центри, фінансові заклади, 5 хв. від ст. м. «Нивки». Вхід з двору. Доступ 24/7. Характеристики • кількість поверхів – 4; • сан. вузол, каналізація – присутні; • площа будівлі – літ. «Б» - 4892,10 м2 ; • опалення централізоване (міське); • земельна ділянка – 0,6317 га;
Адреса місцезнаходження майна:
Україна, м.Київ, Київ, м. Київ, вул. Салютна, 5-А, літ. «Б» (В)
Схожі пропозиції
м. Київ, Антоновича 40 Оренда приміщень 5 пов.
221 385.60 грн
288.00 грн / м2
Приміщення
м. Київ, Антоновича 40 Оренда приміщень 5 пов.
Україна, м.Київ, місто Київ, вул. Антоновича, 40
19.09.2023
м. Київ, вул. Героїв Севастополя, 39/8, літ.«В». Оренда – приміщення 1-го поверху блоку зовнішніх споруд, площею 80,60 кв.м. (В)
15 771.00 грн
195.67 грн / м2
Приміщення
м. Київ, вул. Героїв Севастополя, 39/8, літ.«В». Оренда – приміщення 1-го поверху блоку зовнішніх споруд, площею 80,60 кв.м. (В)
Україна, м.Київ, Київ, вулиця Героїв Севастополя, 39/8
14.09.2022
м. Київ, вул. Антоновича, 40, Оренда – приміщення 1-го поверху, площею 66,60 кв. м., (В)
44 195.76 грн
663.60 грн / м2
Приміщення
м. Київ, вул. Антоновича, 40, Оренда – приміщення 1-го поверху, площею 66,60 кв. м., (В)
Україна, м.Київ, Київ, вул. Антоновича, 40
29.03.2024
ДОВГОСТРОКОВА ОРЕНДА!  м. Київ, вул. Василя Макуха (Шевцова Івана),5; Оренда – приміщення 3-го поверху площею 905,3 кв.м. (В)
132 137.59 грн
145.96 грн / м2
Приміщення
ДОВГОСТРОКОВА ОРЕНДА! м. Київ, вул. Василя Макуха (Шевцова Івана),5; Оренда – приміщення 3-го поверху площею 905,3 кв.м. (В)
Україна, м.Київ, Київ, вул. Василя Макуха (Шевцова Івана), 5
Переглянуті пропозиції
ДОВГОСТРОКОВА ОРЕНДА! М. КИЇВ, ВУЛ. АНТОНОВИЧА 40, ОРЕНДА - ПРИМІЩЕННЯ 3-ГО ПОВЕРХУ, ПЛОЩЕЮ 740.4 КВ.М. (В)
266 544.00 грн
360.00 грн / м2
Приміщення
ДОВГОСТРОКОВА ОРЕНДА! М. КИЇВ, ВУЛ. АНТОНОВИЧА 40, ОРЕНДА - ПРИМІЩЕННЯ 3-ГО ПОВЕРХУ, ПЛОЩЕЮ 740.4 КВ.М. (В)
Україна, м.Київ, Київ, вул. Антоновича, 40
09.07.2025
Довгострокова оренда! м. Київ, вул. Стрілецька, 4-6. Оренда – другий поверх, площею – 570,00 кв. м. (В)
122 094.00 грн
214.20 грн / м2
Приміщення
Довгострокова оренда! м. Київ, вул. Стрілецька, 4-6. Оренда – другий поверх, площею – 570,00 кв. м. (В)
Україна, м.Київ, Київ, м. Київ, вул. Стрілецька, 4-6