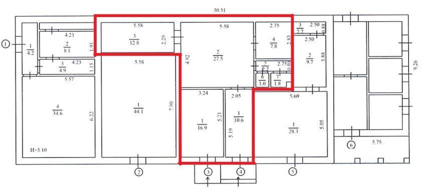
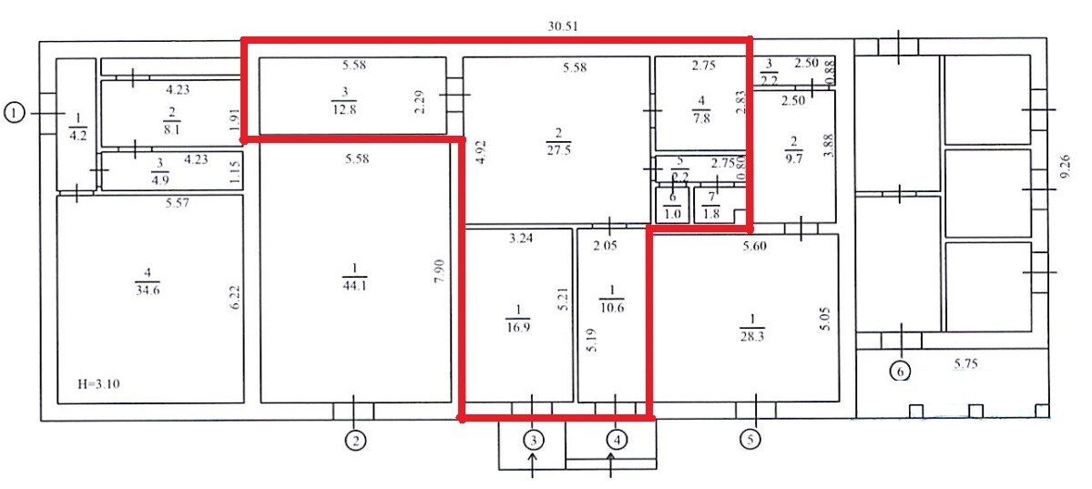
м. Київ, вул. Героїв Севастополя, 39/8, літ.«В». Оренда – приміщення 1-го поверху блоку зовнішніх споруд, площею 80,60 кв.м. (В)

15 771.00 грн
195.67 грн / м2
Україна, м.Київ, Київ, вулиця Героїв Севастополя, 39/8
Перейти до аукціону на сайті
  • Інформація
  • Опис
  • Документи
Дата оголошення пропозиції:
16 серпня 2023
Площа:
80.60 м2
Тип об’єкта:
Приміщення
Тип аукціону:
Англійський аукціон
Статус аукціону:
Аукціон не відбувся
Тип угоди:
Оренда
Розмір мінімального кроку:
1 600.00 ₴
Розмір гарантійного внеску:
9 462.60 ₴
Початок прийому пропозицій:
16.08.2023 15:12:39
Завершення прийому пропозицій:
18.09.2023 20:00:00
Проведення аукціону:
19.09.2023 12:25:00
Лот:
CLE001-UA-20230816-61984
№ лоту (УТК):
UTK010323_1T
Лот виставляється на торги (раз):
5
Стислий опис майна:
Пропонується до оренди приміщення 1-го поверху блоку зовнішніх споруд, площею 80,60 кв.м.. Розташування будівлі у Солом'янському районі міста Києва, місцевості Відрадний та Новокараваєві дачі. Поруч розвинена інфраструктура, зупинки маршрутного транспорту, трамваю, магазини, кафе, аптеки, середній автомобільний і пішохідний потоки. Вхід з вулиці Героїв Севастополя та з прохідної. Доступ 24/7. Характеристики: - загальна площа будівлі – 216,40 кв.м.; - кількість поверхів – 1; - загальна площа земельної ділянки – 0,9713 га; - опалення – відсутнє; - сан. вузол, каналізація, водопостачання – присутне;
Адреса місцезнаходження майна:
Україна, м.Київ, Київ, вулиця Героїв Севастополя, 39/8
Схожі пропозиції
21.03.2025
м. Київ, вул. Джона Маккейна, 40, літ. «А» (Печерський р-н). Оренда – група приміщень на 1-му поверсі, площею 65,60 кв.м. (В)
22 180.67 грн
338.12 грн / м2
Приміщення
м. Київ, вул. Джона Маккейна, 40, літ. «А» (Печерський р-н). Оренда – група приміщень на 1-му поверсі, площею 65,60 кв.м. (В)
Україна, м.Київ, Київ, вулиця Джона Маккейна, 40
30.12.2022
м. Київ, вул. Ісаакяна, 3 Оренда – Приміщення 2-го поверху площею 149,81 кв.м. (В)
22 690.22 грн
151.46 грн / м2
Приміщення
м. Київ, вул. Ісаакяна, 3 Оренда – Приміщення 2-го поверху площею 149,81 кв.м. (В)
Україна, м.Київ, Київ, вулиця Ісаакяна, 3
01.03.2023
ДОВГОСТРОКОВА ОРЕНДА! 04111, м. Київ, вул. Салютна, 5-А, літ. «Б» Оренда – приміщення 2-го та 3-го поверхів, площею 1048,2 м2 (В)
м. Київ, вул. Антоновича, 40. Оренда - приміщення 6-го поверху площею 758,8 кв.м.
174 827.52 грн
230.40 грн / м2
Приміщення
м. Київ, вул. Антоновича, 40. Оренда - приміщення 6-го поверху площею 758,8 кв.м.
Україна, м.Київ, місто Київ, вул. Антоновича, 40
Переглянуті пропозиції
м. Київ, вул. Макіївська, 3.Оренда – приміщення 2-го поверху, площею 724,10 м2 (В)
76 682.19 грн
105.90 грн / м2
Приміщення
м. Київ, вул. Макіївська, 3.Оренда – приміщення 2-го поверху, площею 724,10 м2 (В)
Україна, м.Київ, Київ, вул. Макіївська, 3
09.08.2022
м. Київ, вул. Джона Маккейна, №40 , Оренда – приміщення підвалу, площею 44,26 м2 , (В)
15 593.68 грн
352.80 грн / м2
Приміщення
м. Київ, вул. Джона Маккейна, №40 , Оренда – приміщення підвалу, площею 44,26 м2 , (В)
Україна, м.Київ, Київ, вул. Джона Маккейна, №40
12.01.2023
Довгострокова оренда. м. Київ, вул. Горького (Антоновича), 40. Оренда – приміщення 1-го поверху, площею 538,5 кв. м. (В)
м. Київ, вул. Маршала Малиновського №19-А. Оренда – приміщення 1-го поверху площею 120,30 кв.м. (В)
29 545.68 грн
245.60 грн / м2
Приміщення
м. Київ, вул. Маршала Малиновського №19-А. Оренда – приміщення 1-го поверху площею 120,30 кв.м. (В)
Україна, м.Київ, Київ, вул. Маршала Малиновського №19-А