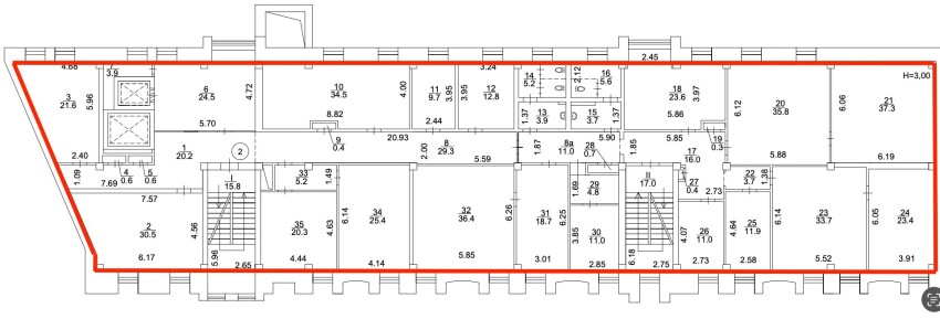
ДОВГОСТРОКОВА ОРЕНДА! м. Київ, вул. Стрілецька, 4-6; Оренда – приміщення другого поверху площею – 570,00 кв.м (В)

178 489.80 грн
313.14 грн / м2
Україна, м.Київ, Київ, Стрілецька вулиця, 4-6
Перейти до аукціону на сайті
  • Інформація
  • Опис
  • Документи
Дата оголошення пропозиції:
28 березня 2025
Площа:
570.00 м2
Тип об’єкта:
Приміщення
Тип аукціону:
Англійський аукціон
Статус аукціону:
Аукціон не відбувся
Тип угоди:
Оренда
Розмір мінімального кроку:
2 500.00 ₴
Розмір гарантійного внеску:
107 093.88 ₴
Початок прийому пропозицій:
28.03.2025 10:13:42
Завершення прийому пропозицій:
29.04.2025 20:00:00
Проведення аукціону:
30.04.2025 12:25:00
Лот:
CLE001-UA-20250328-21292
№ лоту (УТК):
UTK201224_04T
Лот виставляється на торги (раз):
3
Стислий опис майна:
Пропонуються до оренди приміщення другого поверху площею – 570,00 кв.м. Будівля знаходиться у Шевченківському районі міста Києва. Центральна історична частина міста, розвинена інфраструктура, зупинки маршрутного транспорту, супермаркети, кафе, аптеки, фінансові заклади, в’їзд через майданчик з парко-місцями. Доступ 24/7. Характеристики • кількість поверхів – 4; • опалення централізоване (міське); • земельна ділянка – 0,1154 га; • загальна площа будівлі – 2 320,10 м2; • сан. вузол, каналізація, водопостачання – є; • енерго потужність – 30 кВт.
Адреса місцезнаходження майна:
Україна, м.Київ, Київ, Стрілецька вулиця, 4-6
Схожі пропозиції
17.06.2025
м. Київ, вул. Джона Маккейна, 40, літ. «А» (Печерський р-н). Оренда – група приміщень на 3-му поверсі, площею 62,80 кв. м. (В)
12 740.24 грн
186.81 грн / м2
Приміщення
м. Київ, вул. Джона Маккейна, 40, літ. «А» (Печерський р-н). Оренда – група приміщень на 3-му поверсі, площею 62,80 кв. м. (В)
Україна, м.Київ, Київ, 01042, м. Київ, вул. Джона Маккейна, 40, літ. «А»
08.04.2025
м. Київ, вул. Наталії Ужвій 1 (Подільський р-н). Оренда – приміщення 3-го поверху, загальною площею – 105,80 м. кв. (В)
11 762.84 грн
111.18 грн / м2
Приміщення
м. Київ, вул. Наталії Ужвій 1 (Подільський р-н). Оренда – приміщення 3-го поверху, загальною площею – 105,80 м. кв. (В)
Україна, м.Київ, Київ, 04108, м. Київ, вул. Наталії Ужвій 1
м. Київ, вул. Антоновича 40. Оренда - приміщення 3-го поверху площею 740,4 кв.м.
170 588.16 грн
230.40 грн / м2
Приміщення
м. Київ, вул. Антоновича 40. Оренда - приміщення 3-го поверху площею 740,4 кв.м.
Україна, м.Київ, місто Київ, вул. Антоновича, 40
11.11.2025
м. Київ, вул. Ореста Васкула, 27 (Святошинський р-н). Оренда – приміщення на 3-му поверсі, загальною площею – 17,00 м. кв. (В)
3 312.62 грн
194.86 грн / м2
Приміщення
м. Київ, вул. Ореста Васкула, 27 (Святошинський р-н). Оренда – приміщення на 3-му поверсі, загальною площею – 17,00 м. кв. (В)
Україна, м.Київ, Київ, вулиця Ореста Васкула, 27
Переглянуті пропозиції
15.10.2025
м. Харків, вул. Конторська,14.Оренда – приміщення 2-го поверху площею 36,2 кв.м (В)
1 086.00 грн
30.00 грн / м2
Приміщення
м. Харків, вул. Конторська,14.Оренда – приміщення 2-го поверху площею 36,2 кв.м (В)
Україна, Харківська обл., м. Харків, вул. Конторська,14
31.01.2023
м. Київ, вул. Миколи Голего, 8. Оренда – приміщення 3-го поверху площею 79,7 м2 (В)
17 215.20 грн
216.00 грн / м2
Приміщення
м. Київ, вул. Миколи Голего, 8. Оренда – приміщення 3-го поверху площею 79,7 м2 (В)
Україна, м.Київ, Київ, вулиця Миколи Голего, 8
22.01.2025
ДОВГОСТРОКОВА ОРЕНДА!  м. Київ, вул. Петра Курінного, 2-Б;  Оренда – приміщення 3-го поверху площею - 614,80 кв.м. (В)
86 815.90 грн
141.21 грн / м2
Приміщення
ДОВГОСТРОКОВА ОРЕНДА! м. Київ, вул. Петра Курінного, 2-Б; Оренда – приміщення 3-го поверху площею - 614,80 кв.м. (В)
Україна, м.Київ, Київ, вулиця Петра Курінного, 2-Б
12.01.2024
м. Київ, вул. Будівельників, 8-Б;   Оренда – приміщення підвалу, площею 452,6 кв.м. (В)
42 300.00 грн
93.46 грн / м2
Приміщення
м. Київ, вул. Будівельників, 8-Б; Оренда – приміщення підвалу, площею 452,6 кв.м. (В)
Україна, м.Київ, Київ, вулиця Будівельників, 8-Б