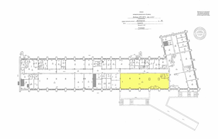
Дніпропетровська обл., м. Кривий Ріг, вул. Героїв АТО, 30. Оренда – приміщення 1-го поверху площею 275,8 кв.м. (В)

16 917.57 грн
61.34 грн / м2
Україна, Дніпропетровська обл., м. Кривий Ріг, вул. Героїв АТО, 30
Перейти до аукціону на сайті
  • Інформація
  • Опис
  • Документи
Дата оголошення пропозиції:
01 червня 2021
Площа:
275.80 м2
Тип об’єкта:
Приміщення
Тип аукціону:
Англійський аукціон
Статус аукціону:
Аукціон не відбувся
Тип угоди:
Оренда
Розмір мінімального кроку:
300.00 ₴
Розмір гарантійного внеску:
10 150.54 ₴
Початок прийому пропозицій:
01.06.2021 13:02:38
Завершення прийому пропозицій:
15.06.2021 20:00:00
Лот:
UA-PS-2021-06-01-000018-1
№ лоту (УТК):
UTK220321_16P
Лот виставляється на торги (раз):
6
Стислий опис майна:
Пропонується до оренди приміщення 1-го поверху площею 275,8 кв.м. Розташування - будівля знаходиться в центрі Металургійного району м. Кривого Рогу. Поруч розташовані: Виконком криворізької міської ради, житловий масив, ринок «Соцгород»,ТЦ, супермаркети, відділення Нової пошти, банки. Високий автомобільний і пішохідний потоки, зручна транспортна розв’язка. Приміщення підходить під розвиток будь-якого бізнесу: офісу, студії, навчальних класів та ін. . Можливість передачі приміщень в суборенду. Характеристики: Кількість поверхів – 4-5; Загальна площа – 13 040,1 кв.м.; Площа запропонована до оренди – 275,8кв.м.; Окремий вхід; Електропостачання, водопостачання, теплопостачання - централізоване; Земельна ділянка – 0,4712 га (договір оренди)
Адреса місцезнаходження майна:
Україна, Дніпропетровська обл., м. Кривий Ріг, вул. Героїв АТО, 30
Схожі пропозиції
09.04.2024
Дніпропетровська обл., м.Кривий Ріг, вул.Дніпропетровське шосе,48;   Оренда–приміщення 2-го поверху, площею 446,0 кв.м. (В)
6 859.48 грн
15.38 грн / м2
Приміщення
Дніпропетровська обл., м.Кривий Ріг, вул.Дніпропетровське шосе,48; Оренда–приміщення 2-го поверху, площею 446,0 кв.м. (В)
Україна, Дніпропетровська обл., Кривий Ріг, вулиця Дніпровське шосе, 48
10.09.2024
Дніпропетровська обл., м.Кривий Ріг, вул.Дніпропетровське шосе,48;   Оренда–приміщення 2-го поверху, площею 446,0 кв.м. (В)
6 859.48 грн
15.38 грн / м2
Приміщення
Дніпропетровська обл., м.Кривий Ріг, вул.Дніпропетровське шосе,48; Оренда–приміщення 2-го поверху, площею 446,0 кв.м. (В)
Україна, Дніпропетровська обл., Кривий Ріг, вулиця Дніпровське шосе, 48
08.08.2023
Дніпропетровська обл., м. Дніпро, вул.Січових Стрільців, 10. Оренда – приміщення цокольного поверху площею 31,20 кв.м. (В)
1 478.88 грн
47.40 грн / м2
Приміщення
Дніпропетровська обл., м. Дніпро, вул.Січових Стрільців, 10. Оренда – приміщення цокольного поверху площею 31,20 кв.м. (В)
Україна, Дніпропетровська обл., м. Дніпро, вул.Січових Стрільців, 10
Дніпропетровська обл., м. Дніпро, пр. Пушкіна, 75 а. Оренда – приміщення  1-го  поверху площею 13,60 кв.м (П)
716.82 грн
52.71 грн / м2
Приміщення
Дніпропетровська обл., м. Дніпро, пр. Пушкіна, 75 а. Оренда – приміщення 1-го поверху площею 13,60 кв.м (П)
Україна, Дніпропетровська обл., м. Дніпро, пр. Пушкіна, 75а
Переглянуті пропозиції
Полтавська обл., м. Полтава, вул. Загородня, буд. 30. Оренда – приміщення 1-го поверху площею 22,9 кв.м. (В)
299.99 грн
13.10 грн / м2
Приміщення
Полтавська обл., м. Полтава, вул. Загородня, буд. 30. Оренда – приміщення 1-го поверху площею 22,9 кв.м. (В)
Україна, Полтавська обл., м. Полтава, вул. Загородня, буд. 30
Харківська обл., м. Харків, вул. Академіка Вальтера, 3.Оренда – приміщення 4-го поверху площею 575,8 кв.м.(В)
7 358.72 грн
12.78 грн / м2
Приміщення
Харківська обл., м. Харків, вул. Академіка Вальтера, 3.Оренда – приміщення 4-го поверху площею 575,8 кв.м.(В)
Україна, Харківська обл., Харків, вул. Академіка Вальтера, 3
01.09.2023
Кіровоградська обл., м. Кропивницький, вул. Бобринецький шлях, 106. Оренда – одноповерхова будівля площею 202,50 кв.м. (В)
9 598.50 грн
47.40 грн / м2
Будівля
Кіровоградська обл., м. Кропивницький, вул. Бобринецький шлях, 106. Оренда – одноповерхова будівля площею 202,50 кв.м. (В)
Україна, Кіровоградська обл., м. Кропивницький, вул. Бобринецький шлях, 106
26.12.2023
Івано-Франківська обл., Калуський р-н, м. Калуш, просп. Лесі Українки, 19.Оренда – приміщення 1-го поверху, площею 250,9 м.кв (В)
9 428.82 грн
37.58 грн / м2
Приміщення
Івано-Франківська обл., Калуський р-н, м. Калуш, просп. Лесі Українки, 19.Оренда – приміщення 1-го поверху, площею 250,9 м.кв (В)
Україна, Івано-Франківська обл., Калуський р-н, м. Калуш, просп. Лесі Українки, 19