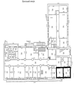
Дніпропетровська обл., м. Дніпро, вул.Січових Стрільців, 10. Оренда – приміщення цокольного поверху площею 31,20 кв.м. (В)

1 478.88 грн
47.40 грн / м2
Україна, Дніпропетровська обл., м. Дніпро, вул.Січових Стрільців, 10
Перейти до аукціону на сайті
  • Інформація
  • Опис
  • Документи
Дата оголошення пропозиції:
06 липня 2023
Площа:
31.20 м2
Тип об’єкта:
Приміщення
Тип аукціону:
Англійський аукціон
Статус аукціону:
Аукціон не відбувся
Тип угоди:
Оренда
Розмір мінімального кроку:
100.00 ₴
Розмір гарантійного внеску:
887.33 ₴
Початок прийому пропозицій:
06.07.2023 10:39:54
Завершення прийому пропозицій:
07.08.2023 20:00:00
Проведення аукціону:
08.08.2023 12:05:00
Лот:
CLE001-UA-20230706-19333
№ лоту (УТК):
UTK141221_10P
Лот виставляється на торги (раз):
10
Стислий опис майна:
Пропонується до оренди приміщення цокольного поверху площею 31,20 кв.м. Розташування - будівля знаходиться в центральному районі міста. Поруч знаходяться відділення банку, високий автомобільний і пішохідний потоки. Стан приміщення задовільний, підходить для офісу, студії, Ідеальне місце під розвиток будь-якого бізнесу. Можливість передачі приміщень в суборенду. Характеристики: - Кількість поверхів – 3 - Загальна площа – 2854,80 кв.м. - Площа запропонована до оренди – 31,20 кв.м. - Електропостачання, водопостачання, теплопостачання, охорона та обслуговування пожежної сигналізації, вивіз сміття, прибирання загальних місць та території; - Земельна ділянка – 0, 1636 га (договір оренди)
Адреса місцезнаходження майна:
Україна, Дніпропетровська обл., м. Дніпро, вул.Січових Стрільців, 10
Схожі пропозиції
10.10.2025
Дніпропетровська обл., м. Кам’янське, просп. Героїв АТО, 1. Оренда – приміщення 4-го поверху загальною площею 130,60 кв.м (В)
1 567.20 грн
12.00 грн / м2
Приміщення
Дніпропетровська обл., м. Кам’янське, просп. Героїв АТО, 1. Оренда – приміщення 4-го поверху загальною площею 130,60 кв.м (В)
Україна, Дніпропетровська обл., м. Кам’янське, просп. Героїв АТО, 1
31.12.2024
ДОВГОСТРОКОВА ОРЕНДА! Дніпропетровська обл., м. Дніпро, вул. Панікахи, 27. Оренда – приміщення 3-го поверху площею 410,5 кв.м.(В)
27 482.98 грн
66.95 грн / м2
Приміщення
ДОВГОСТРОКОВА ОРЕНДА! Дніпропетровська обл., м. Дніпро, вул. Панікахи, 27. Оренда – приміщення 3-го поверху площею 410,5 кв.м.(В)
Україна, Дніпропетровська обл., м. Дніпро, вул. Панікахи, 27
03.09.2025
Дніпропетровська обл., м. Дніпро, вул. Князя Ярослава Мудрого, 3. Оренда – приміщення 5-го поверху площею 23,10 кв.м. (В)
693.00 грн
30.00 грн / м2
Приміщення
Дніпропетровська обл., м. Дніпро, вул. Князя Ярослава Мудрого, 3. Оренда – приміщення 5-го поверху площею 23,10 кв.м. (В)
Україна, Дніпропетровська обл., м. Дніпро, вул. Князя Ярослава Мудрого, 3
15.02.2023
Дніпропетровська обл., м. Кам`янське, просп. Свободи, 44. Оренда – приміщення 1-го поверху площею 198,50 кв.м. (В)
6 312.30 грн
31.80 грн / м2
Приміщення
Дніпропетровська обл., м. Кам`янське, просп. Свободи, 44. Оренда – приміщення 1-го поверху площею 198,50 кв.м. (В)
Україна, Дніпропетровська обл., м. Кам`янське, просп. Свободи, 44
Переглянуті пропозиції
18.07.2025
Дніпропетровська обл., м. Кривий Ріг, вул. Героїв АТО, 30. Оренда – приміщення 1-го поверху площею 76,90 кв. м. (В)
2 892.21 грн
37.61 грн / м2
Приміщення
Дніпропетровська обл., м. Кривий Ріг, вул. Героїв АТО, 30. Оренда – приміщення 1-го поверху площею 76,90 кв. м. (В)
Україна, Дніпропетровська обл., м. Кривий Ріг, вул. Героїв АТО, 30
Чернігівська обл., м. Чернігів, вул. Бєлова, 21, Оренда – приміщення будівлі АТС площею 155,35 кв.м. (П)
942.97 грн
6.07 грн / м2
Приміщення
Чернігівська обл., м. Чернігів, вул. Бєлова, 21, Оренда – приміщення будівлі АТС площею 155,35 кв.м. (П)
Україна, Чернігівська обл., Чернігів, вул. Бєлова, 21
Чернігівська обл., м. Чернігів, просп. Миру, 28. Оренда – приміщення 2-го поверху площею 90,40 кв.м. (В)
12 294.40 грн
136.00 грн / м2
Приміщення
Чернігівська обл., м. Чернігів, просп. Миру, 28. Оренда – приміщення 2-го поверху площею 90,40 кв.м. (В)
Україна, Чернігівська обл., Чернігів, просп. Миру, 28