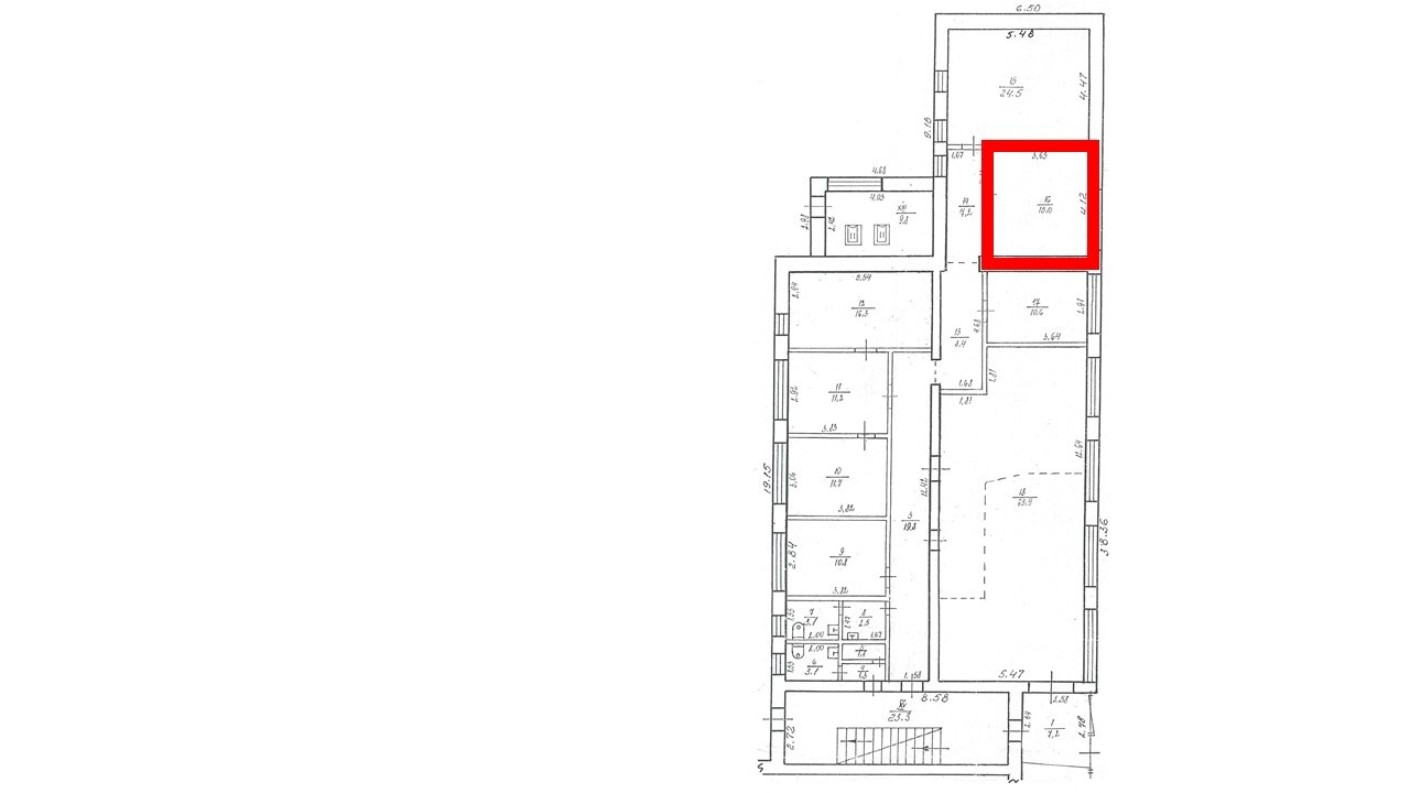
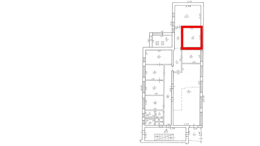
Івано-Франківська обл., м.Тлумач, вул. Макуха, 14А. Оренда – приміщення 1-го поверху, площею 15,0 кв.м. (В)

1 824.00 грн
121.60 грн / м2
Україна, Івано-Франківська обл., м. Тлумач, вул. Макуха, 14А
Перейти до аукціону на сайті
  • Інформація
  • Опис
  • Документи
Дата оголошення пропозиції:
02 червня 2021
Площа:
15.00 м2
Тип об’єкта:
Приміщення
Тип аукціону:
Англійський аукціон
Статус аукціону:
Аукціон не відбувся
Тип угоди:
Оренда
Розмір мінімального кроку:
100.00 ₴
Розмір гарантійного внеску:
1 094.40 ₴
Початок прийому пропозицій:
02.06.2021 12:55:40
Завершення прийому пропозицій:
16.06.2021 20:00:00
Лот:
UA-PS-2021-06-02-000048-2
№ лоту (УТК):
UTK020621_05P
Лот виставляється на торги (раз):
1
Стислий опис майна:
Пропонуються до оренди приміщення 1-го поверху, площею 15,0 м.кв. Будівля знаходиться в центральній частині міста, розвинена інфраструктура, високі автомобільний та пішохідний потоки. Характеристики: кількість поверхів – 2; опалення автономне (газ); земельна ділянка – 0,1703 га (договір оренди)
Адреса місцезнаходження майна:
Україна, Івано-Франківська обл., м. Тлумач, вул. Макуха, 14А
Схожі пропозиції
Івано-Франківська обл., Галицький р-н, м. Бурштин, вул. Січових Стрільців, 17. Оренда приміщень 2-го поверху площею 403,7 кв.м.
2 139.61 грн
5.30 грн / м2
Приміщення
Івано-Франківська обл., Галицький р-н, м. Бурштин, вул. Січових Стрільців, 17. Оренда приміщень 2-го поверху площею 403,7 кв.м.
Україна, Івано-Франківська обл., м. Бурштин, вул. Січових Стрільців, 17
29.11.2022
Івано-Франківська обл., Калуський район, смт.Рожнятів, площа Єдності, 9, оренда – Приміщення 3-го поверху площею 100,8 м.кв. (В)
1 257.98 грн
12.48 грн / м2
Приміщення
Івано-Франківська обл., Калуський район, смт.Рожнятів, площа Єдності, 9, оренда – Приміщення 3-го поверху площею 100,8 м.кв. (В)
Україна, Івано-Франківська обл., смт. Рожнятів, площа Єдності, 9
12.05.2023
Івано-Франківська обл., Івано-Франківський р-н, с.Росільна, вул. Шевченка, 145а. Оренда – Нежитлове приміщення І-го поверху, площею 33,4 м.кв. (В)
500.33 грн
14.98 грн / м2
Приміщення
Івано-Франківська обл., Івано-Франківський р-н, с.Росільна, вул. Шевченка, 145а. Оренда – Нежитлове приміщення І-го поверху, площею 33,4 м.кв. (В)
Україна, Івано-Франківська обл., Івано-Франківський р-н, с.Росільна, вул. Шевченка, 145а
07.01.2025
Тернопільська область, м. Тернопіль проспект Злуки,49. Оренда – приміщення цокольного поверху, площею 295,4м² (П)
8 017.24 грн
146.30 грн / м2
Приміщення
Тернопільська область, м. Тернопіль проспект Злуки,49. Оренда – приміщення цокольного поверху, площею 295,4м² (П)
Україна, Івано-Франківська обл., м. Івано-Франківськ, вул. Ю.Целевича, 18а
Переглянуті пропозиції
26.12.2023
Чернігівська обл., м. Мена, вул. Героїв АТО, 9;      Оренда –приміщення 1-го поверху площею 29,70 кв.м (В)
2 970.00 грн
100.00 грн / м2
Приміщення
Чернігівська обл., м. Мена, вул. Героїв АТО, 9; Оренда –приміщення 1-го поверху площею 29,70 кв.м (В)
Україна, Чернігівська обл., Мена, вулиця Героїв АТО, 9
07.10.2022
Сумська обл., смт. Недригайлів, вул. Незалежності, буд. 8. Оренда – офісне приміщення 3-го поверху, площею 28,6 кв.м. (В)
453.02 грн
15.84 грн / м2
Офіс
Сумська обл., смт. Недригайлів, вул. Незалежності, буд. 8. Оренда – офісне приміщення 3-го поверху, площею 28,6 кв.м. (В)
Україна, Сумська обл., Недригайлів, вул. Незалежності, 8