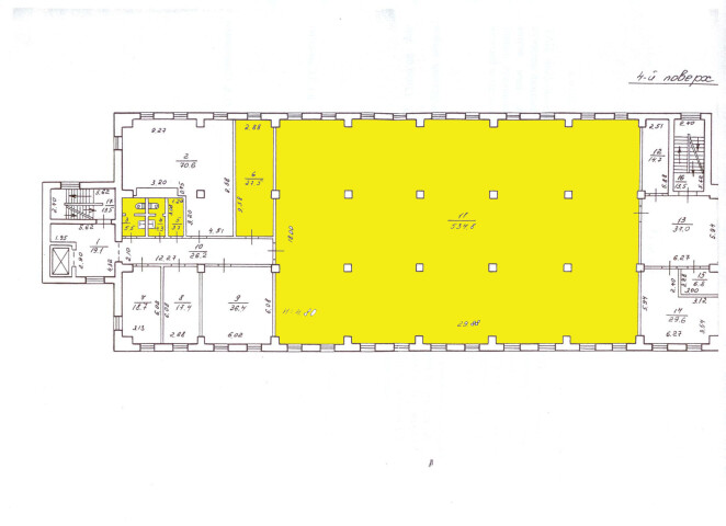
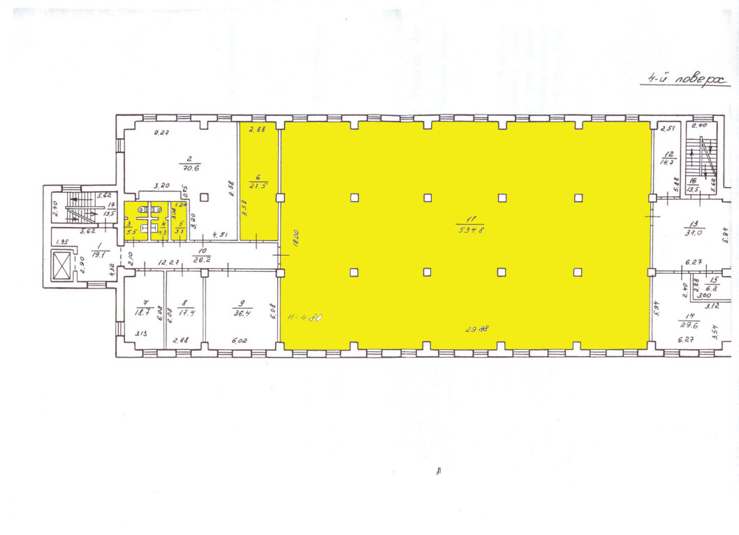
Харківська обл., м. Харків, вул. Академіка Вальтера, 3.Оренда – приміщення 4-го поверху площею 575,8 кв.м.(В)

3 011.43 грн
5.23 грн / м2
Україна, Харківська обл., Харків, вул. Академіка Вальтера, 3
Перейти до аукціону на сайті
  • Інформація
  • Опис
  • Документи
Дата оголошення пропозиції:
20 травня 2021
Площа:
575.80 м2
Тип об’єкта:
Приміщення
Тип аукціону:
Англійський аукціон
Статус аукціону:
Аукціон не відбувся
Тип угоди:
Оренда
Розмір мінімального кроку:
300.00 ₴
Розмір гарантійного внеску:
1 806.86 ₴
Початок прийому пропозицій:
20.05.2021 13:47:40
Завершення прийому пропозицій:
21.06.2021 20:00:00
Лот:
UA-PS-2021-05-20-000062-1
№ лоту (УТК):
UTK140420_10C
Стислий опис майна:
Пропонується до оренди нежитлове приміщення площею 575,8 кв.м, розташоване на 4-му поверсі 4 поверхової будівлі за адресою: м. Харків, вул. Академіка Вальтера, 3. Будівля знаходиться в спальному районі міста, 5 хвилин до зупинки громадського маршрутного автобусу. Характеристики • кількість поверхів – 4; • кількість приміщень, пропонованих до оренди – частина 4-го поверху; • в приміщеннях присутнє опалення, електроенергія , на поверсі є водопостачання та сан. кімната; • земельна ділянка – 4600,0 кв.м.
Адреса місцезнаходження майна:
Україна, Харківська обл., Харків, вул. Академіка Вальтера, 3
Схожі пропозиції
Харківська обл., м. Лозова, вул. Михайла Грушевського, 7. Оренда – приміщення 1-го та 2-го поверхів
8 294.42 грн
14.59 грн / м2
Приміщення
Харківська обл., м. Лозова, вул. Михайла Грушевського, 7. Оренда – приміщення 1-го та 2-го поверхів
Україна, Харківська обл., м. Лозова, вул. Михайла Грушевського, буд. 7
22.04.2025
м. Харків, вул.Сумгаїтська, 9а. Оренда – приміщення 1-го поверху, площею 67,1 кв.м  (В)
4 106.52 грн
61.20 грн / м2
Приміщення
м. Харків, вул.Сумгаїтська, 9а. Оренда – приміщення 1-го поверху, площею 67,1 кв.м (В)
Україна, Харківська обл., м. Харків, вул. Сумгаїтська, 9а
04.03.2025
Харківська обл., м. Харків, пр-т Олександрівський, 83. Оренда – приміщеня на 5-му поверсі загальною площею 118,00 кв.м. (В)
3 540.00 грн
30.00 грн / м2
Приміщення
Харківська обл., м. Харків, пр-т Олександрівський, 83. Оренда – приміщеня на 5-му поверсі загальною площею 118,00 кв.м. (В)
Україна, Харківська обл., м. Харків, пр-т Олександрівський, 83
21.08.2024
м. Харків, вул. Конторська,14.Оренда – приміщення 2-го поверху площею 24,8 кв.м (В)
1 718.64 грн
69.30 грн / м2
Приміщення
м. Харків, вул. Конторська,14.Оренда – приміщення 2-го поверху площею 24,8 кв.м (В)
Україна, Харківська обл., м. Харків, вул. Конторська,14
Переглянуті пропозиції
17.11.2023
Чернігівська обл., м. Чернігів, вул. Текстильників,7;   Оренда – приміщення 2-го поверху та частини підвалу, площею 363,6 кв.м. (В)
17 234.64 грн
47.40 грн / м2
Приміщення
Чернігівська обл., м. Чернігів, вул. Текстильників,7; Оренда – приміщення 2-го поверху та частини підвалу, площею 363,6 кв.м. (В)
Україна, Чернігівська обл., Чернігів, вулиця Текстильників, 7
Полтавська обл., м. Лубни, проспект Володимирський, 1/5. Оренда – приміщення 2-го поверху площею  295,5 кв.м. (В)
9 456.00 грн
32.00 грн / м2
Приміщення
Полтавська обл., м. Лубни, проспект Володимирський, 1/5. Оренда – приміщення 2-го поверху площею 295,5 кв.м. (В)
Україна, Полтавська обл., м. Лубни, проспект Володимирський, 1/5
14.02.2024
Полтавська обл., Миргородський р-н., смт. Велика Багачка, вул. Чекалових, 17. Оренда – Приміщення 1-го поверху, загальною площею 113,90 кв.м. (В)
3 510.40 грн
30.82 грн / м2
Приміщення
Полтавська обл., Миргородський р-н., смт. Велика Багачка, вул. Чекалових, 17. Оренда – Приміщення 1-го поверху, загальною площею 113,90 кв.м. (В)
Україна, Полтавська обл., Миргородський р-н., смт. Велика Багачка, вул. Чекалових, 17
27.09.2024
Сумська обл., м. Глухів, пров. Сергеєва-Ценського, буд. 13;   Оренда – тех.будівля площею 164,6 кв.м. (В)
984.31 грн
5.98 грн / м2
Будівля
Сумська обл., м. Глухів, пров. Сергеєва-Ценського, буд. 13; Оренда – тех.будівля площею 164,6 кв.м. (В)
Україна, Сумська обл., Глухів, пров. Сергеєва-Ценського, 13