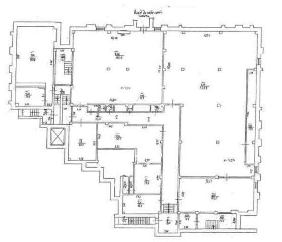
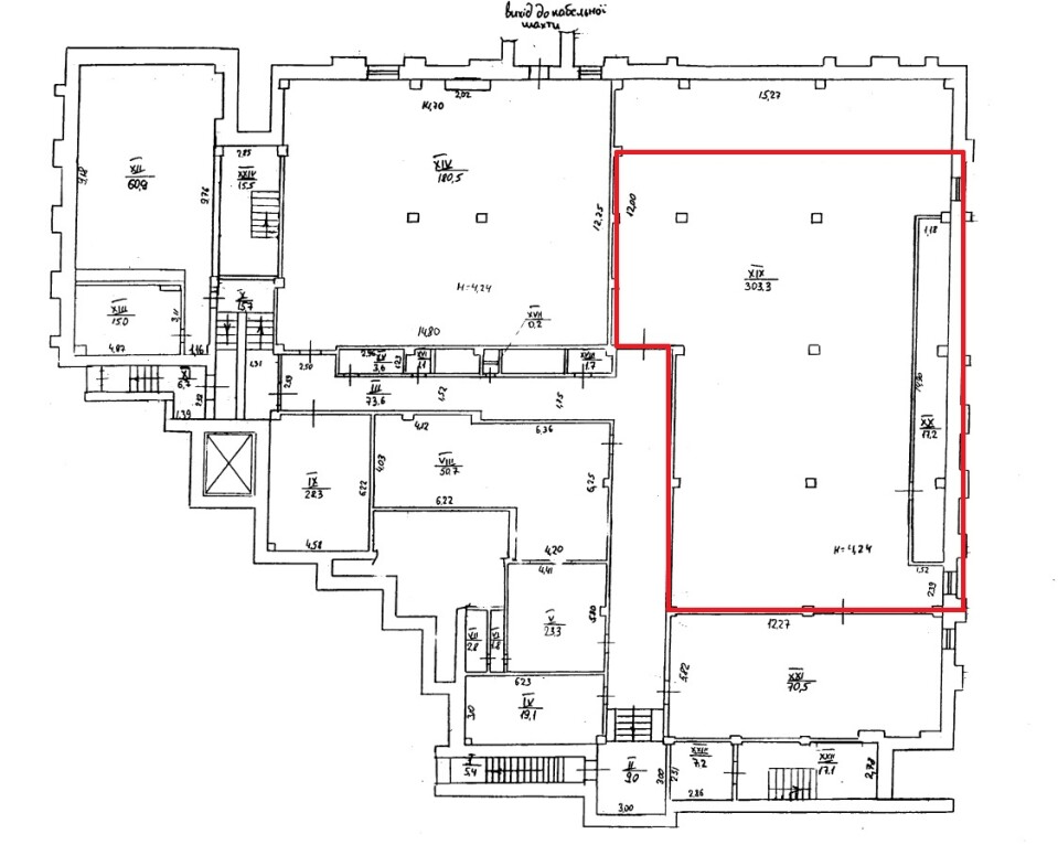
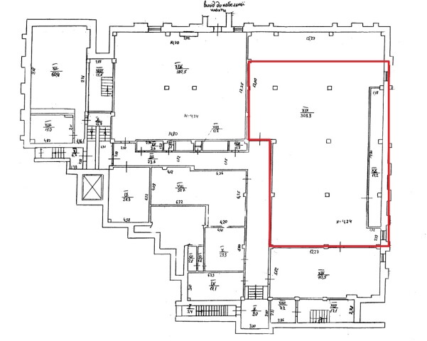
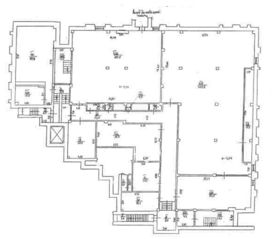
м. Київ, вул. Райдужна, 27-А, оренда – приміщення підвалу, площею 274,70 кв.м. (В)

29 667.60 грн
108.00 грн / м2
Україна, м.Київ, Київ, вул. Райдужна, 27-А
Перейти до аукціону на сайті
  • Інформація
  • Опис
  • Документи
Дата оголошення пропозиції:
16 червня 2021
Площа:
274.70 м2
Тип об’єкта:
Приміщення
Тип аукціону:
Англійський аукціон
Статус аукціону:
Аукціон не відбувся
Тип угоди:
Оренда
Розмір мінімального кроку:
300.00 ₴
Розмір гарантійного внеску:
17 800.56 ₴
Початок прийому пропозицій:
16.06.2021 13:24:43
Завершення прийому пропозицій:
15.07.2021 20:00:00
Лот:
UA-PS-2021-06-16-000036-3
№ лоту (УТК):
UTK160621_02T
Лот виставляється на торги (раз):
1
Стислий опис майна:
Пропонуються до оренди приміщення підвалу, площею 274,70 м2. Будівля знаходиться у Дніпровському районі міста Києва, житловий масив Райдужний. Поруч розвинена інфраструктура, зупинки маршрутного транспорту, авторинок, супермаркети, торгівельнорозважальні центри. Вхід у будівлю з двору. Характеристики • кількість поверхів – 2; • опалення централізоване (міське); • земельна ділянка – 0,2524 га; • загальна площа будівлі -- 3040,30 м2; • каналізація, сан. вузол, водопостачання – відсутнє;
Адреса місцезнаходження майна:
Україна, м.Київ, Київ, вул. Райдужна, 27-А
Схожі пропозиції
05.12.2023
ДОВГОСТРОКОВА ОРЕНДА! м. Київ, вул. Героїв Севастополя, 39/8 літ. «Е»;  Оренда – приміщення 2-го та 4-го поверхів, площею 1751,8 кв.м. (В)
239 944.05 грн
136.97 грн / м2
Приміщення
ДОВГОСТРОКОВА ОРЕНДА! м. Київ, вул. Героїв Севастополя, 39/8 літ. «Е»; Оренда – приміщення 2-го та 4-го поверхів, площею 1751,8 кв.м. (В)
Україна, м.Київ, Київ, вулиця Героїв Севастополя, 39
05.12.2023
м. Київ, вул. Миколи Голего, 8;  Оренда – приміщення 1-го поверху площею 30,9 кв.м. (В)
6 259.41 грн
202.57 грн / м2
Приміщення
м. Київ, вул. Миколи Голего, 8; Оренда – приміщення 1-го поверху площею 30,9 кв.м. (В)
Україна, м.Київ, Київ, вулиця Миколи Голего, 8
м. Київ, вул. Джона Маккейна, №40. Оренда – приміщення підвалу, площею 24,80 м2 (В)
1 145.76 грн
46.20 грн / м2
Приміщення
м. Київ, вул. Джона Маккейна, №40. Оренда – приміщення підвалу, площею 24,80 м2 (В)
Україна, м.Київ, Київ, вул. Джона Маккейна, №40
Переглянуті пропозиції
19.09.2023
м. Київ, вул. Антоновича, 40. Оренда – приміщення підвалу площею 77,0 кв.м. (В)
23 720.62 грн
308.06 грн / м2
Приміщення
м. Київ, вул. Антоновича, 40. Оренда – приміщення підвалу площею 77,0 кв.м. (В)
Україна, м.Київ, Київ, вул. Антоновича, 40
14.02.2023
Сумська обл., м. Охтирка, вул. Чкалова, буд. 2. Оренда – офісна будівля площею 183,90 кв.м. (В)
1 701.08 грн
9.25 грн / м2
Офіс
Сумська обл., м. Охтирка, вул. Чкалова, буд. 2. Оренда – офісна будівля площею 183,90 кв.м. (В)
Україна, Сумська обл., м. Охтирка, вул. Чкалова, буд. 2
16.12.2022
Рівненська обл., м. Рівне вул.Соборна,56. Оренда – цокольні приміщення загальною площею 334,1 м.кв. (В)
15 435.42 грн
46.20 грн / м2
Приміщення
Рівненська обл., м. Рівне вул.Соборна,56. Оренда – цокольні приміщення загальною площею 334,1 м.кв. (В)
Україна, Рівненська обл., м. Рівне, вул.Соборна,56
26.11.2025
Чернігівська обл., м. Чернігів, проспект Миру, 35Б. Оренда – приміщення 2 -го поверху площею 77,00 кв.м. (В)
2 310.00 грн
30.00 грн / м2
Приміщення
Чернігівська обл., м. Чернігів, проспект Миру, 35Б. Оренда – приміщення 2 -го поверху площею 77,00 кв.м. (В)
Україна, Чернігівська обл., Чернігів, проспект Миру, 35Б