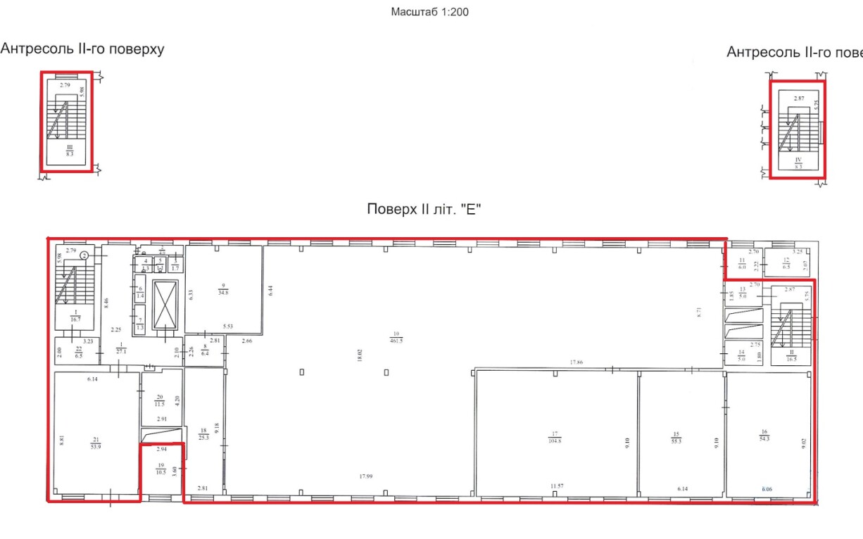
ДОВГОСТРОКОВА ОРЕНДА! м. Київ, вул. Героїв Севастополя, 39/8 літ. «Е»; Оренда – приміщення 2-го та 4-го поверхів, площею 1751,8 кв.м. (В)

239 944.05 грн
136.97 грн / м2
Україна, м.Київ, Київ, вулиця Героїв Севастополя, 39
Перейти до аукціону на сайті
  • Інформація
  • Опис
  • Документи
Дата оголошення пропозиції:
02 листопада 2023
Площа:
1751.80 м2
Тип об’єкта:
Приміщення
Тип аукціону:
Англійський аукціон
Статус аукціону:
Аукціон не відбувся
Тип угоди:
Оренда
Розмір мінімального кроку:
2 500.00 ₴
Розмір гарантійного внеску:
143 966.43 ₴
Початок прийому пропозицій:
02.11.2023 14:13:28
Завершення прийому пропозицій:
04.12.2023 20:00:00
Проведення аукціону:
05.12.2023 11:10:00
Лот:
CLE001-UA-20231102-40597
№ лоту (УТК):
UTK270522_6T
Лот виставляється на торги (раз):
10
Стислий опис майна:
Пропонується до оренди приміщення 2-го та 4-го поверху площею 1751,80 кв.м. Розташування будівлі у Солом'янському районі міста Києва, місцевості Відрадний та Новокараваєві дачі. Поруч розвинена інфраструктура, зупинки маршрутного транспорту, трамваю, магазини, кафе, аптеки, середній автомобільний і пішохідний потоки. Вхід з вулиці Героїв Севастополя та з прохідної. Доступ 24/7. Характеристики: - загальна площа будівлі – 4607,20 м²; - кількість поверхів – 4; - загальна площа земельної ділянки – 0,9713 га; - опалення – централізоване (міське); - сан. вузол, каналізація, водопостачання – присутне;
Адреса місцезнаходження майна:
Україна, м.Київ, Київ, вулиця Героїв Севастополя, 39
Схожі пропозиції
18.11.2022
м. Київ, вул. Дегтярівська, 28-А. Оренда – приміщення 3-го поверху площею 853,34 кв.м. (В)
73 318.97 грн
85.92 грн / м2
Приміщення
м. Київ, вул. Дегтярівська, 28-А. Оренда – приміщення 3-го поверху площею 853,34 кв.м. (В)
Україна, м.Київ, Київ, вулиця Дегтярівська, 28А
26.01.2023
м. Київ, вул. Ореста Васкула (Феодори Пушиної), 27-А. Оренда – приміщення 3-го поверху, площею 34,5 кв.м. (В)
10 228.56 грн
296.48 грн / м2
Приміщення
м. Київ, вул. Ореста Васкула (Феодори Пушиної), 27-А. Оренда – приміщення 3-го поверху, площею 34,5 кв.м. (В)
Україна, м.Київ, м. Київ, вулиця Ореста Васкула, 27
30.04.2025
м. Київ, вул. Ореста Васкула, 27 (Святошинський р-н). Оренда – приміщення на 3-му поверсі, загальною площею - 521,10 м.кв. (В)
83 626.13 грн
160.48 грн / м2
Приміщення
м. Київ, вул. Ореста Васкула, 27 (Святошинський р-н). Оренда – приміщення на 3-му поверсі, загальною площею - 521,10 м.кв. (В)
Україна, м.Київ, Київ, вулиця Ореста Васкула, 27
м. Київ, Антоновича 40 Оренда приміщень 5 пов.
276 732.00 грн
360.00 грн / м2
Приміщення
м. Київ, Антоновича 40 Оренда приміщень 5 пов.
Україна, м.Київ, місто Київ, вул. Антоновича, 40