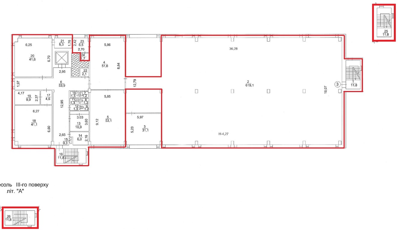
м. Київ, вул. Дегтярівська, 28-А. Оренда – приміщення 3-го поверху площею 853,34 кв.м. (В)

73 318.97 грн
85.92 грн / м2
Україна, м.Київ, Київ, вулиця Дегтярівська, 28А
Перейти до аукціону на сайті
  • Інформація
  • Опис
  • Документи
Дата оголошення пропозиції:
19 жовтня 2022
Площа:
853.34 м2
Тип об’єкта:
Приміщення
Тип аукціону:
Англійський аукціон
Статус аукціону:
Аукціон не відбувся
Тип угоди:
Оренда
Розмір мінімального кроку:
700.00 ₴
Розмір гарантійного внеску:
43 991.38 ₴
Початок прийому пропозицій:
19.10.2022 17:03:21
Завершення прийому пропозицій:
17.11.2022 20:00:00
Проведення аукціону:
18.11.2022 11:25:00
Лот:
CLE001-UA-20221019-57716
№ лоту (УТК):
UTK270422_03T
Лот виставляється на торги (раз):
6
Стислий опис майна:
Пропонуються до оренди приміщення 3-го поверху, площею 853,34 м2 . Будівля розташована в Шевченківському районі міста Києва, місцевості Лук'янівка, Сирець, Шулявка. Поруч розвинена інфраструктура, супермаркети, бізнес-центри, зупинки маршрутного транспорту. Найближчі ст. метро «Лук’янівська», «Берестейська». Вхід з двору. Доступ 24/7. Характеристики • загальна площа будівлі – 4710,20 м2 ; • сан. вузол, каналізація, водопостачання – присутне; • кількість поверхів – 4; • опалення централізоване (міське); • площа земельної ділянки – 0,3913 га*; *земельна ділянка не є предметом оренди
Адреса місцезнаходження майна:
Україна, м.Київ, Київ, вулиця Дегтярівська, 28А
Схожі пропозиції
04.06.2025
м. Київ, бульв. Шевченка Тараса, 18, літ.: «Б» (Шевченківський р-н). Оренда – приміщення 2-го поверху, загальною площею - 280,90 м2 (В)
21.10.2025
м. Київ, вул. Макіївська, 3 (Оболонський р-н) (В). Оренда – приміщення 2-го поверху, площею 724,10 кв. м.
43 446.00 грн
60.00 грн / м2
Приміщення
м. Київ, вул. Макіївська, 3 (Оболонський р-н) (В). Оренда – приміщення 2-го поверху, площею 724,10 кв. м.
Україна, м.Київ, Київ, вулиця Макіївська, 3
09.07.2025
м. Київ, вул. Наталії Ужвій 1 (Подільський р-н). Оренда – приміщення 1-го поверху, загальною площею – 65,60 м. кв. (В)
6 006.34 грн
91.56 грн / м2
Приміщення
м. Київ, вул. Наталії Ужвій 1 (Подільський р-н). Оренда – приміщення 1-го поверху, загальною площею – 65,60 м. кв. (В)
Україна, м.Київ, Київ, 04108, м. Київ, вул. Наталії Ужвій 1
27.01.2023
м. Київ, вул. Дегтярівська, 28-А. Оренда – приміщення 3-го поверху площею 853,34 кв.м. (В)
39 424.31 грн
46.20 грн / м2
Приміщення
м. Київ, вул. Дегтярівська, 28-А. Оренда – приміщення 3-го поверху площею 853,34 кв.м. (В)
Україна, м.Київ, Київ, вулиця Дегтярівська, 28А
Переглянуті пропозиції
Дніпропетровська обл., м. Дніпро, пр. Пушкіна, 75 а. Оренда – приміщення  1-го  поверху площею 63,60 кв.м.(П)
5 079.10 грн
79.86 грн / м2
Приміщення
Дніпропетровська обл., м. Дніпро, пр. Пушкіна, 75 а. Оренда – приміщення 1-го поверху площею 63,60 кв.м.(П)
Україна, Дніпропетровська обл., м. Дніпро, пр.Пушкіна, 75 а
31.10.2023
Дніпропетровська обл., м. Покров, вул. Центральна, 50. Оренда – приміщення будівлі гаражів загальною площею 26,90 кв.м (В)
1 484.88 грн
55.20 грн / м2
Приміщення
Дніпропетровська обл., м. Покров, вул. Центральна, 50. Оренда – приміщення будівлі гаражів загальною площею 26,90 кв.м (В)
Україна, Дніпропетровська обл., м. Покров, вул. Центральна, 50
29.03.2024
м. Київ, вул. Джона Маккейна, №40;   Оренда – приміщення підвалу, площею 24,80 м2 (В)
5 882.31 грн
237.19 грн / м2
Приміщення
м. Київ, вул. Джона Маккейна, №40; Оренда – приміщення підвалу, площею 24,80 м2 (В)
Україна, м.Київ, Київ, вулиця Джона Маккейна, 40
10.01.2023
Дніпропетровська обл., м. Дніпро, вул. Чернишевського, 27. Оренда – приміщення 2-го поверху площею 98,40 кв.м. (В)
6 683.33 грн
67.92 грн / м2
Приміщення
Дніпропетровська обл., м. Дніпро, вул. Чернишевського, 27. Оренда – приміщення 2-го поверху площею 98,40 кв.м. (В)
Україна, Дніпропетровська обл., м. Дніпро, вул. Чернишевського, 27