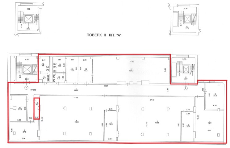
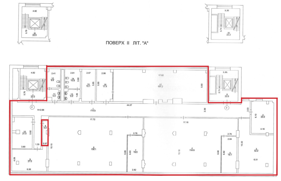
ДОВГОСТРОКОВА ОРЕНДА! м. Київ, вул. Антоновича, 40, оренда – приміщення 2-го поверху, площею 757,90 кв.м. (В)

333 400.21 грн
439.90 грн / м2
Україна, м.Київ, Київ, вул. Антоновича, 40
Перейти до аукціону на сайті
  • Інформація
  • Опис
  • Документи
Дата оголошення пропозиції:
14 липня 2021
Площа:
757.90 м2
Тип об’єкта:
Приміщення
Тип аукціону:
Англійський аукціон
Статус аукціону:
Аукціон не відбувся
Тип угоди:
Оренда
Розмір мінімального кроку:
3 500.00 ₴
Розмір гарантійного внеску:
200 040.13 ₴
Початок прийому пропозицій:
14.07.2021 09:05:11
Завершення прийому пропозицій:
10.08.2021 20:00:00
Лот:
UA-PS-2021-07-14-000001-1
№ лоту (УТК):
UTK120721_01T
Лот виставляється на торги (раз):
1
Стислий опис майна:
Пропонуються до оренди приміщення 2-го, площею 757,90 кв.м. Стан приміщень задовільний. Кондиціонування присутнє в приміщенні. Будівля знаходиться у центрі міста на перехресті вулиць Жилянська та Антоновича. Поруч з БЦ розташована зупинка міського автотранспорту, в 5-ти хвилинах ходьби знаходиться станція метро «Олімпійська», парк Тараса Шевченка. Зарядна станція Utrecharge. Вхід з вул. Антоновича. Характеристики: • кількість поверхів – 9; • загальна площа будівлі – 7649,30 м2; • опалення централізоване (міське); • земельна ділянка – 0,2099 га; • сан. вузол, водопостачання, каналізація - присутні;
Адреса місцезнаходження майна:
Україна, м.Київ, Київ, вул. Антоновича, 40
Схожі пропозиції
05.12.2023
м. Київ, вул. Архітектора Вербицького, 3;   Оренда – приміщення 1-го та 3-го поверху площею 263,7 кв.м. (В)
25 251.91 грн
95.76 грн / м2
Приміщення
м. Київ, вул. Архітектора Вербицького, 3; Оренда – приміщення 1-го та 3-го поверху площею 263,7 кв.м. (В)
Україна, м.Київ, Київ, вулиця Архітектора Вербицького, 3
19.09.2023
м. Київ, вул. Джона Маккейна, №40 , Оренда – приміщення підвалу, площею 44,26 м2 , (В)
10 498.03 грн
237.51 грн / м2
Приміщення
м. Київ, вул. Джона Маккейна, №40 , Оренда – приміщення підвалу, площею 44,26 м2 , (В)
Україна, м.Київ, Київ, вулиця Джона Маккейна, 40
22.10.2025
м. Київ, вул. Джона Маккейна, 40, літ. «А» (Печерський р-н). Оренда – група приміщень на 1-му поверсі, площею 34,70 кв.м (В)
7 039.59 грн
202.87 грн / м2
Приміщення
м. Київ, вул. Джона Маккейна, 40, літ. «А» (Печерський р-н). Оренда – група приміщень на 1-му поверсі, площею 34,70 кв.м (В)
Україна, м.Київ, Київ, вул. Джона Маккейна, 40, літ. «А» (Печерський р-н)
31.05.2023
м. Київ, вул. Ісаакяна, 3. Оренда – Приміщення 1-го поверху площею 57,9 кв.м. (В)
12 271.91 грн
211.95 грн / м2
Приміщення
м. Київ, вул. Ісаакяна, 3. Оренда – Приміщення 1-го поверху площею 57,9 кв.м. (В)
Україна, м.Київ, Київ, вулиця Ісаакяна, 3
Переглянуті пропозиції
28.09.2023
Львівська область, с. Батьків, вул. Центральна, 28. Оренда – приміщення 1-го поверху площею 21,20 кв.м. (В)
318.00 грн
3.71 грн / м2
Приміщення
Львівська область, с. Батьків, вул. Центральна, 28. Оренда – приміщення 1-го поверху площею 21,20 кв.м. (В)
Україна, Львівська обл., с. Батьків, вул. Центральна, 28
09.09.2025
м. Київ, вул. Дегтярівська, 28А, літ. «А» (Шевченківський р-н). Оренда – приміщення на 1-му поверсі, площею – 35,20 кв.м (В)
4 536.58 грн
128.88 грн / м2
Приміщення
м. Київ, вул. Дегтярівська, 28А, літ. «А» (Шевченківський р-н). Оренда – приміщення на 1-му поверсі, площею – 35,20 кв.м (В)
Україна, м.Київ, Київ, 04119, м. Київ, вул. Дегтярівська, 28А, літ. «А» (Шевченківський р-н