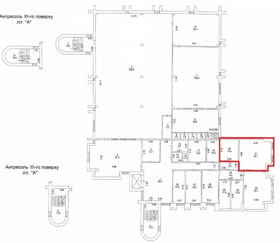
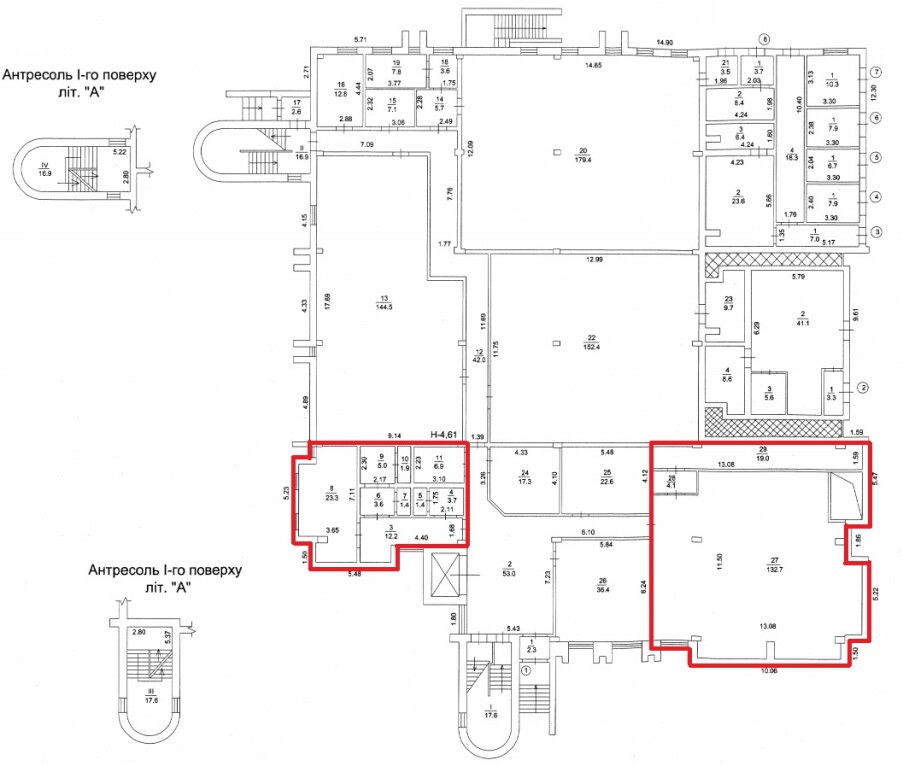
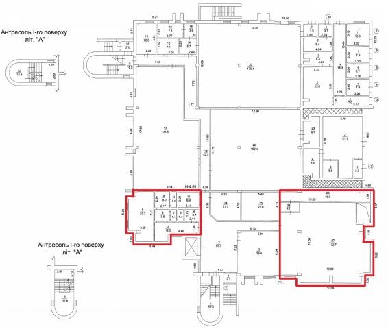
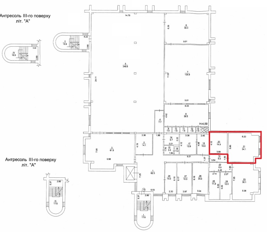
м. Київ, вул. Архітектора Вербицького, 3; Оренда – приміщення 1-го та 3-го поверху площею 263,7 кв.м. (В)

25 251.91 грн
95.76 грн / м2
Україна, м.Київ, Київ, вулиця Архітектора Вербицького, 3
Перейти до аукціону на сайті
  • Інформація
  • Опис
  • Документи
Дата оголошення пропозиції:
02 листопада 2023
Площа:
263.70 м2
Тип об’єкта:
Приміщення
Тип аукціону:
Англійський аукціон
Статус аукціону:
Аукціон не відбувся
Тип угоди:
Оренда
Розмір мінімального кроку:
260.00 ₴
Розмір гарантійного внеску:
15 151.15 ₴
Початок прийому пропозицій:
02.11.2023 14:44:19
Завершення прийому пропозицій:
04.12.2023 20:00:00
Проведення аукціону:
05.12.2023 12:10:00
Лот:
CLE001-UA-20231102-84550
№ лоту (УТК):
UTK181122_01T
Лот виставляється на торги (раз):
10
Стислий опис майна:
Пропонується до оренди приміщення 1-го та 3-го поверху площею 263,7 кв.м . Будівля знаходиться в Дарницькому районі міста Києва, житловий масив Харківський. Зупинки маршрутного транспорту, супермаркети, торгово-розважальні центри. Найближчі станції метро «Харківська», «Вирлиця». Вхід з двору. Характеристики: • загальна площа будівлі – 4804,7 м2 ; • кількість поверхів – 5; • опалення централізоване (міське); • земельна ділянка – 0,5530 га; • каналізація, водозабезпечення, сан. вузол – присутні
Адреса місцезнаходження майна:
Україна, м.Київ, Київ, вулиця Архітектора Вербицького, 3
Схожі пропозиції
30.07.2025
м. Київ, вулиця Академіка Шалімова, 39/8, літ. «Е» (Солом’янський р-н). Оренда – приміщення 1-го поверху, площею 74,40 м. кв. (В)
9 601.32 грн
129.05 грн / м2
Приміщення
м. Київ, вулиця Академіка Шалімова, 39/8, літ. «Е» (Солом’янський р-н). Оренда – приміщення 1-го поверху, площею 74,40 м. кв. (В)
Україна, м.Київ, Київ, вулиця Академіка Шалімова, 39/8
31.05.2023
ДОВГОСТРОКОВА ОРЕНДА! м. Київ, вул. Ісаакяна, 3. Оренда – Приміщення цокольного поверху площею 400,8 кв.м. (В)
67 959.65 грн
169.56 грн / м2
Приміщення
ДОВГОСТРОКОВА ОРЕНДА! м. Київ, вул. Ісаакяна, 3. Оренда – Приміщення цокольного поверху площею 400,8 кв.м. (В)
Україна, м.Київ, Київ, вулиця Ісаакяна, 3
21.10.2022
ДОВГОСТРОКОВА ОРЕНДА! м. Київ, вул. Салютна, 5а, літ. «Б». Оренда – приміщення 3-го та 4-го поверхів площею 992,80 кв.м. (В)
Переглянуті пропозиції
03.09.2025
Дніпропетровська обл., м. Кам’янське, просп. Свободи, 44. Оренда – приміщення 5-го поверху загальною площею 26,10 кв.м (В)
522.00 грн
20.00 грн / м2
Приміщення
Дніпропетровська обл., м. Кам’янське, просп. Свободи, 44. Оренда – приміщення 5-го поверху загальною площею 26,10 кв.м (В)
Україна, Дніпропетровська обл., м. Кам’янське, просп. Свободи, 44