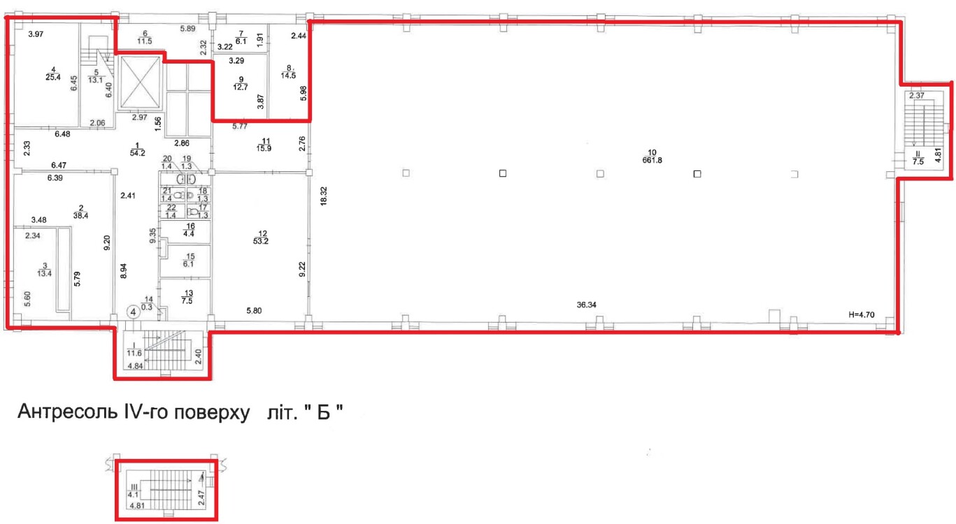
ДОВГОСТРОКОВА ОРЕНДА! м. Київ, вул. Салютна, 5а, літ. «Б». Оренда – приміщення 3-го та 4-го поверхів площею 992,80 кв.м. (В)

45 867.36 грн
46.20 грн / м2
Україна, м.Київ, Київ, вулиця Салютна, 5А
Перейти до аукціону на сайті
  • Інформація
  • Опис
  • Документи
Дата оголошення пропозиції:
20 вересня 2022
Площа:
992.80 м2
Тип об’єкта:
Приміщення
Тип аукціону:
Англійський аукціон
Статус аукціону:
Аукціон не відбувся
Тип угоди:
Оренда
Розмір мінімального кроку:
500.00 ₴
Розмір гарантійного внеску:
27 520.42 ₴
Початок прийому пропозицій:
20.09.2022 16:19:23
Завершення прийому пропозицій:
20.10.2022 20:00:00
Проведення аукціону:
21.10.2022 11:50:00
Лот:
CLE001-UA-20220920-94821
№ лоту (УТК):
UTK040422_06T
Лот виставляється на торги (раз):
6
Стислий опис майна:
Пропонуються до оренди приміщення 3-го та 4-го поверху, літ. «Б», площею 992,80 м2 . Будівля розташована в Шевченківському районі міста Києва, місцевість Нивки. Поруч розвинена інфраструктура, зупинки маршрутного транспорту, супермаркети, бізнес-центри, фінансові заклади, 5 хв. від ст. м. «Нивки». Вхід з двору. Доступ 24/7. Характеристики • кількість поверхів – 4; • сан. вузол, каналізація – присутні; • площа будівлі – літ. «Б» - 4892,10 м2; • опалення централізоване (міське); • земельна ділянка – 0,6317 га;
Адреса місцезнаходження майна:
Україна, м.Київ, Київ, вулиця Салютна, 5А
Схожі пропозиції
08.05.2024
ДОВГОСТРОКОВА ОРЕНДА!  м. Київ, вул. Василя Макуха (Шевцова Івана),5; Оренда – приміщення 3-го поверху площею 905,3 кв.м. (В)
132 137.59 грн
145.96 грн / м2
Приміщення
ДОВГОСТРОКОВА ОРЕНДА! м. Київ, вул. Василя Макуха (Шевцова Івана),5; Оренда – приміщення 3-го поверху площею 905,3 кв.м. (В)
Україна, м.Київ, Київ, вул. Василя Макуха (Шевцова Івана), 5
м. Київ, вул. Будівельників, 8-Б, оренда – приміщення підвалу, площею 452,60 кв.м. (В)
20 910.12 грн
46.20 грн / м2
Приміщення
м. Київ, вул. Будівельників, 8-Б, оренда – приміщення підвалу, площею 452,60 кв.м. (В)
Україна, м.Київ, Київ, вул. Будівельників, 8-Б
м. Київ, вул. Антоновича 40. Оренда - приміщення 3-го поверху площею 740,4 кв.м. (В)
109 179.38 грн
147.46 грн / м2
Приміщення
м. Київ, вул. Антоновича 40. Оренда - приміщення 3-го поверху площею 740,4 кв.м. (В)
Україна, м.Київ, місто Київ, вул. Антоновича, 40
Переглянуті пропозиції
14.02.2024
Сумська обл., Сумський р-н., с. Миропілля, вул. Сумська (Леніна), буд. 52;    Оренда – нежитлова будівля з підвалом та дизельною площею 233,2 кв.м. (В)
Харківський район, c. Липці, вул. Пушкінська, 82. Оренда – приміщення 2-го поверху площею 44,00 кв.м.
2 376.00 грн
54.00 грн / м2
Приміщення
Харківський район, c. Липці, вул. Пушкінська, 82. Оренда – приміщення 2-го поверху площею 44,00 кв.м.
Україна, Харківська обл., Харківський район, c. Липці, вул. Пушкінська, 82
28.09.2023
Рівненська обл., Варашський р-н, с. Дібрівськ, вул.Центральна, 1. Оренда – приміщення 1 поверху площею 25,5 кв. м. (В)
250.50 грн
9.82 грн / м2
Приміщення
Рівненська обл., Варашський р-н, с. Дібрівськ, вул.Центральна, 1. Оренда – приміщення 1 поверху площею 25,5 кв. м. (В)
Україна, Рівненська обл., Варашський р-н, с. Дібрівськ, вул.Центральна, 1