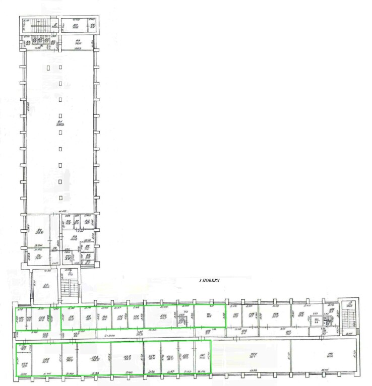
Львівська обл., м. Новояворівськ, вул. Шевченка,7. Оренда – приміщення 3-го поверху площею 314 кв.м. (В)

7 912.80 грн
25.20 грн / м2
Україна, Львівська обл., Новояворівськ, вул. Шевченка,7
Перейти до аукціону на сайті
  • Інформація
  • Опис
  • Документи
Дата оголошення пропозиції:
15 липня 2021
Площа:
314.00 м2
Тип об’єкта:
Приміщення
Тип аукціону:
Англійський аукціон
Статус аукціону:
Аукціон не відбувся
Тип угоди:
Оренда
Розмір мінімального кроку:
100.00 ₴
Розмір гарантійного внеску:
4 747.68 ₴
Початок прийому пропозицій:
15.07.2021 12:38:47
Завершення прийому пропозицій:
16.08.2021 20:00:00
Лот:
UA-PS-2021-07-15-000027-3
№ лоту (УТК):
UTK150721_01Т
Лот виставляється на торги (раз):
1
Стислий опис майна:
Пропонуються до оренди приміщення 3-го поверху площею 314 кв.м. Будівля знаходиться у центральній частини міста, розвинена інфраструктура. Характеристики - кількість поверхів – 3 - Опалення , електропостачання,водопостачання, водовідведення – централізоване, технічна охорона. - потребує ремонту - Вільна до використання потужність – 20кВт - земельна ділянка – 0,52 га (податок);
Адреса місцезнаходження майна:
Україна, Львівська обл., Новояворівськ, вул. Шевченка,7
Схожі пропозиції
06.05.2025
м. Стрий, вул. Поштова, 3. Оренда – приміщення другого поверху площею 315,10 кв. м (В)
15 972.42 грн
50.69 грн / м2
Приміщення
м. Стрий, вул. Поштова, 3. Оренда – приміщення другого поверху площею 315,10 кв. м (В)
Україна, Львівська обл., м. Стрий, вул. Поштова, 3
02.07.2024
Львівська обл., м. Жовква, вул.Воїнів УПА, 3;  Оренда – приміщення 1-го поверху площею 93,40 кв. м. (В)
5 211.72 грн
55.80 грн / м2
Приміщення
Львівська обл., м. Жовква, вул.Воїнів УПА, 3; Оренда – приміщення 1-го поверху площею 93,40 кв. м. (В)
Україна, Львівська обл., м.Жовква, вулиця Воїнів УПА, 3
21.06.2024
Львівська обл., с. Скелівка, вул. Центральна, 1. Оренда – приміщення площею 34,90 кв. м. (В)
511.63 грн
14.66 грн / м2
Приміщення
Львівська обл., с. Скелівка, вул. Центральна, 1. Оренда – приміщення площею 34,90 кв. м. (В)
Україна, Львівська обл., с. Скелівка, вул. Центральна, 1
05.06.2025
Львівська обл. м. Добромиль, вул. Галицька, 24. Оренда – приміщення складу площею 24,3 кв.м. (В)
510.30 грн
21.00 грн / м2
Приміщення
Львівська обл. м. Добромиль, вул. Галицька, 24. Оренда – приміщення складу площею 24,3 кв.м. (В)
Україна, Львівська обл., м. Добромиль, вул. Галицька, 24
Переглянуті пропозиції
24.01.2025
ДОВГОСТРОКОВА ОРЕНДА!  м. Київ, пр-т Оболонський, 32-Б ;  Оренда – приміщення 4-го поверху, площею 772,40 м2 (В)
149 179.01 грн
193.14 грн / м2
Приміщення
ДОВГОСТРОКОВА ОРЕНДА! м. Київ, пр-т Оболонський, 32-Б ; Оренда – приміщення 4-го поверху, площею 772,40 м2 (В)
Україна, м.Київ, Київ, Оболонський проспект, 32-Б
10.10.2023
Сумська обл., м. Суми, вул. Івана Сірка, буд. 9. Оренда – частина нежитлової будівлі 2-го поверху площею 566,00 кв.м. (В)
26 828.40 грн
47.40 грн / м2
Будівля
Сумська обл., м. Суми, вул. Івана Сірка, буд. 9. Оренда – частина нежитлової будівлі 2-го поверху площею 566,00 кв.м. (В)
Україна, Сумська обл., м. Суми, вул. Івана Сірка, буд. 9
20.12.2024
Полтавська обл., Миргородський р-н, с. Великі Сорочинці, вулиця Краснопільська, 8. Оренда – приміщення будівлі, загальною площею 36,60 кв.м. (В)
1 238.18 грн
33.83 грн / м2
Приміщення
Полтавська обл., Миргородський р-н, с. Великі Сорочинці, вулиця Краснопільська, 8. Оренда – приміщення будівлі, загальною площею 36,60 кв.м. (В)
Україна, Полтавська обл., Миргородський р-н, с. Великі Сорочинці, вулиця Краснопільська, 8
18.01.2023
Івано-Франківська обл., Івано-Франківський р-н, м. Бурштин вул. Січових Стрільців, 17. Оренда – приміщення 2-го поверху, площею 384,3 кв.м. (В)
3 843.00 грн
10.00 грн / м2
Приміщення
Івано-Франківська обл., Івано-Франківський р-н, м. Бурштин вул. Січових Стрільців, 17. Оренда – приміщення 2-го поверху, площею 384,3 кв.м. (В)
Україна, Івано-Франківська обл., Бурштин, вулиця Січових Стрільців, 17