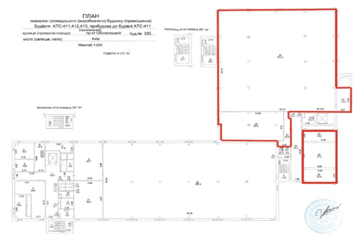
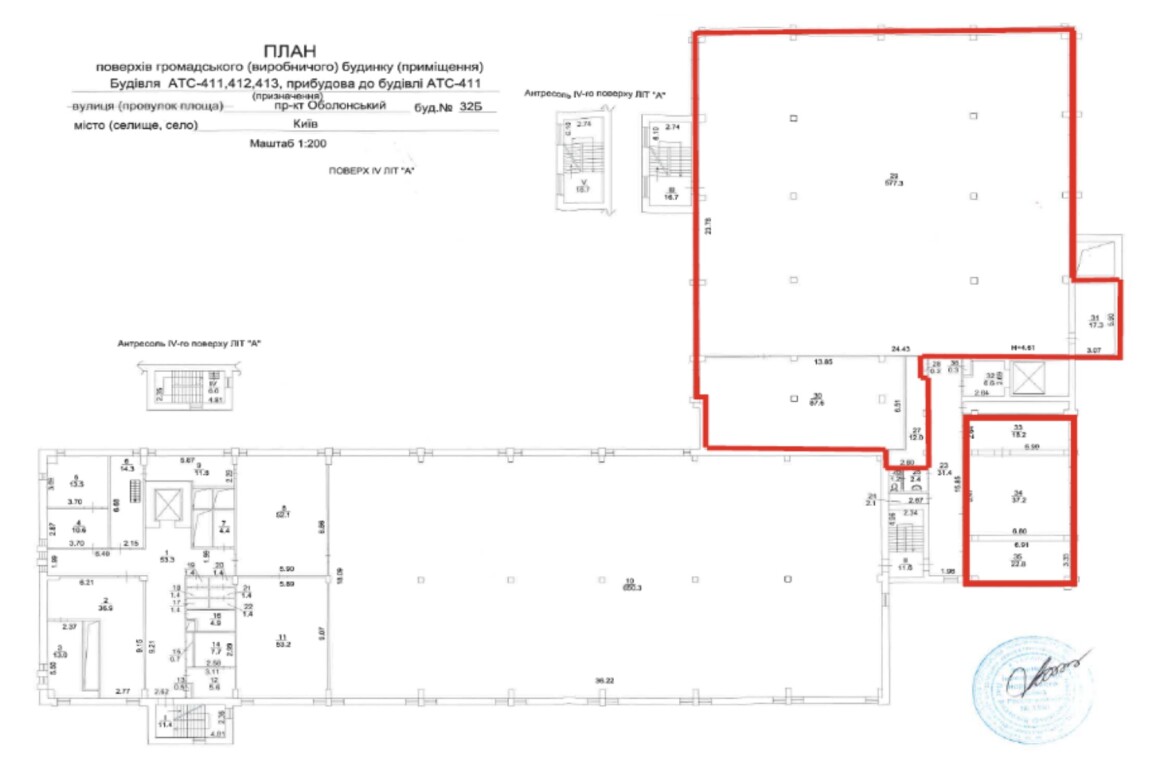
ДОВГОСТРОКОВА ОРЕНДА! м. Київ, пр-т Оболонський, 32-Б ; Оренда – приміщення 4-го поверху, площею 772,40 м2 (В)

149 179.01 грн
193.14 грн / м2
Україна, м.Київ, Київ, Оболонський проспект, 32-Б
Перейти до аукціону на сайті
  • Інформація
  • Опис
  • Документи
Дата оголошення пропозиції:
23 грудня 2024
Площа:
772.40 м2
Тип об’єкта:
Приміщення
Тип аукціону:
Англійський аукціон
Статус аукціону:
Аукціон не відбувся
Тип угоди:
Оренда
Розмір мінімального кроку:
5 000.00 ₴
Розмір гарантійного внеску:
89 507.40 ₴
Початок прийому пропозицій:
23.12.2024 14:33:09
Завершення прийому пропозицій:
23.01.2025 20:00:00
Проведення аукціону:
24.01.2025 11:05:00
Лот:
CLE001-UA-20241223-01918
№ лоту (УТК):
UTK081124_01T
Лот виставляється на торги (раз):
2
Стислий опис майна:
Пропонуються до оренди приміщення 4-го поверху, площею – 772,40 м2 Будівля знаходиться в Оболонському районі міста Києва, житловий масив Оболонь, розвинена інфраструктура, високі автомобільний та пішохідний потоки, в 5 хв. від ст. м. Героїв Дніпра та Мінська (синя гілка), Торгівельно-розважальні центри. Характеристики: • загальна площа будівлі – 9 462,60 м2 • кількість поверхів – 4; • опалення централізоване (міське); • земельна ділянка – 0,6695 га; • водопостачання, каналізація, сан. вузол – присутнє
Адреса місцезнаходження майна:
Україна, м.Київ, Київ, Оболонський проспект, 32-Б
Схожі пропозиції
16.04.2025
м. Київ, вул. Антоновича, 40;   Оренда – група приміщень на 9-му поверсі, площею - 174,20 кв.м. (В)
35 265.04 грн
202.44 грн / м2
Приміщення
м. Київ, вул. Антоновича, 40; Оренда – група приміщень на 9-му поверсі, площею - 174,20 кв.м. (В)
Україна, м.Київ, Київ, вул. Антоновича, 40
27.11.2025
м. Київ, вул. Володимирська, 10, літ. «А-4» (Шевченківський р-н). Оренда – приміщення у підвалі, площею – 49,30 кв.м (В)
14 061.35 грн
285.22 грн / м2
Приміщення
м. Київ, вул. Володимирська, 10, літ. «А-4» (Шевченківський р-н). Оренда – приміщення у підвалі, площею – 49,30 кв.м (В)
Україна, м.Київ, Київ, вул. Володимирська, 10, літ. «А-4»
27.01.2023
м. Київ, вул. Володимирська, 10. Оренда – приміщення 1, 2, 3, 4-го поверхів будівлі літ. «А» площею 919,9 м2 (В)
336 711.00 грн
366.03 грн / м2
Приміщення
м. Київ, вул. Володимирська, 10. Оренда – приміщення 1, 2, 3, 4-го поверхів будівлі літ. «А» площею 919,9 м2 (В)
Україна, м.Київ, Київ, вулиця Володимирська, 10
04.09.2025
м. Київ, вул. Наталії Ужвій 1 (Подільський р-н). Оренда – приміщення 1-го поверху, загальною площею – 65,60 м. кв. (В)
6 006.34 грн
91.56 грн / м2
Приміщення
м. Київ, вул. Наталії Ужвій 1 (Подільський р-н). Оренда – приміщення 1-го поверху, загальною площею – 65,60 м. кв. (В)
Україна, м.Київ, Київ, 04108, м. Київ, вул. Наталії Ужвій 1
Переглянуті пропозиції
10.10.2023
Сумська обл., м. Суми, вул. Івана Сірка, буд. 9. Оренда – частина нежитлової будівлі 2-го поверху площею 566,00 кв.м. (В)
26 828.40 грн
47.40 грн / м2
Будівля
Сумська обл., м. Суми, вул. Івана Сірка, буд. 9. Оренда – частина нежитлової будівлі 2-го поверху площею 566,00 кв.м. (В)
Україна, Сумська обл., м. Суми, вул. Івана Сірка, буд. 9
20.12.2024
Полтавська обл., Миргородський р-н, с. Великі Сорочинці, вулиця Краснопільська, 8. Оренда – приміщення будівлі, загальною площею 36,60 кв.м. (В)
1 238.18 грн
33.83 грн / м2
Приміщення
Полтавська обл., Миргородський р-н, с. Великі Сорочинці, вулиця Краснопільська, 8. Оренда – приміщення будівлі, загальною площею 36,60 кв.м. (В)
Україна, Полтавська обл., Миргородський р-н, с. Великі Сорочинці, вулиця Краснопільська, 8
18.01.2023
Івано-Франківська обл., Івано-Франківський р-н, м. Бурштин вул. Січових Стрільців, 17. Оренда – приміщення 2-го поверху, площею 384,3 кв.м. (В)
3 843.00 грн
10.00 грн / м2
Приміщення
Івано-Франківська обл., Івано-Франківський р-н, м. Бурштин вул. Січових Стрільців, 17. Оренда – приміщення 2-го поверху, площею 384,3 кв.м. (В)
Україна, Івано-Франківська обл., Бурштин, вулиця Січових Стрільців, 17
17.11.2023
Полтавська обл., Кременчуцький р-н., с. Вишняки, вул. Шкільна,14;   Оренда – Частина будівлі площею 41,2 кв.м. (В)
500.58 грн
12.15 грн / м2
Будівля
Полтавська обл., Кременчуцький р-н., с. Вишняки, вул. Шкільна,14; Оренда – Частина будівлі площею 41,2 кв.м. (В)
Україна, Полтавська обл., Вишняки, вул. Шкільна,14