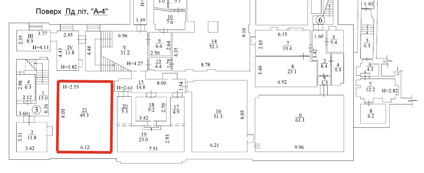
м. Київ, вул. Володимирська, 10, літ. «А-4» (Шевченківський р-н). Оренда – приміщення у підвалі, площею – 49,30 кв.м (В)

14 061.35 грн
285.22 грн / м2
Україна, м.Київ, Київ, вул. Володимирська, 10, літ. «А-4»
Перейти до аукціону на сайті
  • Інформація
  • Опис
  • Документи
Дата оголошення пропозиції:
24 жовтня 2025
Площа:
49.30 м2
Тип об’єкта:
Приміщення
Тип аукціону:
Англійський аукціон
Статус аукціону:
Прийняття заяв на участь
Тип угоди:
Оренда
Розмір мінімального кроку:
700.00 ₴
Розмір гарантійного внеску:
8 436.81 ₴
Початок прийому пропозицій:
24.10.2025 14:34:36
Завершення прийому пропозицій:
26.11.2025 20:00:00
Проведення аукціону:
27.11.2025 12:50:00
Лот:
CLE001-UA-20251024-03894
№ лоту (УТК):
UTK241025_04U
Лот виставляється на торги (раз):
1
Стислий опис майна:
Пропонуються до оренди приміщення у підвалі, площею – 49,30 кв.м. Будівля розташована в Шевченківському районі міста Києва. Поруч розвинена інфраструктура, зупинки маршрутного транспорту, кафе, ресторани. Центр міста, 15 хв. від ст. м. «Майдан Незалежності». Фасадний вхід. Характеристики: кількість поверхів – 5; загальна площа об'єкта – 5 072,50 кв.м.; площа запропонована до оренди – 49,30 кв.м; земельна ділянка – 0,6268 га*; водозабезпечення, сан. вузол, каналізація – присутні на поверсі; опалення централізоване (міське) – присутні. *земельна ділянка не є предметом оренди.
Адреса місцезнаходження майна:
Україна, м.Київ, Київ, вул. Володимирська, 10, літ. «А-4»
Схожі пропозиції
11.04.2024
м. Київ, вул. Ісаакяна, 3;   Оренда – Приміщення 1-го поверху площею 227,0 кв. м. (В)
84 575.66 грн
372.58 грн / м2
Приміщення
м. Київ, вул. Ісаакяна, 3; Оренда – Приміщення 1-го поверху площею 227,0 кв. м. (В)
Україна, м.Київ, Київ, вулиця Ісаакяна, 3
30.07.2025
м. Київ, вулиця Академіка Шалімова, 39/8, літ. «Е» (Солом’янський р-н). Оренда – приміщення 1-го поверху, площею 74,40 м. кв. (В)
9 601.32 грн
129.05 грн / м2
Приміщення
м. Київ, вулиця Академіка Шалімова, 39/8, літ. «Е» (Солом’янський р-н). Оренда – приміщення 1-го поверху, площею 74,40 м. кв. (В)
Україна, м.Київ, Київ, вулиця Академіка Шалімова, 39/8
11.08.2022
м. Київ, вул. Н. Ужвій, 1, Оренда – приміщення 2-го поверху площею 215,40 кв.м. (В)
11 269.73 грн
52.32 грн / м2
Приміщення
м. Київ, вул. Н. Ужвій, 1, Оренда – приміщення 2-го поверху площею 215,40 кв.м. (В)
Україна, м.Київ, Київ, вул. Н. Ужвій 1
Переглянуті пропозиції
27.02.2024
Одеська обл., м. Одеса, вул. Ак. Філатова, 13б. Оренда – приміщення 1-го поверху площею 75,20 кв.м. (В)
7 309.44 грн
97.20 грн / м2
Приміщення
Одеська обл., м. Одеса, вул. Ак. Філатова, 13б. Оренда – приміщення 1-го поверху площею 75,20 кв.м. (В)
Україна, Одеська обл., м. Одеса, вул. Ак. Філатова, 13б
11.12.2024
Чернігівська обл., м. Семенівка, вул. Червона площа, 4. Оренда – приміщення 1-го поверху площею 72,10 кв.м (В)
1 492.47 грн
20.70 грн / м2
Приміщення
Чернігівська обл., м. Семенівка, вул. Червона площа, 4. Оренда – приміщення 1-го поверху площею 72,10 кв.м (В)
Україна, Чернігівська обл., м. Семенівка, вул. Червона площа, 4
12.07.2024
Сумська обл., Роменський р-н., с. Хоружівка, вул. б/н. Оренда – частина нежитлового приміщення площею 38,70 кв.м. (В)
2 042.97 грн
52.79 грн / м2
Приміщення
Сумська обл., Роменський р-н., с. Хоружівка, вул. б/н. Оренда – частина нежитлового приміщення площею 38,70 кв.м. (В)
Україна, Сумська обл., Роменський р-н., с. Хоружівка, вул. б/н
10.06.2025
Рівненська обл.,Дубенський р-н. селище Млинів , вул. Рівненська,2. Оренда – приміщення гаражу площею 65,40 кв. м (В).
1 680.78 грн
25.70 грн / м2
Приміщення
Рівненська обл.,Дубенський р-н. селище Млинів , вул. Рівненська,2. Оренда – приміщення гаражу площею 65,40 кв. м (В).
Україна, Рівненська обл., Млинів, 35100, Рівненська обл., селище Млинів вул. Рівненська,2