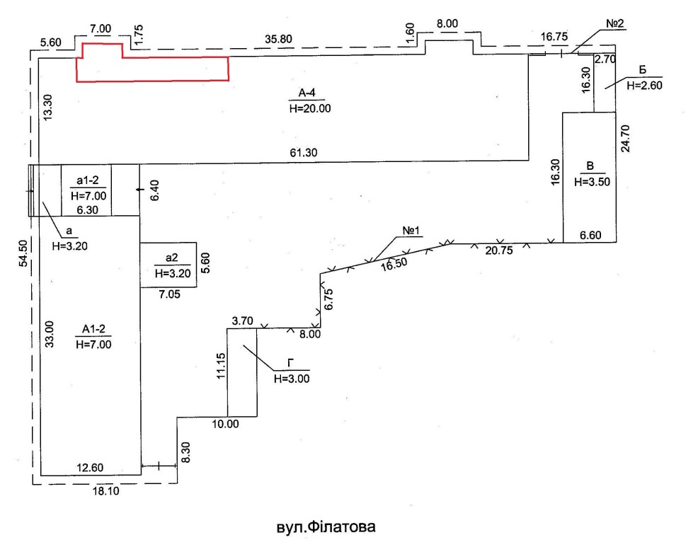
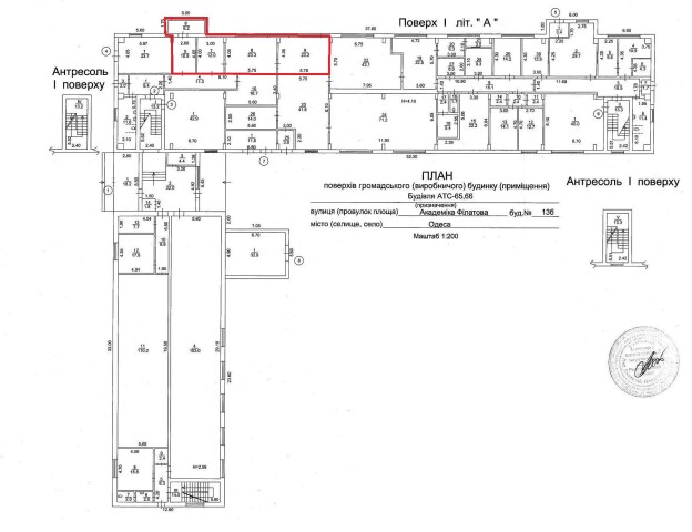
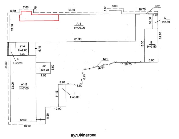
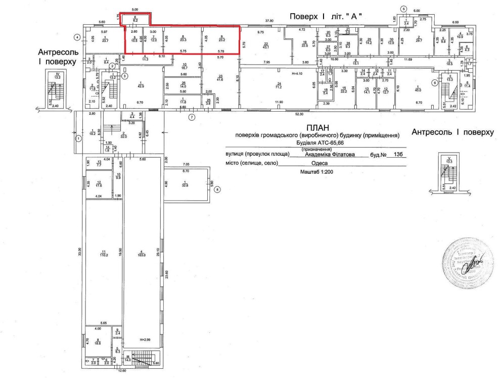
Одеська обл., м. Одеса, вул. Ак. Філатова, 13б. Оренда – приміщення 1-го поверху площею 75,20 кв.м. (В)

7 309.44 грн
97.20 грн / м2
Україна, Одеська обл., м. Одеса, вул. Ак. Філатова, 13б
Перейти до аукціону на сайті
  • Інформація
  • Опис
  • Документи
Дата оголошення пропозиції:
24 січня 2024
Площа:
75.20 м2
Тип об’єкта:
Приміщення
Тип аукціону:
Англійський аукціон
Статус аукціону:
Аукціон не відбувся
Тип угоди:
Оренда
Розмір мінімального кроку:
150.00 ₴
Розмір гарантійного внеску:
4 385.66 ₴
Початок прийому пропозицій:
24.01.2024 12:49:34
Завершення прийому пропозицій:
26.02.2024 20:00:00
Проведення аукціону:
27.02.2024 12:10:00
Лот:
CLE001-UA-20240124-00152
№ лоту (УТК):
UTK130123_02P
Лот виставляється на торги (раз):
10
Стислий опис майна:
Пропонується до оренди приміщення 1-го поверху загальною площею 75,20 кв.м. Об'єкт знаходиться у спальній частині міста, оточений з усіх сторін домами, поряд школа. Високий пішохідний та автомобільний трафік. Приміщення виробничо-офісного типу, підходить під магазин, аптеку з окремим входом. Приміщення потребують ремонту. Поряд з будівлею знаходяться місця для паркування авто та підзарядки електро авто. Характеристики: кількість поверхів – 4; Загальна площа – 3 718,60 кв.м Площа запропонована до оренди – 75,20 кв.м опалення - відсутнє; земельна ділянка – 0,3614 га
Адреса місцезнаходження майна:
Україна, Одеська обл., м. Одеса, вул. Ак. Філатова, 13б
Схожі пропозиції
04.10.2024
Одеська обл., Березівський р-н, м. Березівка, вул. Грушевського, 1а. Оренда – приміщення 3-го поверху площею 11,50 кв.м. (В)
253.00 грн
22.00 грн / м2
Приміщення
Одеська обл., Березівський р-н, м. Березівка, вул. Грушевського, 1а. Оренда – приміщення 3-го поверху площею 11,50 кв.м. (В)
Україна, Одеська обл., Березівський р-н, м. Березівка, вул. Грушевського, 1а
м. Одеса, пров. Гвоздичний, буд.6. Оренда – частина приміщень цокольного поверху площею 367,08 кв.м. (В)
18 555.89 грн
50.56 грн / м2
Приміщення
м. Одеса, пров. Гвоздичний, буд.6. Оренда – частина приміщень цокольного поверху площею 367,08 кв.м. (В)
Україна, Одеська обл., м. Одеса, пров. Гвоздичний, буд.6
22.09.2023
Одеська обл., Подільський р-н., смт. Любашівка, вул. Софіївська, буд. 87б. Оренда – приміщення 2-го поверху загальною площею 13,80 кв.м. (В)
510.05 грн
36.96 грн / м2
Приміщення
Одеська обл., Подільський р-н., смт. Любашівка, вул. Софіївська, буд. 87б. Оренда – приміщення 2-го поверху загальною площею 13,80 кв.м. (В)
Україна, Одеська обл., Подільський р-н., смт. Любашівка, вул. Софіївська, буд. 87б
Одеська обл., м. Чорноморськ, вул. Олександрійська, 6. Оренда – приміщення 4-го поверху.
19 083.92 грн
29.80 грн / м2
Приміщення
Одеська обл., м. Чорноморськ, вул. Олександрійська, 6. Оренда – приміщення 4-го поверху.
Україна, Одеська обл., м. Чорноморськ, вул. Олександрійська, 6
Переглянуті пропозиції
11.12.2024
Чернігівська обл., м. Семенівка, вул. Червона площа, 4. Оренда – приміщення 1-го поверху площею 72,10 кв.м (В)
1 492.47 грн
20.70 грн / м2
Приміщення
Чернігівська обл., м. Семенівка, вул. Червона площа, 4. Оренда – приміщення 1-го поверху площею 72,10 кв.м (В)
Україна, Чернігівська обл., м. Семенівка, вул. Червона площа, 4
12.07.2024
Сумська обл., Роменський р-н., с. Хоружівка, вул. б/н. Оренда – частина нежитлового приміщення площею 38,70 кв.м. (В)
2 042.97 грн
52.79 грн / м2
Приміщення
Сумська обл., Роменський р-н., с. Хоружівка, вул. б/н. Оренда – частина нежитлового приміщення площею 38,70 кв.м. (В)
Україна, Сумська обл., Роменський р-н., с. Хоружівка, вул. б/н
10.06.2025
Рівненська обл.,Дубенський р-н. селище Млинів , вул. Рівненська,2. Оренда – приміщення гаражу площею 65,40 кв. м (В).
1 680.78 грн
25.70 грн / м2
Приміщення
Рівненська обл.,Дубенський р-н. селище Млинів , вул. Рівненська,2. Оренда – приміщення гаражу площею 65,40 кв. м (В).
Україна, Рівненська обл., Млинів, 35100, Рівненська обл., селище Млинів вул. Рівненська,2
14.02.2024
м. Харків, вул. Конторська,14.Оренда – приміщення 4-го поверху площею 25,9 кв.м (В)
1 794.87 грн
69.30 грн / м2
Приміщення
м. Харків, вул. Конторська,14.Оренда – приміщення 4-го поверху площею 25,9 кв.м (В)
Україна, Харківська обл., м. Харків, вул. Конторська,14