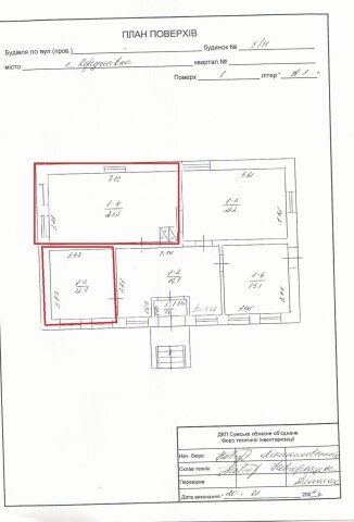
Сумська обл., Роменський р-н., с. Хоружівка, вул. б/н. Оренда – частина нежитлового приміщення площею 38,70 кв.м. (В)

2 042.97 грн
52.79 грн / м2
Україна, Сумська обл., Роменський р-н., с. Хоружівка, вул. б/н
Перейти до аукціону на сайті
  • Інформація
  • Опис
  • Документи
Дата оголошення пропозиції:
10 червня 2024
Площа:
38.70 м2
Тип об’єкта:
Приміщення
Тип аукціону:
Англійський аукціон
Статус аукціону:
Аукціон не відбувся
Тип угоди:
Оренда
Розмір мінімального кроку:
50.00 ₴
Розмір гарантійного внеску:
1 225.78 ₴
Початок прийому пропозицій:
10.06.2024 16:44:16
Завершення прийому пропозицій:
11.07.2024 20:00:00
Проведення аукціону:
12.07.2024 12:15:00
Лот:
CLE001-UA-20240610-05450
№ лоту (УТК):
UTK081122_09P
Лот виставляється на торги (раз):
10
Стислий опис майна:
Пропонується до оренди частина нежитлового приміщення площею 38,70 кв.м. Будівля знаходиться в центральній частині села. Можливість передачі приміщень в суборенду. Доступ вільний 24/7. Характеристики: Кількість поверхів – 1; Загальна площа – 93,70 кв.м. Площа запропонована до оренди - 38,70 кв.м. Електроенергія – наявне , опалення, водопостачання – відсутні; Земельна ділянка – 0,140 га (договір оренди)
Адреса місцезнаходження майна:
Україна, Сумська обл., Роменський р-н., с. Хоружівка, вул. б/н
Схожі пропозиції
11.10.2022
Сумська обл., Шосткинський р-н., с Зарічне, вул. Ювілейна, буд. 3 . Оренда – приміщення нежитлове площею 33,6 кв.м. (В)
379.68 грн
11.30 грн / м2
Приміщення
Сумська обл., Шосткинський р-н., с Зарічне, вул. Ювілейна, буд. 3 . Оренда – приміщення нежитлове площею 33,6 кв.м. (В)
Україна, Сумська обл., Шосткинський р-н., с Зарічне, вул. Ювілейна, буд. 3
04.07.2023
Сумська область, Охтирський р-н, м. Охтирка, вул. Київська, буд. 107. Оренда – нежитлового приміщення на 2-му поверсі площею 238,80 кв.м. (В)
6 638.64 грн
27.80 грн / м2
Приміщення
Сумська область, Охтирський р-н, м. Охтирка, вул. Київська, буд. 107. Оренда – нежитлового приміщення на 2-му поверсі площею 238,80 кв.м. (В)
Україна, Сумська обл., Охтирський р-н, м. Охтирка, вул. Київська, буд. 107
11.09.2024
Сумська обл., Роменський район, с. Рогинці, вул. Шевченка, буд. 32;   Оренда – нежитлове приміщення площею 48,10 кв. м. (В)
785.95 грн
16.34 грн / м2
Приміщення
Сумська обл., Роменський район, с. Рогинці, вул. Шевченка, буд. 32; Оренда – нежитлове приміщення площею 48,10 кв. м. (В)
Україна, Сумська обл., с. Рогинці, вулиця Тараса Шевченка, 32
20.12.2023
Сумська обл., Конотопський р-н, с. Землянка, вул. Центральна, буд. 49;   Оренда – нежитлове приміщення площею 18,7 кв.м. (В)
502.28 грн
26.86 грн / м2
Приміщення
Сумська обл., Конотопський р-н, с. Землянка, вул. Центральна, буд. 49; Оренда – нежитлове приміщення площею 18,7 кв.м. (В)
Україна, Сумська обл., Землянка, вул. Центральна, буд. 49
Переглянуті пропозиції
10.06.2025
Рівненська обл.,Дубенський р-н. селище Млинів , вул. Рівненська,2. Оренда – приміщення гаражу площею 65,40 кв. м (В).
1 680.78 грн
25.70 грн / м2
Приміщення
Рівненська обл.,Дубенський р-н. селище Млинів , вул. Рівненська,2. Оренда – приміщення гаражу площею 65,40 кв. м (В).
Україна, Рівненська обл., Млинів, 35100, Рівненська обл., селище Млинів вул. Рівненська,2
14.02.2024
м. Харків, вул. Конторська,14.Оренда – приміщення 4-го поверху площею 25,9 кв.м (В)
1 794.87 грн
69.30 грн / м2
Приміщення
м. Харків, вул. Конторська,14.Оренда – приміщення 4-го поверху площею 25,9 кв.м (В)
Україна, Харківська обл., м. Харків, вул. Конторська,14
14.02.2024
Сумська обл., м. Суми, вул. Іллінська, буд. 2. Оренда – офісні приміщення 3-го поверху площею 411,00 кв. м. (В)
24 138.03 грн
58.73 грн / м2
Офіс
Сумська обл., м. Суми, вул. Іллінська, буд. 2. Оренда – офісні приміщення 3-го поверху площею 411,00 кв. м. (В)
Україна, Сумська обл., м. Суми, вул. Іллінська, буд. 2
30.04.2024
Сумська обл., Конотопський р-н, с. Землянка, вул. Центральна, буд. 49;   Оренда – нежитлове приміщення площею 18,7 кв.м. (В)
502.28 грн
26.86 грн / м2
Приміщення
Сумська обл., Конотопський р-н, с. Землянка, вул. Центральна, буд. 49; Оренда – нежитлове приміщення площею 18,7 кв.м. (В)
Україна, Сумська обл., Землянка, вул. Центральна, буд. 49