ДОВГОСТРОКОВА ОРЕНДА! м. Київ, вул. Антоновича, 40. Оренда – приміщення 5-го поверху, площею 768,70 м2 (В)

253 901.61 грн
330.30 грн / м2
Україна, м.Київ, Київ, вул. Антоновича, 40
Перейти до аукціону на сайті
  • Інформація
  • Опис
  • Документи
Дата оголошення пропозиції:
21 липня 2021
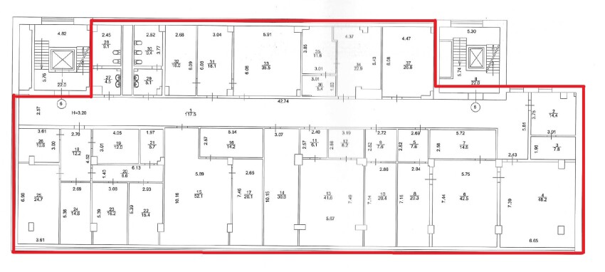
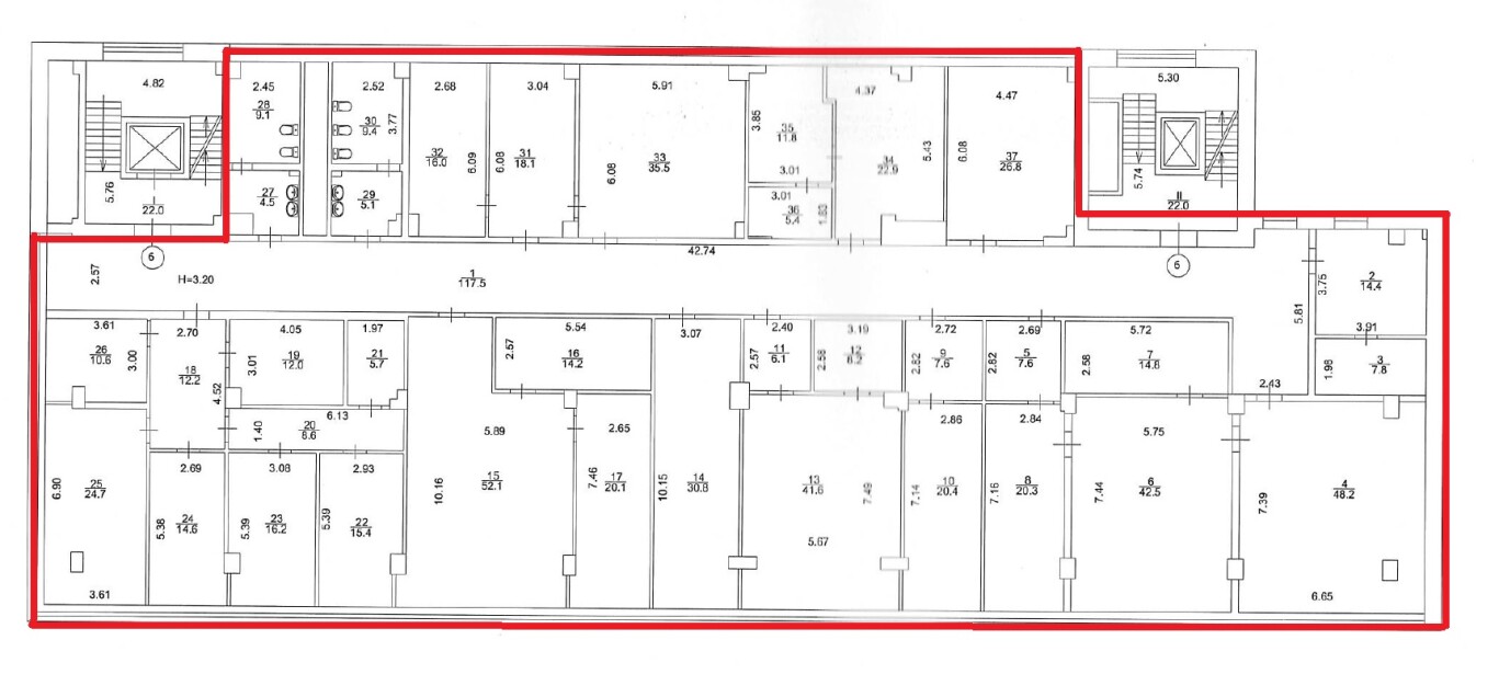
Площа:
768.70 м2
Тип об’єкта:
Приміщення
Тип аукціону:
Англійський аукціон
Статус аукціону:
Аукціон не відбувся
Тип угоди:
Оренда
Розмір мінімального кроку:
2 600.00 ₴
Розмір гарантійного внеску:
152 340.97 ₴
Початок прийому пропозицій:
21.07.2021 12:31:52
Завершення прийому пропозицій:
19.08.2021 20:00:00
Лот:
UA-PS-2021-07-21-000053-2
№ лоту (УТК):
UTK210721_01T
Лот виставляється на торги (раз):
1
Стислий опис майна:
Пропонуються до оренди приміщення 5 поверху, площею 768,70 кв. м. Стан приміщень задовільний. Всі комунікації присутні. Кабінетне планування, кондиціонування в кожному кабінеті. Будівля знаходиться у центрі міста на перехресті вулиць Жилянська та Антоновича. Поруч з БЦ розташована зупинка міського автотранспорту, в 5-ти хвилинах ходьби знаходиться станція метро «Олімпійська», парк Тараса Шевченка. Характеристики: • кількість поверхів – 9; • опалення централізоване (міське); • земельна ділянка – 0,2099 га; • загальна площа будівлі -- 7649,30 м2 • каналізація, сан. вузол, водопостачання – присутне;
Адреса місцезнаходження майна:
Україна, м.Київ, Київ, вул. Антоновича, 40
Схожі пропозиції
18.01.2023
м. Київ, вул. Антоновича, 40. Оренда – приміщення підвалу площею 77,0 кв.м. (В)
17 038.56 грн
221.28 грн / м2
Приміщення
м. Київ, вул. Антоновича, 40. Оренда – приміщення підвалу площею 77,0 кв.м. (В)
Україна, м.Київ, Київ, вул. Антоновича, 40
м. Київ, Антоновича 40 Оренда приміщень 5 пов.
276 732.00 грн
360.00 грн / м2
Приміщення
м. Київ, Антоновича 40 Оренда приміщень 5 пов.
Україна, м.Київ, місто Київ, вул. Антоновича, 40
17.06.2025
м. Київ, вулиця Академіка Шалімова, 39/8, літ. «Е» (Солом’янський р-н). Оренда – приміщення 1-го поверху, площею 74,40 м. кв. (В)
11 659.22 грн
156.71 грн / м2
Приміщення
м. Київ, вулиця Академіка Шалімова, 39/8, літ. «Е» (Солом’янський р-н). Оренда – приміщення 1-го поверху, площею 74,40 м. кв. (В)
Україна, м.Київ, Київ, вулиця Академіка Шалімова, 39/8
08.11.2022
м. Київ, вул. Будівельників, 8-Б, оренда – приміщення підвалу, площею 452,60 кв.м. (В)
20 910.12 грн
46.20 грн / м2
Приміщення
м. Київ, вул. Будівельників, 8-Б, оренда – приміщення підвалу, площею 452,60 кв.м. (В)
Україна, м.Київ, Київ, вулиця Будівельників, 8Б
Переглянуті пропозиції
30.12.2022
ДОВГОСТРОКОВА ОРЕНДА! м. Київ, вул. Салютна, 5а, літ. «Б». Оренда – приміщення 3-го та 4-го поверхів площею 992,8 кв.м. (В)
10.06.2025
м. Київ, бульвар Академіка Вернадського, 79-А (В). Оренда – приміщення 2-го поверху, загальною площею – 37,70 кв.м.
4 496.86 грн
119.28 грн / м2
Приміщення
м. Київ, бульвар Академіка Вернадського, 79-А (В). Оренда – приміщення 2-го поверху, загальною площею – 37,70 кв.м.
Україна, м.Київ, Київ, бульвар Академіка Вернадського, 79А
26.11.2025
Полтавська обл., Миргородський район, смт. Комишня, вул. Миру, 101. Оренда – приміщення загальною площею 552,90 кв.м. (В)
10 018.55 грн
18.12 грн / м2
Приміщення
Полтавська обл., Миргородський район, смт. Комишня, вул. Миру, 101. Оренда – приміщення загальною площею 552,90 кв.м. (В)
Україна, Полтавська обл., Миргородський район, смт. Комишня, вул. Миру, 101
22.09.2022
Полтавська обл., м. Кременчук, вулиця Соборна, 17. Оренда – приміщення 2-го поверху площею 22,40 кв.м. (В)
1 458.24 грн
65.10 грн / м2
Приміщення
Полтавська обл., м. Кременчук, вулиця Соборна, 17. Оренда – приміщення 2-го поверху площею 22,40 кв.м. (В)
Україна, Полтавська обл., м. Кременчук, Соборна вулиця, 17