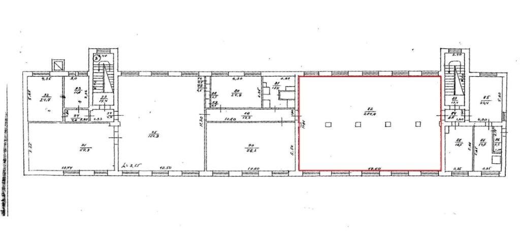
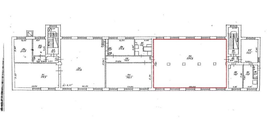
Чернігівська обл., м. Ніжин, вул. Заньковецької, 4. Оренда – приміщення 3-го поверху, площею 267,7 кв.м. (В)

11 564.64 грн
43.20 грн / м2
Україна, Чернігівська обл., Ніжин, вул. Заньковецької, 4
Перейти до аукціону на сайті
  • Інформація
  • Опис
  • Документи
Дата оголошення пропозиції:
29 липня 2021
Площа:
267.70 м2
Тип об’єкта:
Приміщення
Тип аукціону:
Англійський аукціон
Статус аукціону:
Аукціон не відбувся
Тип угоди:
Оренда
Розмір мінімального кроку:
150.00 ₴
Розмір гарантійного внеску:
6 938.78 ₴
Початок прийому пропозицій:
29.07.2021 12:57:00
Завершення прийому пропозицій:
30.08.2021 20:00:00
Лот:
UA-PS-2021-07-29-000021-2
№ лоту (УТК):
UTK290721_05Т
Лот виставляється на торги (раз):
1
Стислий опис майна:
Пропонується до оренди приміщення на третьому поверсі трьоповерхової будівлі площею 267,7 кв.м. Будівля знаходиться в центральній частині міста, розвинена інфраструктура, високі автомобільний та пішохідний потоки. Характеристики • кількість поверхів – 3 • загальна площа –1775,00 кв.м • площа запропонована до оренди – 267,7 кв.м • земельна ділянка – 0,3455 га (договір оренди)
Адреса місцезнаходження майна:
Україна, Чернігівська обл., Ніжин, вул. Заньковецької, 4
Схожі пропозиції
16.11.2022
Чернігівська обл., м. Чернігів, пр-т. Миру, 28. Оренда – приміщення 3-го поверху площею 62,4 кв.м. (В)
9 266.40 грн
148.50 грн / м2
Приміщення
Чернігівська обл., м. Чернігів, пр-т. Миру, 28. Оренда – приміщення 3-го поверху площею 62,4 кв.м. (В)
Україна, Чернігівська обл., м. Чернігів, пр-т. Миру, 28
Чернігівська обл., м. Новгород-Сіверський, вул. Вокзальна, 9а. Оренда – нежитлове приміщення 1-го поверху, площею 44,75 кв.м. (В)
1 153.66 грн
25.78 грн / м2
Приміщення
Чернігівська обл., м. Новгород-Сіверський, вул. Вокзальна, 9а. Оренда – нежитлове приміщення 1-го поверху, площею 44,75 кв.м. (В)
Україна, Чернігівська обл., Новгород-Сіверський, вул. Вокзальна, 9а
16.12.2022
Чернігівська обл., м. Чернігів, вул. Рокоссовського, 33. Оренда – виробничі приміщення 4-го поверху площею 327,10 кв.м. (В)
15 112.02 грн
46.20 грн / м2
Приміщення
Чернігівська обл., м. Чернігів, вул. Рокоссовського, 33. Оренда – виробничі приміщення 4-го поверху площею 327,10 кв.м. (В)
Україна, Чернігівська обл., Чернігів, вулиця Рокоссовського, 33
10.08.2023
м.Чернігів, вул. Елеваторна, 6а. Оренда – приміщення 1го та 2го поверху площею 382,7 кв.м. (В)
18 139.98 грн
47.40 грн / м2
Приміщення
м.Чернігів, вул. Елеваторна, 6а. Оренда – приміщення 1го та 2го поверху площею 382,7 кв.м. (В)
Україна, Чернігівська обл., Чернігів, Елеваторна вулиця, 6
Переглянуті пропозиції
17.10.2023
м. Харків, вул. Конторська,14.Оренда – приміщення 2-го поверху площею 24,8 кв.м (В)
1 718.64 грн
69.30 грн / м2
Приміщення
м. Харків, вул. Конторська,14.Оренда – приміщення 2-го поверху площею 24,8 кв.м (В)
Україна, Харківська обл., м. Харків, вул. Конторська,14